Two dwellings consented on nearly an acre with elevated countryside views.
- Planning consent granted April 2024 for conversion to two dwellings
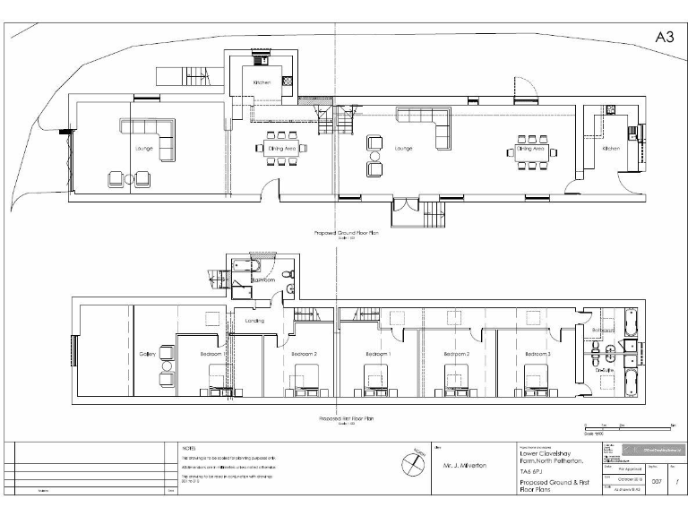
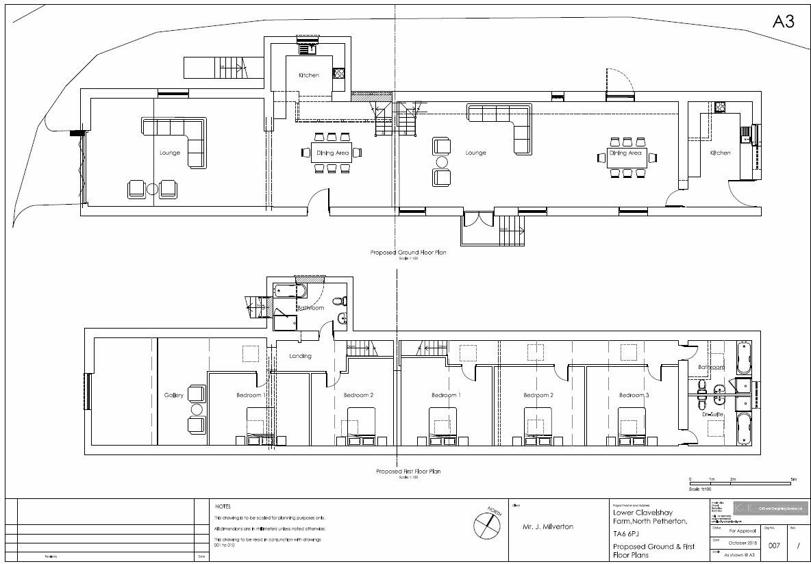
- Combined gross internal area about 330 sqm / 3,552 sqft
- Site extends to nearly one acre with south-facing valley views
- Private water and drainage required; purchaser to install
- Electricity connected but meter removed; new meter needed
- Very slow broadband and no mobile signal on site
- Elevated hamlet location; access via farm drive right of way
- Barn partially derelict; full refurbishment and health-and-safety care needed
A substantial stone and tile agricultural barn set in an elevated position, with planning consent to convert into two dwellings. The approved scheme (April 2024, ref. 37/23/00099) covers a combined gross internal area of about 330 sqm (3,552 sqft) and sits within nearly one acre of land, providing generous space for gardens, parking and landscaping.
This is a straightforward opportunity for an investor or developer comfortable with rural conversions. The plot benefits from south-facing aspects and valley views toward mature woodland, no flood risk, and low local crime. Good road links to the M5 place Taunton and Bridgwater within easy reach while retaining a quiet hamlet setting in the Quantock Hills.
Practical considerations are material: purchasers must provide private water and drainage, the electricity supply requires a new meter, and broadband and mobile signal are very limited. The barn is currently derelict in parts and will need full renovation and careful site work; viewing requires caution for uneven ground and farm activity. These constraints lower entry cost but add clear build and infrastructure obligations.
Overall, this is a planning-permitted conversion with strong rural character and scope for value uplift for a buyer prepared to manage off-grid services and a full refurbishment programme.
Plot for sale in KNAPP, NORTH CURRY, TA3 6BE - BARN FOR CONVERSION, STUNNING COUNTRYSIDE LOCATION AND VIEWS, WITH c.3.84 HA/9.5 ACRES, TA3 — £300,000 • 1 bed • 1 bath • 484 ft²
6 bedroom detached house for sale in Stone Hall Lane, Enmore, Bridgwater, TA5 — £895,000 • 6 bed • 2 bath • 3228 ft²
Plot for sale in West Buckland, Wellington, Somerset, TA21 — £625,000 • 1 bed • 1 bath • 4236 ft²
2 bedroom terraced house for sale in Northway Farm, Halse, Taunton, TA4 — £575,000 • 2 bed • 2 bath • 1743 ft²
7 bedroom detached house for sale in Lawford, Crowcombe, Taunton, TA4 — £950,000 • 7 bed • 4 bath • 4200 ft²
4 bedroom detached house for sale in Aisholt, Bridgwater, Somerset, TA5 — £595,000 • 4 bed • 3 bath • 1863 ft²






























































