Compact first-floor home with parking and long lease, ideal starter or buy-to-let.
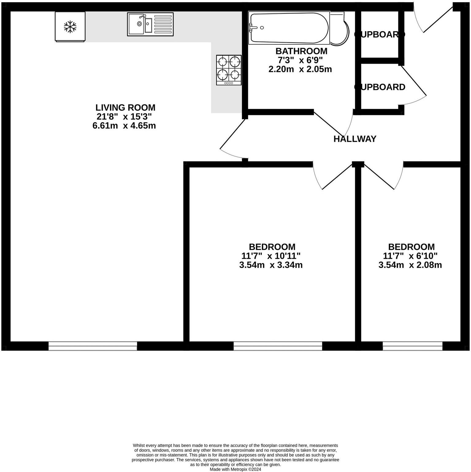
- First-floor two-bedroom apartment, approximately 585 sq ft
- Long lease remaining: 105 years
- EPC rating B, double glazing installed
- Open-plan kitchen with included appliances
- Allocated on-site parking and secure entryphone
- Service charge ~£1,480 pa; ground rent ~£465 pa
- Electric room heaters only (no gas central heating)
- Small overall size; area has above-average crime
This first-floor two-bedroom apartment in a mid-2000s development offers a compact, low-maintenance home with a long lease (105 years) and an EPC B rating. The open-plan living area includes fitted kitchen appliances and benefits from double glazing and modern slimline electric heaters, making it straightforward to run and move into.
Externally the development provides allocated on-site parking, secure entryphone access and well-kept communal gardens. The block sits in an urban residential area with convenient local amenities, fast broadband and a mix of nearby schools, including a highly regarded secondary option.
Notable costs and considerations are a service charge (circa £1,480 pa) and ground rent (£465 pa). Heating is by electric room heaters rather than gas central heating, and the apartment is a small overall size (about 585 sqft) — ideal for a first-time buyer or investor but less suitable for buyers needing large family space. Crime levels in the area are above average, so buyers should factor local security and insurance into their plans.
Overall this well-maintained, owned-since-new flat offers easy access, a long lease and simple upkeep, making it a pragmatic starter home or buy-to-let purchase in a popular residential pocket of High Wycombe.
2 bedroom apartment for sale in Ercolani Avenue, High Wycombe, HP13 — £220,000 • 2 bed • 1 bath • 654 ft²
2 bedroom flat for sale in High Wycombe, Buckinghamshire, HP13 — £250,000 • 2 bed • 2 bath • 654 ft²
2 bedroom apartment for sale in Chairborough Court, High Wycombe, HP12 — £210,000 • 2 bed • 1 bath • 572 ft²
2 bedroom flat for sale in High Wycombe, Buckinghamshire, HP13 — £250,000 • 2 bed • 1 bath • 713 ft²
2 bedroom flat for sale in Windrush Court, High Wycombe, HP13 — £230,000 • 2 bed • 1 bath • 564 ft²
2 bedroom apartment for sale in Wellesbourne Road, High Wycombe, Buckinghamshire, HP13 — £260,000 • 2 bed • 1 bath • 685 ft²






































