**Standout Features:**
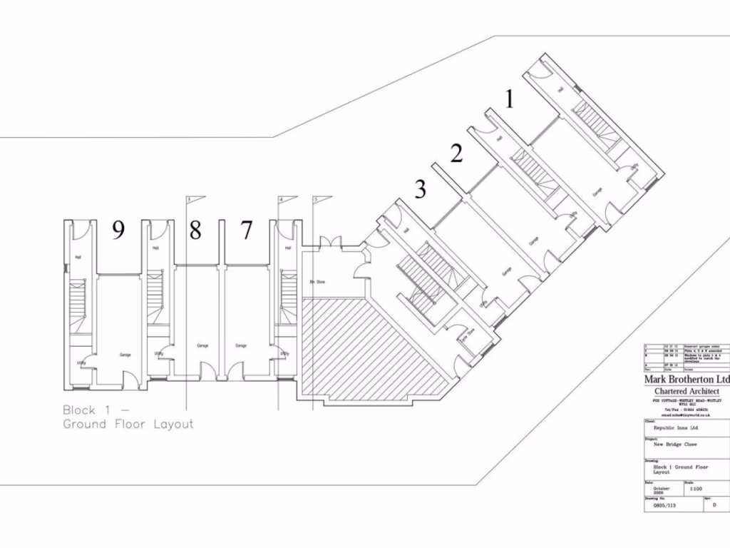
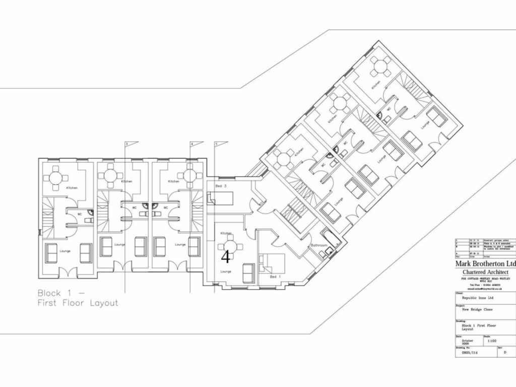
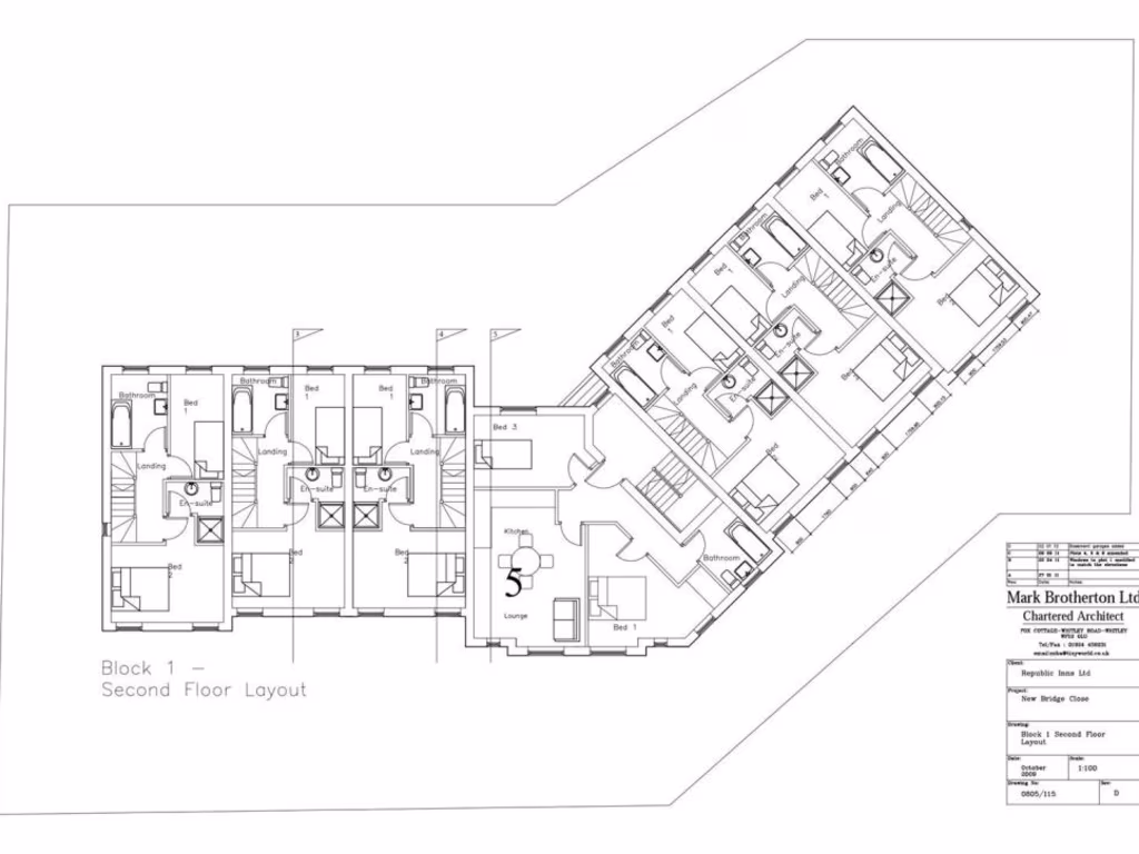
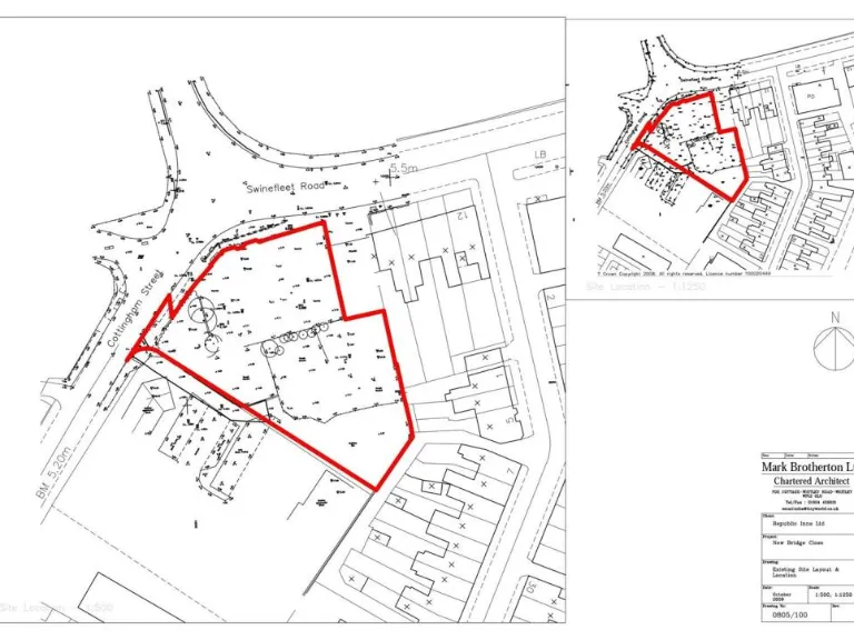
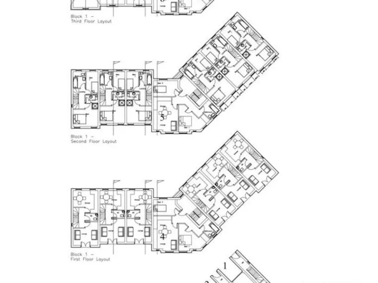
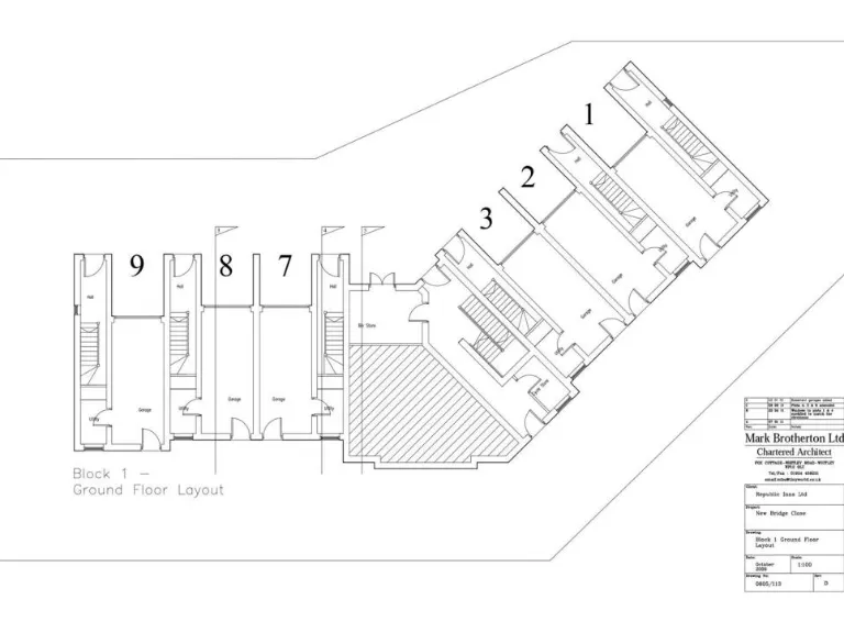
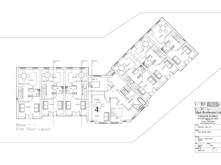
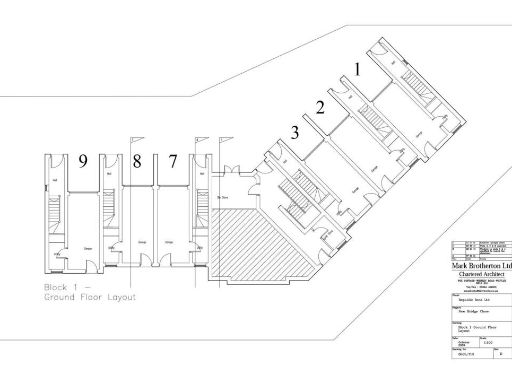
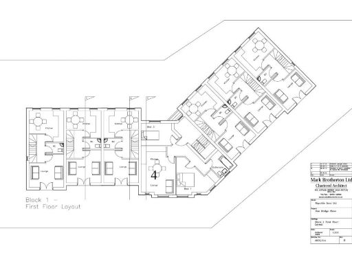
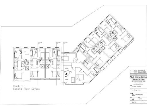
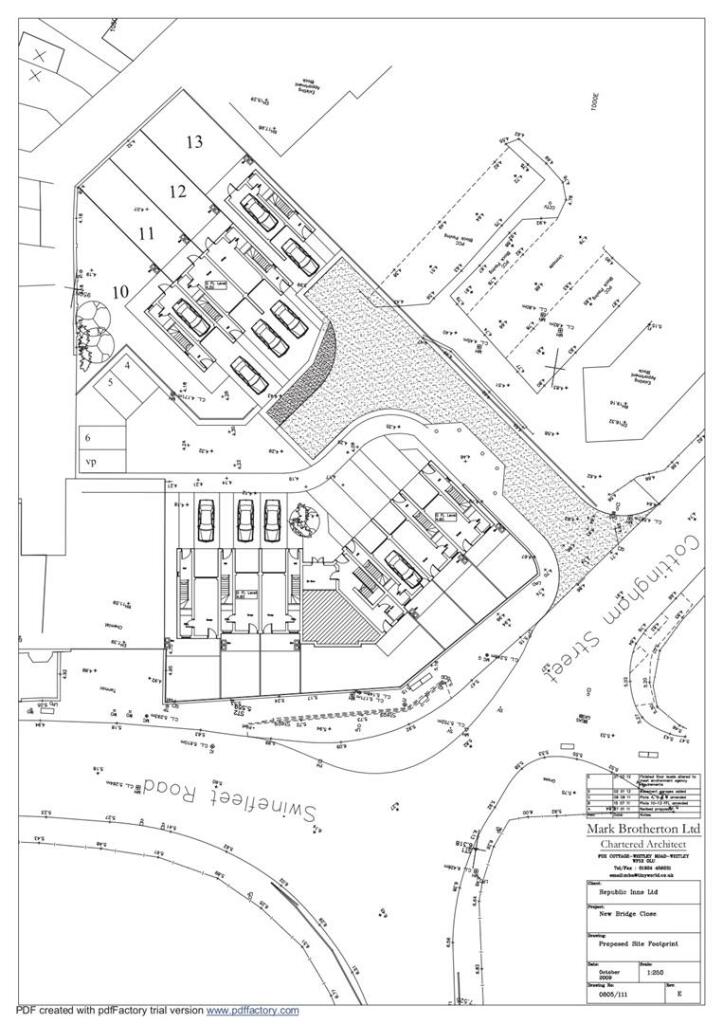
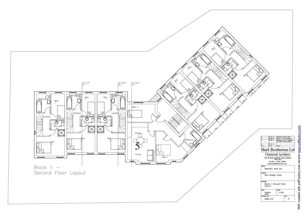
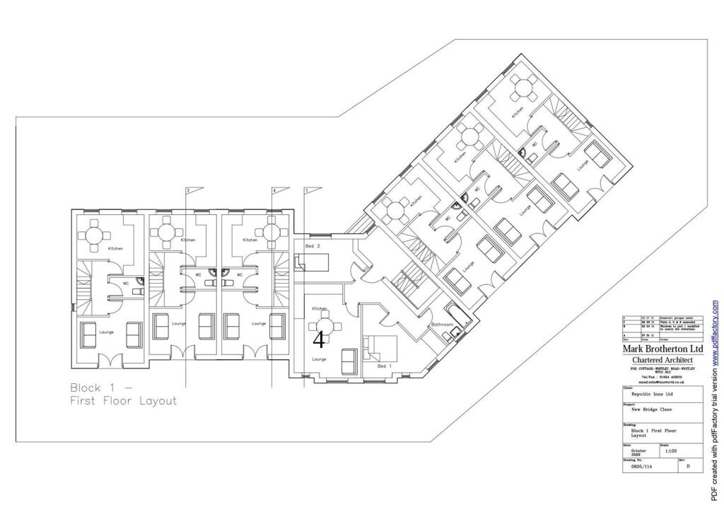
- Development plot for ten dwellings and three apartments
- Freehold tenure solidifying ownership
- Garage parking available
- Excellent commuter links and fast broadband speeds
- Planning permission from East Riding of Yorkshire Council
**Summary:**
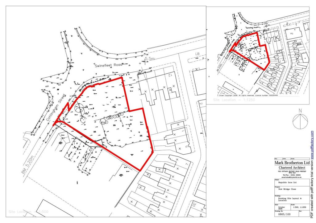
This promising development plot in Goole represents an exceptional investment opportunity, ideal for developers seeking to expand their portfolio. Spanning a small area, this site holds approved plans for constructing ten residential units alongside three apartments, tapping into a growing demand for housing in this accessible location. With a price of £170,000, the prospects for a strong return on investment are captivating, especially given its close proximity to reliable commuter routes and essential amenities.
While the area has some socioeconomic challenges, the potential for revitalization makes this an attractive proposition for forward-thinking investors. The plot features a garage for parking, ensuring convenience for future residents. It is situated within a community that has essential services nearby, such as schools, supermarkets, and recreational spaces. Despite minor limitations in the size of the plot, the configuration optimizes land use, inviting creative development ideas.
Don’t miss this rare gem that combines investment potential with the chance to contribute to the community’s growth—secure your spot in Goole's evolving landscape today!
Industrial park for sale in Land, DN14 — POA • 1 bed • 1 bath
Commercial property for sale in Pasture Road, Goole, DN14 — £425,000 • 1 bed • 1 bath • 593 ft²
Land for sale in Boothferry Point, Boothferry Road, Howden, East Yorkshire, DN14 — POA • 1 bed • 1 bath
Land for sale in Land at Rose Cottage, Broad Lane, Sykehouse, Goole, DN14 — £1,000,000 • 1 bed • 1 bath
Plot for sale in High Street, Hook, Goole, DN14 — £65,000 • 1 bed • 1 bath
Residential development for sale in Eastoft, Scunthorpe, DN17 — £495,000 • 1 bed • 1 bath • 1479 ft²


















































