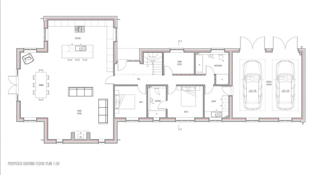
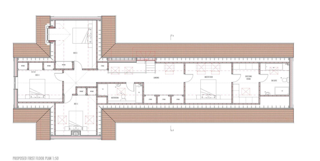
Development plot with planning for a spacious six-bedroom country home on a large plot..
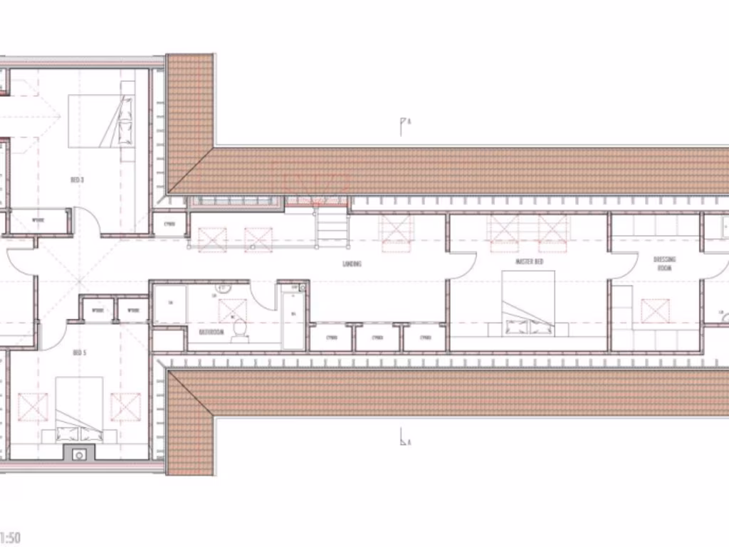
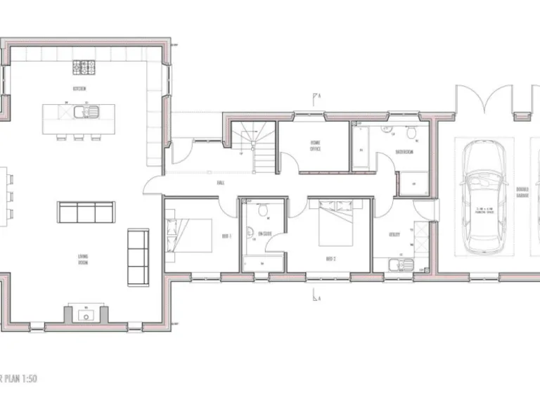
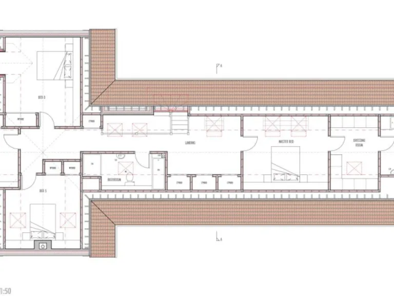
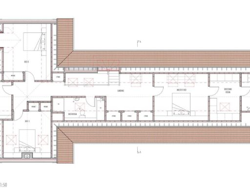
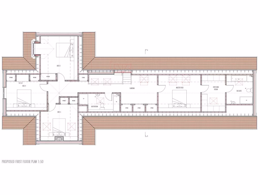
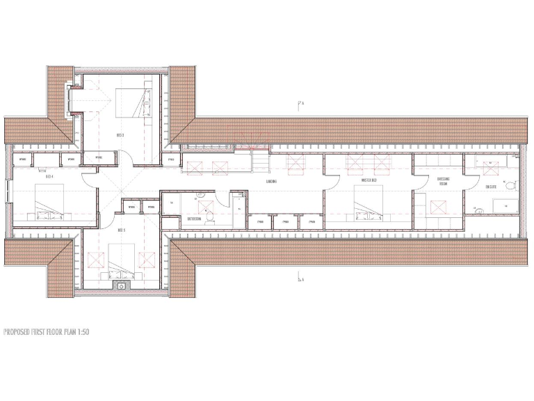
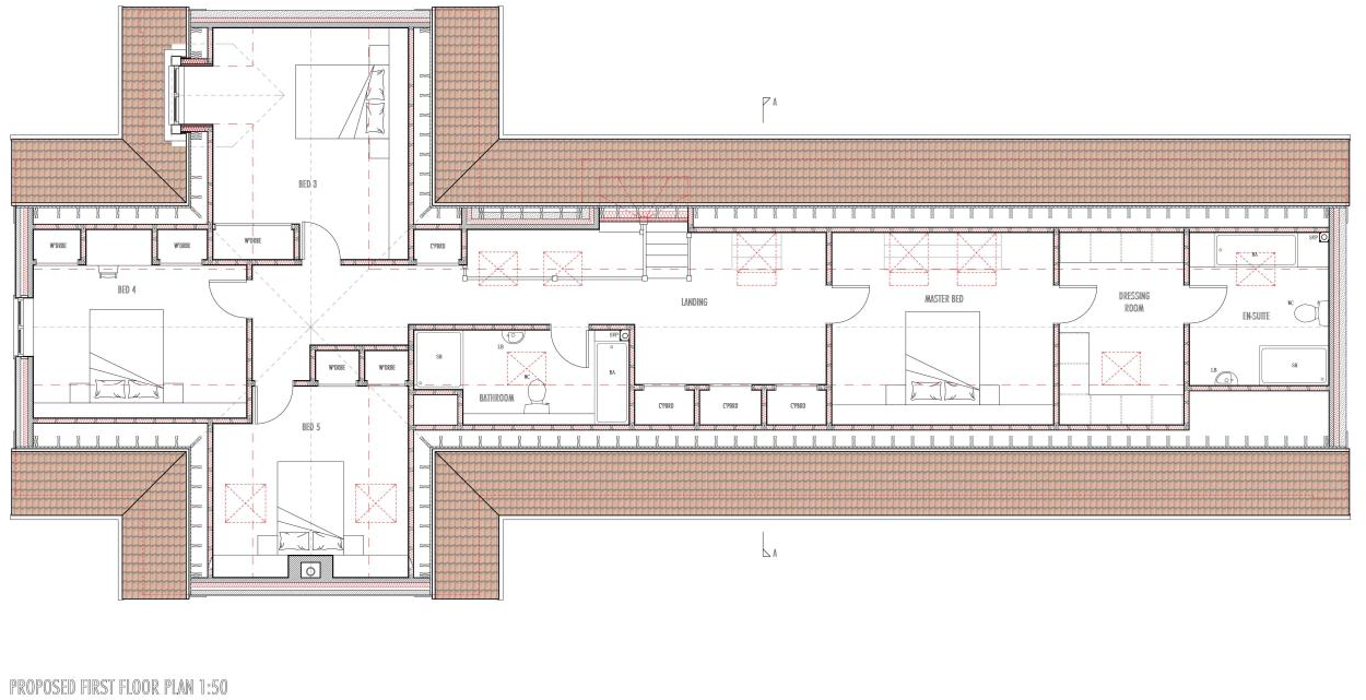
- Planning permission granted for a 6-bedroom chalet-style detached house
- Large, gated plot backing onto open fields with rural outlook
- Superb open-plan kitchen/living/dining and ground-floor office
- Master suite with dressing room; five further bedrooms, two en-suite
- Integral double garage; parking on private driveway
- Mains water connected; electricity and drainage not yet connected
- Existing foundations reduced by ~4.35m; alterations required for approved scheme
- Freehold; sale by informal tender (guide £175,000) with deadline
A rare single-residential development plot with planning permission for a substantial six-bedroom, chalet-style detached house set on a generous plot backing onto open fields in Pitney. The consented design delivers a large open-plan kitchen/living/dining hub, a ground-floor office and utility, an integral double garage and a first-floor master suite with dressing room and bathroom — ideal for a family seeking spacious countryside living.
Several practical matters are material to any purchase. Mains water is connected but electricity and drainage are not yet connected. The vendor’s architects reduced the foundations by about 4.35m during an earlier build attempt; those shortened foundations were signed off to Building Regulations but do not match the current planning consent and will require alteration to be suitable for the approved scheme. Buyers should allow budget for these works and for final services connections.
The site sits at the edge of a small cluster hamlet with very low crime, excellent mobile signal and average broadband. Local primary schools rate well and larger town facilities are within short drives. The sale is freehold and being offered by informal tender (guide price £175,000) — suited to a buyer comfortable managing the remaining build works or a developer seeking a distinctive countryside project.
This plot represents strong potential: a family home with generous internal space (c.2,457 sq ft), countryside outlooks and planning in place, offset by the need to complete services and rectify the foundation variation before constructing the consented scheme.
Land for sale in Pitney, Langport, TA10 — £175,000 • 6 bed • 4 bath
Land for sale in Old Basin, Bridgwater, TA6 — £325,000 • 1 bed • 1 bath
Plot for sale in Lot 1 at Summerleaze, Marshalls Elm, Street, BA16 — £400,000 • 1 bed • 1 bath
Plot for sale in Lot 2 at Summerleaze, Marshalls Elm, Street, BA16 — £350,000 • 1 bed • 1 bath
Land for sale in Over Stratton Road, Over Stratton, TA13 — £250,000 • 1 bed • 1 bath • 2734 ft²
Land for sale in Ivythorn Lane, Nr. Street, Somerset, BA16 — £225,000 • 1 bed • 1 bath














































































