**Standout Features:**
- Large plot size of 0.30 acres
- Planning consent granted for 2 detached four-bedroom homes (Application 2024/1123/FUL)
- Integral garages with additional storage space
- Located close to Millfield School and surrounded by rural views
- Low crime rates and affluent area
**Potential Downsides:**
- Private drainage connection to be established by the purchaser
- Shared access maintenance obligation with Plot 1
- Restrictions on ridge height and footprint placements
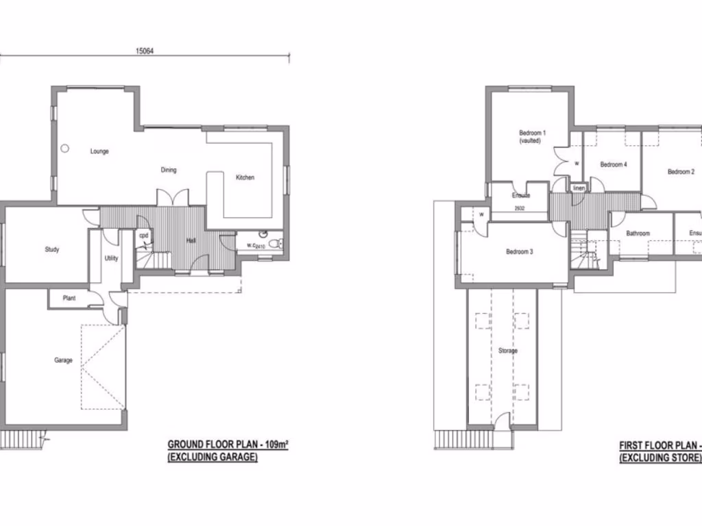
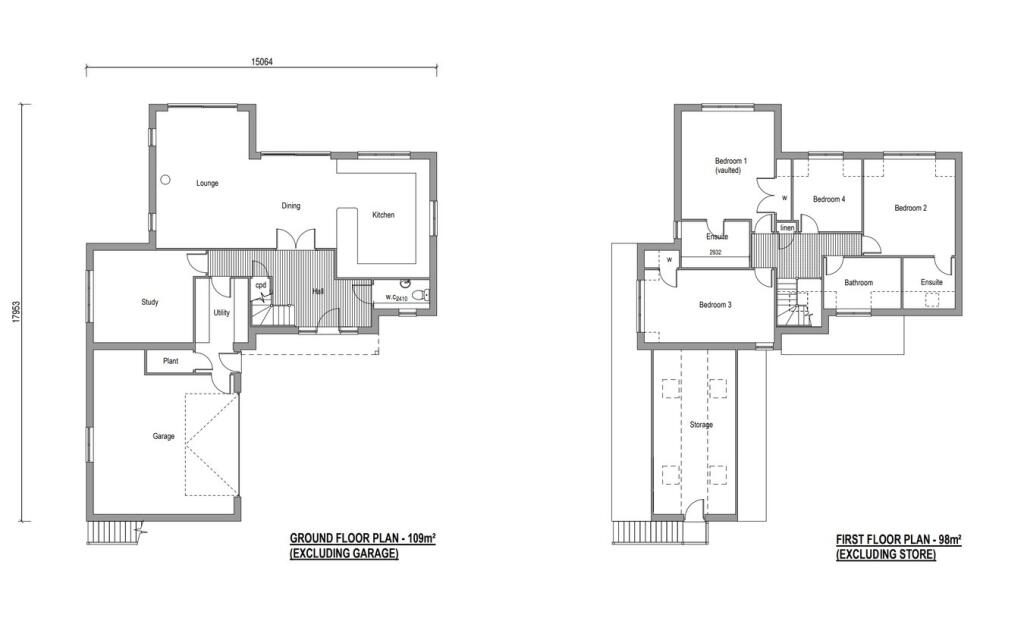
Nestled in a serene rural setting on the outskirts of Street, Somerset, this exciting opportunity offers a spacious 0.30-acre plot (Lot 2) with planning consent for the erection of two stunning four-bedroom detached homes. The architectural design showcases a charming mix of natural local stone and timber cladding, complemented by double roman clay tiles.
The plot is defined with initial groundwork completed, including a bat shed per planning requirements, ensuring compliance from the outset. With a shared access right off Slugg Hill, residents will enjoy delightful countryside views in a peaceful environment, perfect for families or those seeking to invest in a desirable location.
While the private drainage will need to be connected, the vendor will ensure mains electricity and water service the lot. Situated in an area with exceptional access to quality schooling, this development opportunity offers both immediate and future potential for creating a beautiful residential oasis. Act quickly to secure this rare chance—plots like this don't last long!
Plot for sale in Lot 1 at Summerleaze, Marshalls Elm, Street, BA16 — £400,000 • 1 bed • 1 bath
Land for sale in Ivythorn Lane, Nr. Street, Somerset, BA16 — £225,000 • 1 bed • 1 bath
Land for sale in Somerton Road, Street, BA16 — £105,000 • 3 bed • 2 bath
Land for sale in Lot, DEVELOPMENT FOR SALE, Grange Avenue, Street BA16 9PD, BA16 — £95,000 • 1 bed • 1 bath • 2178 ft²
Land for sale in Street Drove, Street, Somerset, BA16 — £80,000 • 1 bed • 1 bath
Plot for sale in Stockelm, Compton Dundon, Somerton, TA11 — £610,000 • 1 bed • 1 bath • 9203 ft²






























