Freehold development plot with consent for a substantial six-bedroom family home on a huge private plot..
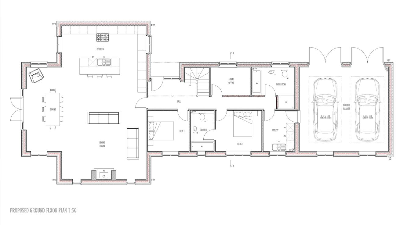
- Planning permission granted (20/00753/REM) for detached chalet-style house
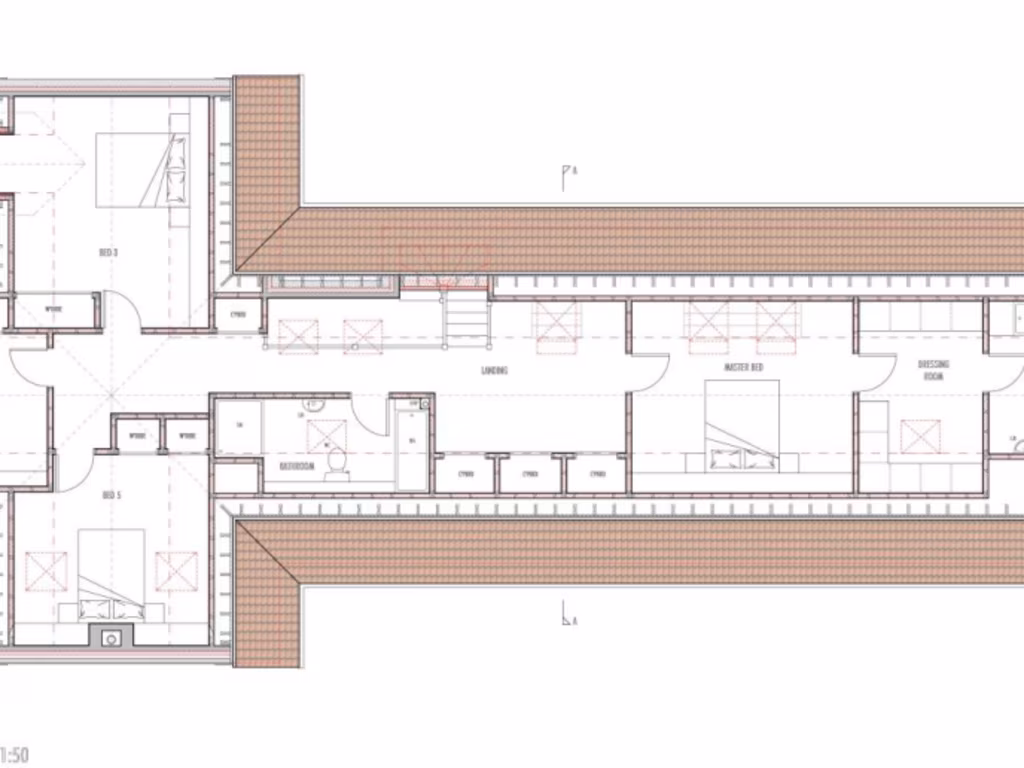
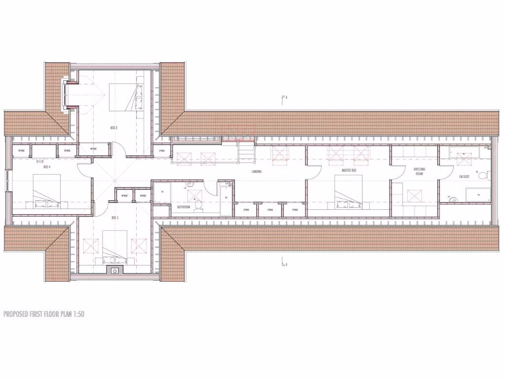
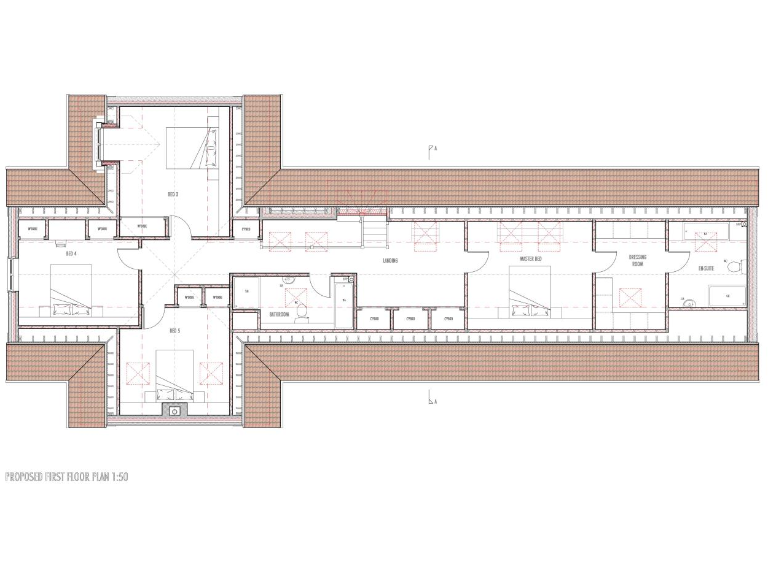
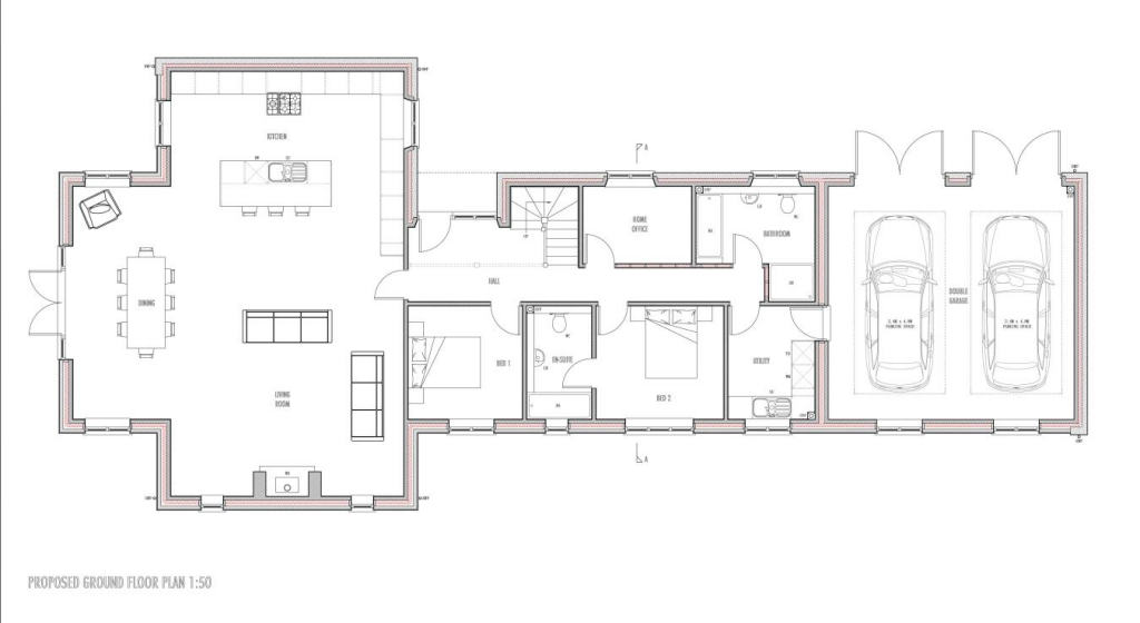
- Large open-plan kitchen/living/dining and home office included in consent
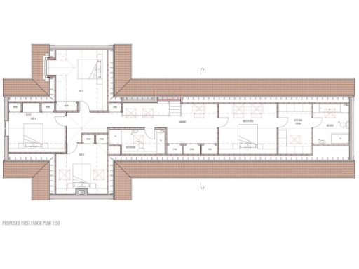
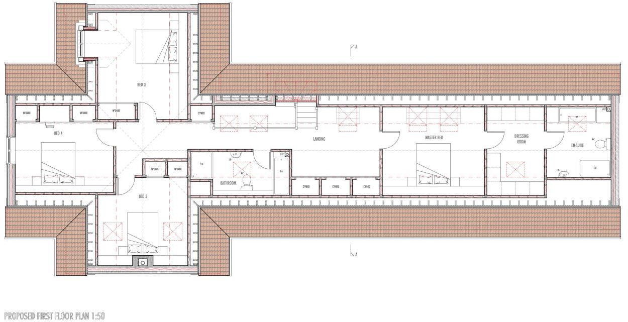
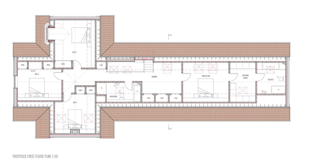
- Master suite with dressing room; six bedrooms and four bathrooms in design
- Integral double garage, gated entrance and parking
- Very large, private plot backing onto open fields; small watercourse boundary
- Mains water connected; electricity and drainage not yet connected
- Public footpath on southern boundary; right of way to adjacent field
- Rural location: average broadband, excellent mobile, Langport ~4km away
A rare single residential development plot on the edge of Pitney with planning permission (20/00753/REM) for a substantial two-storey chalet-style family house. The approved scheme provides flexible accommodation including a large open-plan kitchen/living/dining space, home office, master suite with dressing room and bathroom, five further bedrooms (one en-suite), utility room and integral double garage. The house sits on a very large, private plot backing onto open fields with gated access and a small bordering watercourse.
This is best suited to a family seeking countryside privacy or a developer/builder looking for a turnkey consent in a quiet hamlet. Services: mains water is connected but electricity and drainage are not yet connected, so buyers should factor connection costs and lead times into their proposals. The site has excellent mobile signal, average broadband and very low local crime, but it is a rural location — Langport is about 4km away and Somerton about 8km.
Practical points to note: planning permission has been granted for the detached dwelling shown in the submitted drawings; measurements should be independently verified. There is an existing right of way providing access to the adjacent field and a public footpath along the southern boundary. The plot is offered freehold with a guide price and informal tender date published by the seller.
The setting delivers strong potential for a high-spec family home with wide countryside views and generous private gardens. Buyers should budget for external services connections and be comfortable with rural living and the responsibilities of a large plot.
6 bedroom detached house for sale in Pitney, Langport, TA10 — £175,000 • 6 bed • 4 bath • 2457 ft²
Plot for sale in Lot 1 at Summerleaze, Marshalls Elm, Street, BA16 — £400,000 • 1 bed • 1 bath
Land for sale in Old Basin, Bridgwater, TA6 — £325,000 • 1 bed • 1 bath
Plot for sale in Lot 2 at Summerleaze, Marshalls Elm, Street, BA16 — £350,000 • 1 bed • 1 bath
Plot for sale in Dinnington, TA17 — £350,000 • 1 bed • 1 bath • 4753 ft²
Plot for sale in Land adjacent to Millway House, With outline planning consent, Lydford-on-Fosse, Somerton, TA11 — £165,000 • 1 bed • 1 bath














































































