West-facing garden, studio and plenty of private parking near schools and hospital.
Chain free four-bedroom semi-detached family home
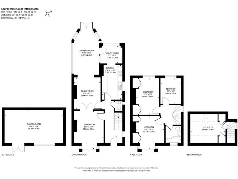
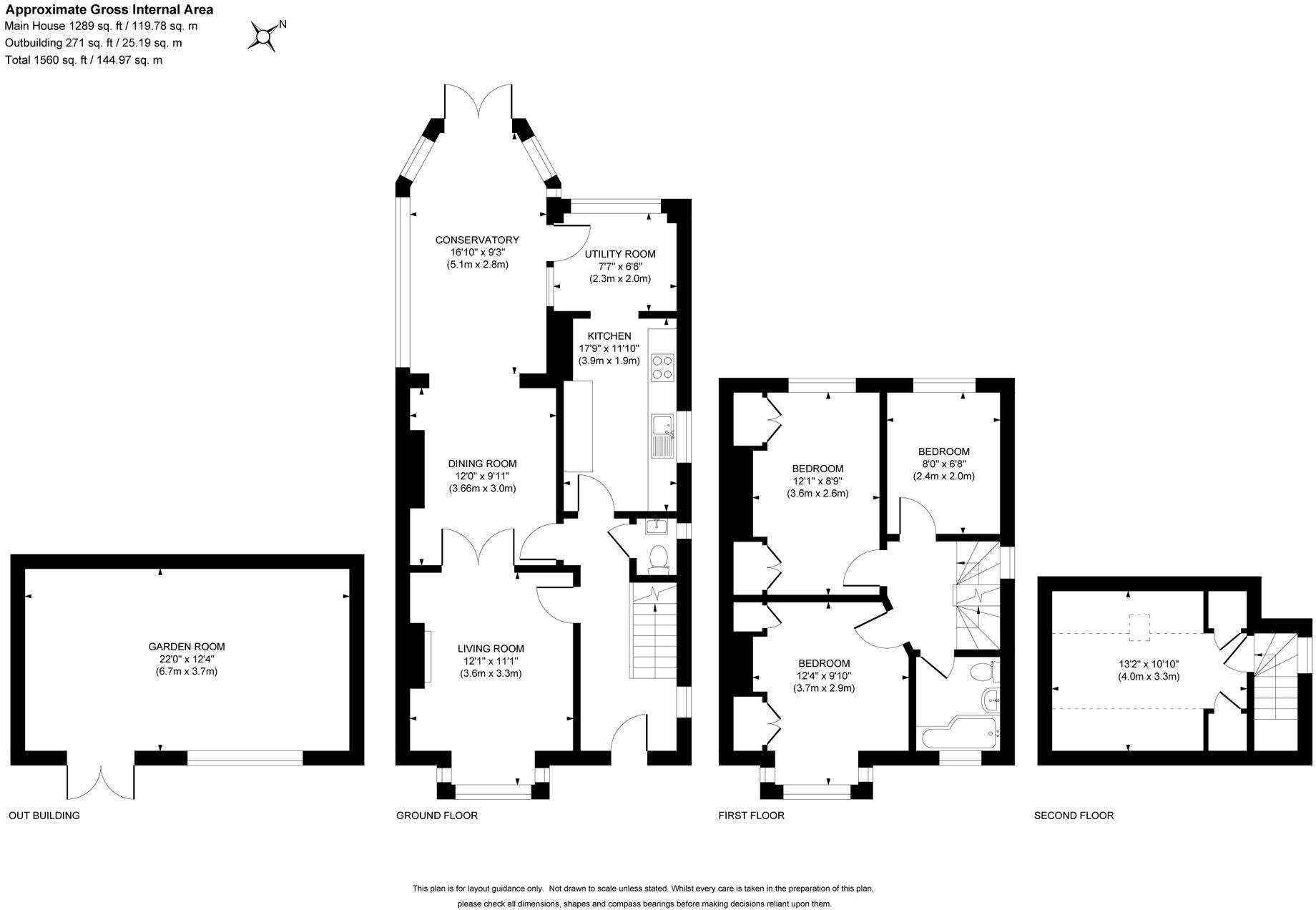
A deceptively spacious four-bedroom semi-detached family home offered chain free and ready for immediate occupation. The house sits on a decent plot with a west-facing rear garden of approximately 63' x 24', a useful studio/workshop and private driveway parking for several cars — practical for growing families or home workers.
Flexible living is a strong feature: lounge with fireplace, separate dining room, conservatory, kitchen with adjoining utility and a downstairs cloakroom. Three bedrooms and the family bathroom are on the first floor, with a fourth bedroom in the attic that offers clear potential for enlargement or conversion subject to planning (STPP).
The location is a major plus — short walks to multiple primary schools, Warden Park/Chailey school bus stops, the Princess Royal Hospital and local shops. Practical details: freehold, EPC rating D, single family bathroom, and built mid-20th century construction with double glazing installed before 2002.
This property will suit families seeking space, outdoor privacy and parking close to local schools and amenities. It will also appeal to buyers who want scope to update and extend; expect some improvement work to modernise systems and layout to personal taste.
3 bedroom semi-detached house for sale in Franklynn Road, Haywards Heath, RH16 — £650,000 • 3 bed • 2 bath • 1574 ft²
3 bedroom semi-detached house for sale in Woodlands Road, Haywards Heath, RH16 — £475,000 • 3 bed • 1 bath • 948 ft²
4 bedroom semi-detached house for sale in Blackwell Farm Road, East Grinstead, West Sussex, RH19 — £425,000 • 4 bed • 3 bath • 1766 ft²
3 bedroom semi-detached house for sale in Bentswood Crescent, Haywards Heath, RH16 — £380,000 • 3 bed • 1 bath • 851 ft²
4 bedroom semi-detached house for sale in Hamsey Road Sharpthorne RH19 — £500,000 • 4 bed • 2 bath • 1300 ft²
4 bedroom house for sale in Cobbetts Mead, Haywards Heath, RH16 — £615,000 • 4 bed • 2 bath • 2057 ft²






























































































































































