Large plot and flexible living close to hospital and town amenities.
Very large rear garden approximately 135' x 46'
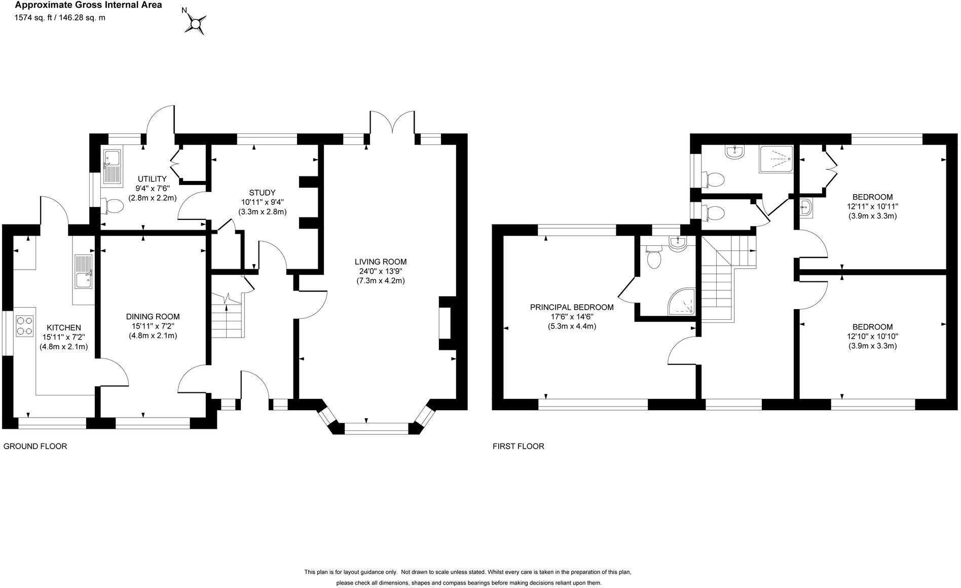
A spacious three-bedroom family home set on a very large, segmented rear garden (approx. 135' x 46'), perfect for children, vegetable beds or substantial extension subject to planning (STPP). The layout already includes a double-aspect living room with wood burner, separate dining room, study, utility and generous principal bedroom with en-suite — versatile spaces for family life and home working.
Practical benefits include private driveway parking for five to six vehicles, chain-free freehold ownership, an EPC rating of C and gas central heating via boiler and radiators. The property sits on the southern edge of town, about a five-minute walk to Princess Royal Hospital and around 1.2 miles from the railway station, with several well-regarded nearby schools.
Known considerations: the house dates from the early 20th century and shows signs of original construction standards (cavity walls assumed uninsulated) and secondary glazing rather than full double glazing, so thermal upgrading may be desirable. Any extensions or loft conversion would require planning permission (STPP) and are not guaranteed. The building presents clear potential but will reward buyers prepared to update and adapt it.
This home suits families seeking long-term space and scope to grow, or buyers looking for a substantial plot with development possibilities. Viewings are recommended after watching the video to appreciate garden scale and room proportions.
4 bedroom semi-detached house for sale in Wivelsfield Road, Haywards Heath, RH16 — £475,000 • 4 bed • 1 bath • 1289 ft²
4 bedroom detached house for sale in Beech Hill, Haywards Heath, RH16 — £600,000 • 4 bed • 1 bath • 1320 ft²
3 bedroom detached house for sale in Meeds Road, Burgess Hill, RH15 — £475,000 • 3 bed • 1 bath • 1093 ft²
3 bedroom semi-detached house for sale in Bentswood Crescent, Haywards Heath, RH16 — £380,000 • 3 bed • 1 bath • 851 ft²
6 bedroom semi-detached house for sale in London Road, Burgess Hill, RH15 — £675,000 • 6 bed • 3 bath • 2504 ft²
4 bedroom detached house for sale in Hoblands, Haywards Heath, RH16 — £500,000 • 4 bed • 1 bath • 1083 ft²






























































































































