CM2 8TJ - Plot for sale in Butts Way, Chelmsford, CM2

View on Property Piper

Plot for sale in Butts Way, Chelmsford, CM2

Summary - Butts Way, Chelmsford CM2 8TJ

1 bed 1 bath Plot

**Standout Features:**
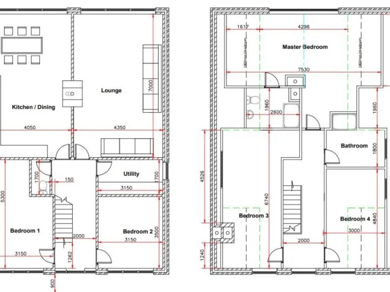
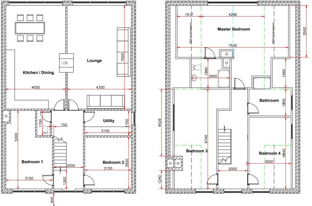
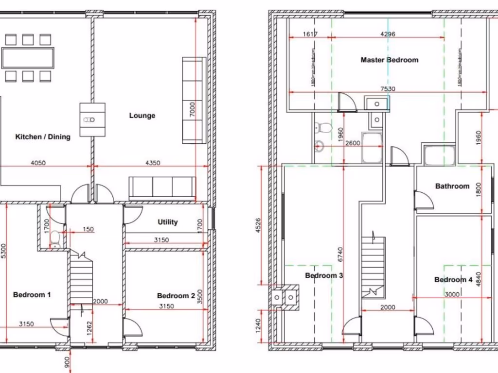
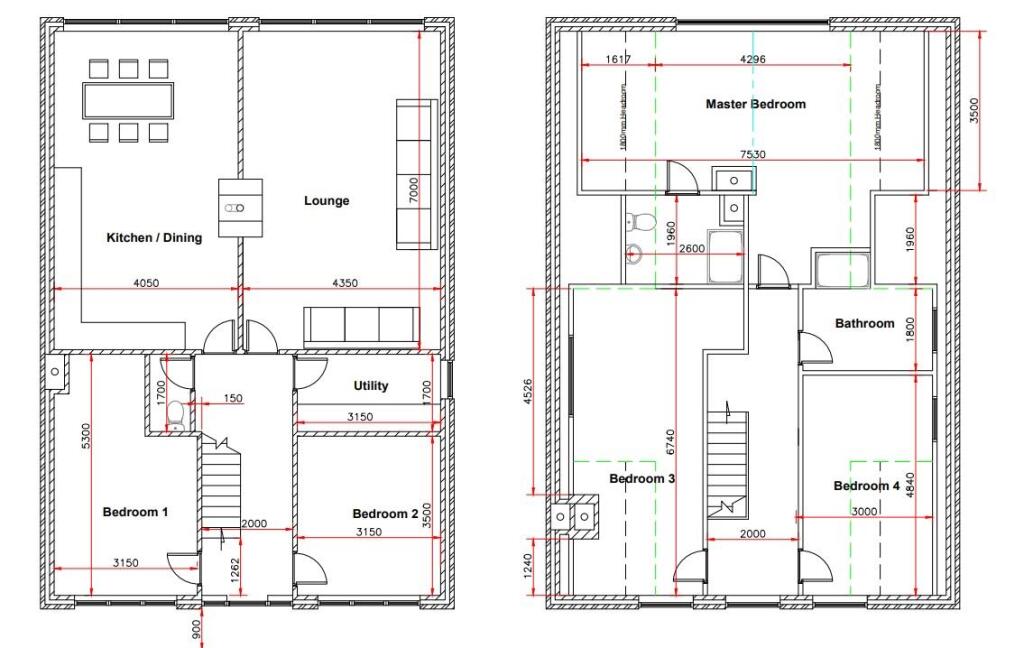
- Full planning permission granted for a spacious two-storey, five-bedroom home (approx. 1940 sq ft / 180 sq m).
- Chain-free sale, allowing for a quicker transaction.
- Generous plot size (~155 feet) on the outskirts of Chelmsford.
- Located in a peaceful lane, within reach of local amenities and scenic walks.
- Excellent connectivity with nearby road access to Chelmsford city center.
- Mains drainage and water already connected; low crime area.

**Summary:**
Seize this fantastic development opportunity to create your dream home in a highly desirable Chelmsford location! With full planning permission secured for a modern two-storey dwelling boasting approximately 1940 square feet of living space, this five-bedroom design offers incredible versatility. The ground floor will feature an open-plan kitchen with dining area, a spacious lounge, a utility room, and additional rooms that can serve as bedrooms or reception areas. Upstairs, enjoy the privacy of three bedrooms and two bathrooms.

Nestled in a tranquil lane on the edge of Galleywood, this property provides easy access to essential amenities, such as local shops and schools, while also being a stone’s throw from Galleywood Common, perfect for families or outdoor enthusiasts. While some renovation is expected, this is a rare chance to secure a significant plot and build a custom home tailored to your lifestyle. Don't miss out—opportunities like this in affluent areas are few and far between!

Property Details

Brochure Descriptions

Image Descriptions

Floorplan Description

Rooms

Textual Property Features

Detected Visual Features

Nearby Schools

Nearest Bars And Restaurants

,,,,}

Nearest General Shops

,,}

Nearest Grocery shops

,,}

Nearest Supermarkets

,,}

Nearest Religious buildings

,,}

Nearest Medical buildings

,,,}

Nearest Airports

,,}

Nearest Leisure Facilities

,,,,}

Nearest Tourist attractions

,,}

Nearest Train stations

,,,,}

Nearest Bus stations and stops

,,,,}

Nearest Hotels

,,}

Tags

Local Market Stats

Similar Properties

Meta

High Res Images

Compatible Images

Low res Images

Thumbnails

Raw Images

High Res Floorplan Images

Compatible Floorplan Images

Low res Floorplan Images

FloorplanImages Thumbnail

Raw Floorplan Images