Renovated four-bedroom house on extensive plot backing tranquil fields, near Chelmsford.
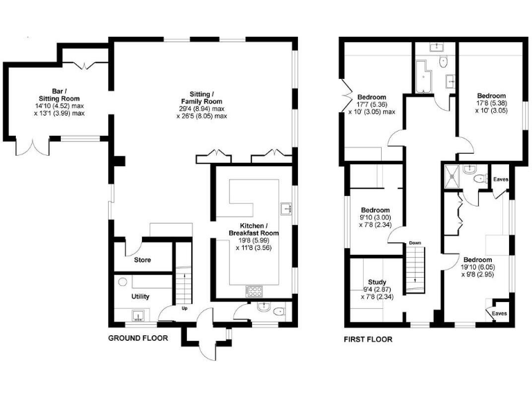
- Recently renovated four double bedrooms and three bathrooms
- Principal suite with dressing area and en-suite shower room
- Large plot approaching 0.4 acres; south-westerly garden backing equestrian land
- Off-street parking for several vehicles; garage and shingle driveway
- Built before 1900 with solid brick walls; assumed no cavity insulation
- Tenure details not provided; buyer should verify ownership type
- Adjacent third-acre plot available separately; development subject to permission
- Excellent mobile signal; broadband speeds average in the area
A generously proportioned four-bedroom detached home recently renovated and set on a very large plot approaching 0.4 acres. The house combines contemporary open-plan living with countryside outlooks, backing onto protected equestrian land for privacy and calm. Interiors feel bright and modern, with a striking open-plan sitting/dining area, a stylish fitted kitchen, and a garden room currently used as an entertainment lounge.
The principal suite includes an en-suite shower room and dressing area; two bedrooms benefit from vaulted ceilings and potential to add a balcony to enjoy the farmland views. Practical features include a separate utility room, ground-floor cloakroom, integrated kitchen appliances, double glazing installed post-2002, and off-street parking for several vehicles via a shingle driveway.
Important points to note: the house was originally constructed before 1900 and has solid brick walls with no known cavity insulation (assumed), which could mean higher energy or retrofit costs if you intend to improve thermal performance. Tenure details are not provided and should be confirmed. Broadband speeds are average despite excellent mobile signal. The adjacent plot is available separately and could offer development potential subject to planning consent.
Located around three miles from Chelmsford city centre, the property suits families seeking space and countryside adjacency while remaining within commuting distance of the city and mainline rail. Local schools include several rated Good and Outstanding, and nearby Galleywood Common provides extensive outdoor recreation.
4 bedroom detached house for sale in Rignals Lane, Chelmsford, CM2 — £985,000 • 4 bed • 2 bath • 2745 ft²
5 bedroom detached house for sale in The Street, Chelmsford, CM2 — £700,000 • 5 bed • 2 bath • 1657 ft²
4 bedroom detached house for sale in Pavitt Meadow, Galleywood, CM2 — £600,000 • 4 bed • 2 bath • 1511 ft²
4 bedroom semi-detached house for sale in Brook Lane, Galleywood, Chelmsford, Essex, CM2 — £575,000 • 4 bed • 1 bath • 2098 ft²
4 bedroom detached house for sale in Braintree Road, Little Waltham, Chelmsford, CM3 — £1,400,000 • 4 bed • 3 bath • 3349 ft²
4 bedroom detached house for sale in Longacre, Chelmsford, CM1 3BJ, CM1 — £495,000 • 4 bed • 2 bath • 1034 ft²






































































































