Substantial period conversion with private garden and gated parking near Botanic Gardens.
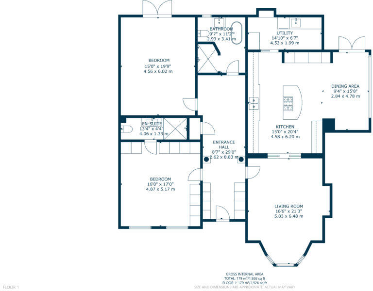
Extremely large main-door conversion — nearly 1,960 sq ft
Newly renovated throughout with modern kitchen and bathrooms
Two double bedrooms; principal with en suite shower room
Private gardens front, side and rear — direct patio access
Private off-street parking via rear lane and electric gates
Gas central heating, double glazing, EER Band C
Council tax described as quite expensive — budget accordingly
Local area notes: student neighbourhood influence and deprivation flag
Set within an imposing Victorian villa on Cleveden Gardens, this main-door conversion delivers an exceptionally large, newly renovated two-bedroom home arranged over one generous level. High ceilings, bay windows and original period mouldings have been carefully retained alongside a contemporary kitchen, modern bathrooms and integrated utility facilities — blending character with practical, move-in-ready finishes.
At almost 1,960 sq ft the layout feels more like a small house than a flat: a bay-fronted lounge, dining kitchen with patio access, two double bedrooms (one with en suite) and a sizeable family bathroom. Private outdoor space wraps around the property and the rear garden connects to a private parking space accessed through electric gates — a rare combination for this area.
Practical benefits include gas central heating, double glazing and an Energy Efficiency Rating of C. The property is a strong option for families seeking substantial single-level living in Kelvinside, or for buyers looking to downsize without sacrificing space and period character.
Buyers should note material points plainly: council tax is described as quite expensive, and local classifications reference a student-led neighbourhood and an area-level deprivation indicator. While the interior is newly renovated, this is a conversion within a larger villa, so prospective purchasers should satisfy themselves on service arrangements and any communal maintenance responsibilities.
3 bedroom flat for sale in Flat 5 28 Cleveden Drive, Kelvinside, G12 0RX, G12 — £469,000 • 3 bed • 2 bath • 1485 ft²
2 bedroom apartment for sale in Cleveden Drive, Kelvinside, Glasgow, G12 — £275,000 • 2 bed • 2 bath • 824 ft²
3 bedroom apartment for sale in 994A Great Western Road, Kelvinside, G12 0NS, G12 — £765,000 • 3 bed • 3 bath • 1905 ft²
3 bedroom apartment for sale in 0/1 7 Winton Drive, Kelvinside, G12 0PZ, G12 — £585,000 • 3 bed • 2 bath • 2174 ft²
2 bedroom apartment for sale in Cleveden Drive, Kelvinside, Glasgow, G12 — £259,000 • 2 bed • 1 bath • 814 ft²
2 bedroom apartment for sale in Cleveden Drive, Kelvinside, Glasgow, G12 — £335,000 • 2 bed • 1 bath • 1087 ft²






























































































































































































































































































































































































































