**Standout Features:**
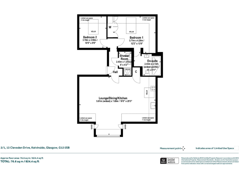
- Bright and airy two-bedroom upper conversion in a stunning Victorian sandstone villa.
- Recently renovated to a high standard with stylish, neutral decor throughout.
- Spacious open-plan living area with south-facing windows and charming window seat.
- Modern kitchen featuring high-quality integrated appliances and stone work surfaces.
- Good-sized bedrooms with accommodating proportions; principal room includes a contemporary en-suite.
- Tranquil, leafy plot in one of the West End’s prestigious addresses.
**Summary:**
Discover an exceptional opportunity to acquire a beautifully renovated two-bedroom apartment nestled in the heart of Kelvinside, one of the West End’s most coveted residential areas. This bright and airy upper conversion boasts an elegant semi-detached sandstone villa, surrounded by lush greenery that provides a rare sense of seclusion while remaining conveniently close to local amenities. The interior showcases spacious open-plan living, flooded with natural light from wide south-facing windows, and features a modern kitchen equipped with high-specification appliances.
Both bedrooms are generously sized and designed for comfort, offering ample space for double beds and furnishings, complemented by chic bathrooms. Perfect for young professionals, first-time buyers, or investors looking for a quality rental property, this home delivers a stylish lifestyle in a prime location, just a mile from Glasgow University and close to public transportation routes. Enjoy the advantages of modern living in a tranquil setting—an exclusive find that won’t last long. With council tax at an affordable rate and potential for personalization, this property is poised for immediate move-in. Don’t miss your chance to make it yours!
2 bedroom apartment for sale in Cleveden Crescent, Cleveden, Glasgow, G12 — £399,000 • 2 bed • 2 bath • 1270 ft²
2 bedroom apartment for sale in Sanda Street, North Kelvinside, Glasgow, G20 — £350,000 • 2 bed • 2 bath • 814 ft²
2 bedroom apartment for sale in Cleveden Drive, Kelvinside, Glasgow, G12 — £335,000 • 2 bed • 1 bath • 1087 ft²
2 bedroom flat for sale in Main Door, 6 Cleveden Gardens, Kelvinside, G12 0PT, G12 — £725,000 • 2 bed • 2 bath • 1959 ft²
2 bedroom apartment for sale in Cleveden Drive, Kelvinside, Glasgow, G12 — £259,000 • 2 bed • 1 bath • 814 ft²
3 bedroom apartment for sale in 0/1 7 Winton Drive, Kelvinside, G12 0PZ, G12 — £585,000 • 3 bed • 2 bath • 2174 ft²






























































































































































