Spacious family home with large plot and barn conversion opportunity.
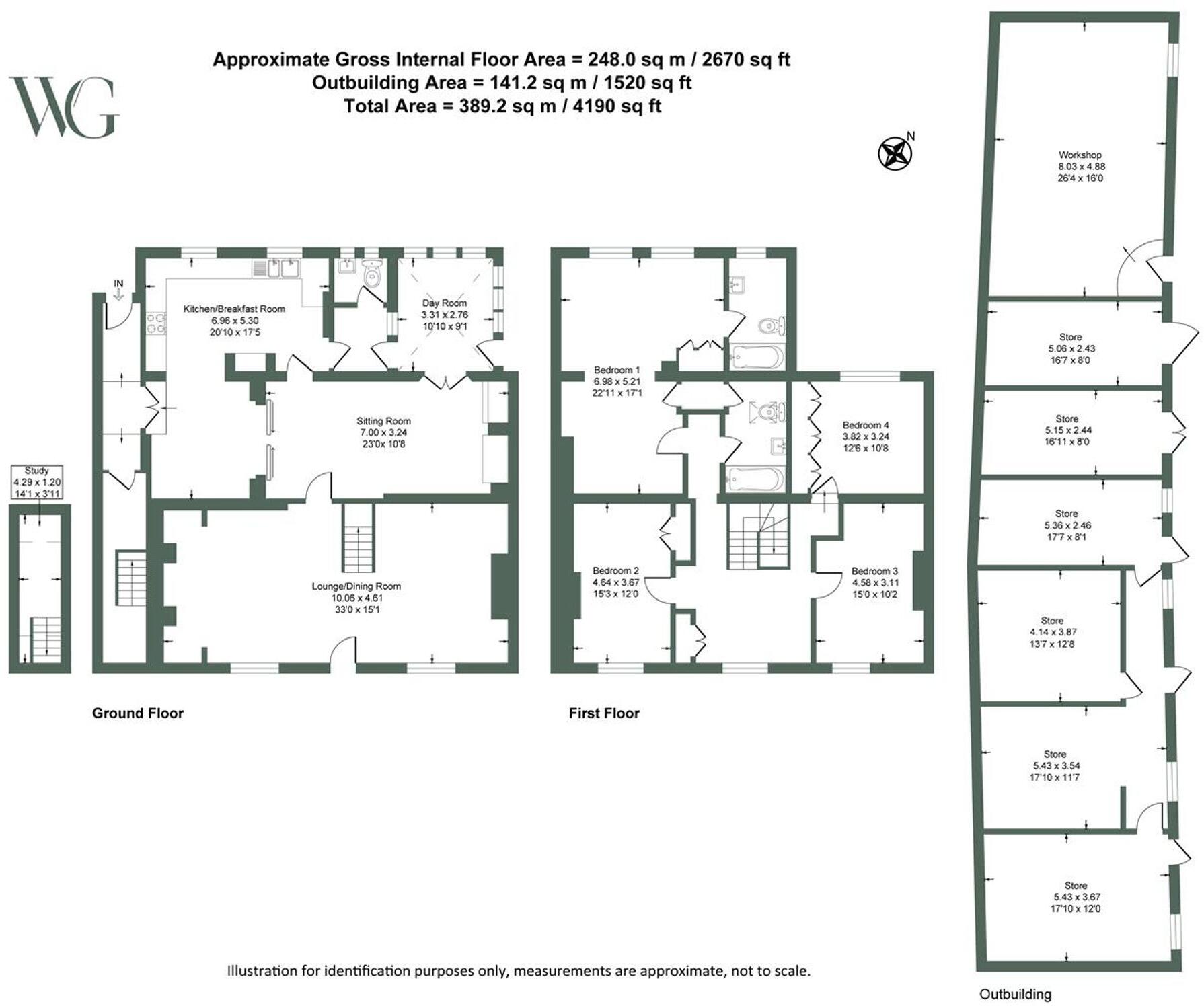
Large detached Georgian farmhouse, approx 2,670 sq ft;Large private garden and generous off‑street parking;Recently refitted kitchen and en‑suite;Four bedrooms, ideal for multi‑generational living;Outbuildings/barns with development potential (subject to planning);EPC rating F;Oil-fired boiler heating, not connected to gas;Exterior shows wear — possible roof and damp issues, requires inspection
This detached Georgian farmhouse combines generous, characterful living space with a large garden and substantial parking — ideal for multi‑generational family life. The interior has been recently upgraded with a refitted kitchen and en‑suite, creating comfortable, ready‑to‑use accommodation across four bedrooms and generous reception rooms.
The property includes outbuildings and former barns with development potential subject to planning permission, offering extra income or annex possibilities. The large plot and rural village setting provide privacy and countryside views while remaining close to a good local primary school.
Buyers should note material negatives: the EPC rating is F, heating is oil‑fired via boiler and radiators, and the stone exterior shows wear with possible roof and damp issues requiring inspection and repair. Outbuildings will need formal planning and likely significant conversion work. Overall, this is a largely renovated period house with exterior and servicing maintenance needs and clear scope for further improvement or development.
4 bedroom house for sale in Old Pear Tree Farm, Back Street, Wold Newton, Driffield, YO25 3YJ, YO25 — £550,000 • 4 bed • 2 bath • 2670 ft²
6 bedroom detached house for sale in Hunmanby Road, Burton Fleming, Driffield, East Yorkshire, YO25 — £1,100,000 • 6 bed • 2 bath • 5292 ft²
7 bedroom detached house for sale in Gransmoor Road, Gransmoor, YO25 8HX, YO25 — £635,000 • 7 bed • 3 bath • 3509 ft²
4 bedroom detached house for sale in Orchard Farm, Main Street, Great Kelk, Driffield, YO25 8HN, YO25 — £650,000 • 4 bed • 2 bath • 2433 ft²
5 bedroom detached house for sale in East Lutton, Malton, North Yorkshire, YO17 — £895,000 • 5 bed • 2 bath • 4120 ft²
5 bedroom detached house for sale in Church Hill, Middleton On The Wolds, Driffield, YO25 — £475,000 • 5 bed • 2 bath • 3445 ft²






























































































































































































