SE26 6QP - 2 bedroom flat for sale in Taylors Lane, Sydenham, London,…

View on Property Piper

2 bedroom flat for sale in Taylors Lane, Sydenham, London, SE26

Summary - WELLS PARK COURT, 39 FLAT 12A TAYLORS LANE LONDON SE26 6QP

2 bed 1 bath Flat

**Standout Features:**
- Two-bedroom top floor flat with SHARE OF FREEHOLD
- Private balcony with stunning views into Wells Park
- Spacious 21ft lounge/diner filled with natural light
- Modern kitchen with shaker-style units and integrated appliances
- Generous bedrooms, including master with bespoke built-in wardrobes
- Off-street parking
- Peaceful location near Sydenham center and amenities

**Concise Property Summary:**
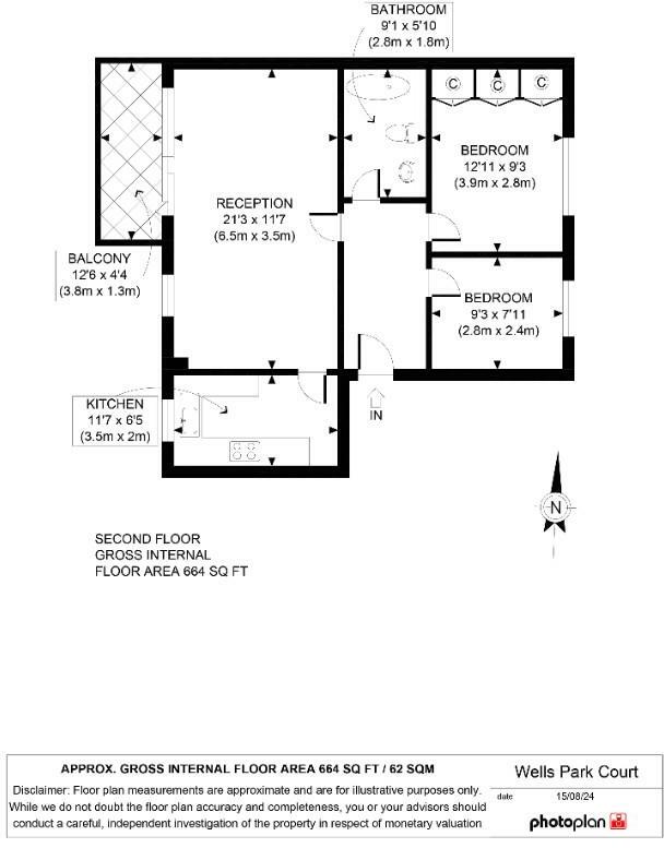
This exquisite two-bedroom top floor flat on Taylors Lane in Sydenham is a rare gem, ideal for first-time buyers seeking a blend of comfort and convenience. Bathed in natural light, the generous 21ft lounge/diner opens onto a private balcony that offers stunning views of Wells Park—perfect for serene evenings or entertaining guests. The modern kitchen boasts stylish shaker units and integrated appliances, while the spacious bedrooms feature lovely décor, including a master suite with bespoke built-in wardrobes. Enhancing its allure, this property comes with off-street parking and is nestled in a tranquil neighborhood, conveniently close to parks, shops, and transport links. With an EPC rating of C and council tax band C, this flat is both economically viable and a slice of urban living balanced with green space. Don’t miss the opportunity to view this unique property—homes like this are rare on the market!

Property Details

Brochure Descriptions

Image Descriptions

Floorplan Description

Rooms

Textual Property Features

Detected Visual Features

EPC Details

Nearby Schools

Nearest Bars And Restaurants

,,,,}

Nearest General Shops

,,}

Nearest Grocery shops

,,}

Nearest Supermarkets

,,}

Nearest Religious buildings

,,}

Nearest Medical buildings

,,,}

Nearest Airports

,,}

Nearest Leisure Facilities

,,,,}

Nearest Tourist attractions

,,}

Nearest Train stations

,,,,}

Nearest Bus stations and stops

,,,,}

Nearest Hotels

,,}

Tags

Local Market Stats

AirBnB Data

Similar Properties

Meta

High Res Images

Compatible Images

Low res Images

Thumbnails

Raw Images

High Res Floorplan Images

Compatible Floorplan Images

Low res Floorplan Images

FloorplanImages Thumbnail

Raw Floorplan Images