Period flat with roof terrace and great transport links for city commuters.
- Grade II listed former fire station with period character
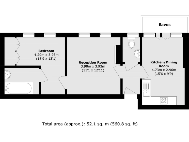
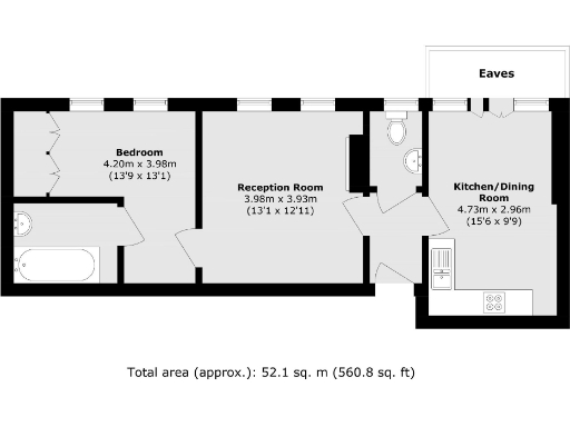
- Bright reception with tall sash-style windows and timber floors
- Large kitchen/dining room with balcony and roof terrace access
- One double bedroom with built-in wardrobes and eaves storage
- Leasehold: 974 years remaining (very long)
- Service charge £2,443pa; ground rent £200pa; Council Tax Band E
- Listed status may restrict alterations and complicate repairs
- Solid brick walls likely without cavity insulation; glazing not defined
A bright one-bedroom apartment within Kennington’s iconic Grade II listed former Fire Station, offering 560 sq ft of well-proportioned living space. The reception room benefits from tall sash-style windows and stripped timber floors, while the large kitchen/dining room provides comfortable space for cooking and entertaining. Built-in wardrobes and eaves storage add practical storage for urban living.
The building’s listed status gives character and strong central-London curb appeal but brings restrictions that may complicate alterations and maintenance. The flat is leasehold (very long 974-year lease) with an annual service charge of £2,443 and ground rent of £200; council tax is Band E. Overall the apartment appears to be in good condition but solid-brick construction likely lacks cavity insulation; glazing details are not defined.
This property suits a first-time buyer seeking a character-filled home or a buyer wanting a central pied-à-terre with easy access to Kennington and Elephant & Castle (Northern, Bakerloo and National Rail). Fast broadband, excellent mobile signal and close local amenities make it practical for everyday life; strong rental demand in SE11 also makes it viable as an investment, subject to listed-building considerations.
3 bedroom apartment for sale in Renfrew Road, London, SE11 — £675,000 • 3 bed • 3 bath • 996 ft²
2 bedroom flat for sale in Renfrew Road, London, SE11 — £475,000 • 2 bed • 2 bath • 679 ft²
2 bedroom apartment for sale in Renfrew Road, London, SE11 — £675,000 • 2 bed • 1 bath • 807 ft²
1 bedroom apartment for sale in Sunbury Street, Woolwich, SE18 — £300,000 • 1 bed • 1 bath • 531 ft²
1 bedroom flat for sale in Seaton Road, Kennington, London, SE11 — £375,000 • 1 bed • 1 bath • 674 ft²
1 bedroom apartment for sale in Kennington Lane, London, SE11 — £350,000 • 1 bed • 1 bath • 371 ft²


































