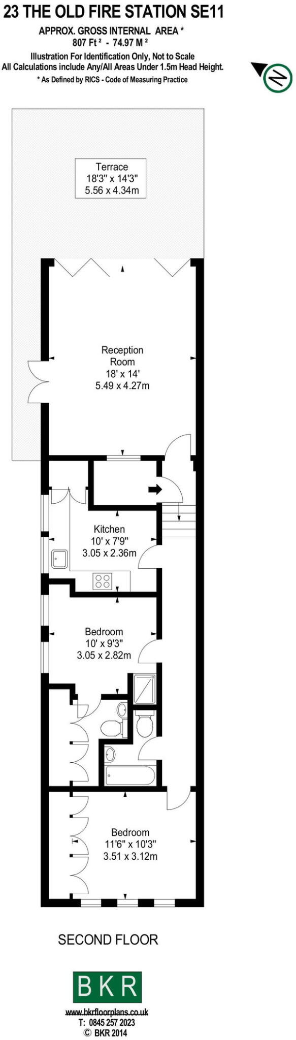
**Property Highlights:**
- Unique historic apartment in the Old Fire Station
- Two spacious double bedrooms with built-in storage
- Expansive reception room with vaulted ceilings and private terrace
- Close proximity to Kennington and Elephant & Castle Underground Stations
- Vibrant local area with shops, bars, cafes, and cultural amenities
- 999-Year Lease with affordable ground rent of £200/year
- Service charge of £2,500/year
Nestled in the vibrant Kennington area, this two-bedroom apartment in the historic Old Fire Station merges character and comfort. Featuring a spacious reception room adorned with vaulted ceilings and a delightful private terrace, this home is designed for those who appreciate both style and practicality. The separate kitchen and generous double bedrooms provide ample living space, ideal for professionals or small families.
Convenience is paramount with Kennington and Elephant & Castle Underground stations just a short walk away, making your commute to central London a breeze. The area is a bustling hub of culture, with a variety of shops, bars, and restaurants at your doorstep, plus the popular Farmers Market at St Mark's Church every Saturday.
This property not only offers a unique residential experience but also presents excellent long-term investment potential with its prime location and community vibe. While the service charge could be a consideration, the benefits of city living in a charming environment far outweigh the drawbacks. Don’t miss this exclusive opportunity to own a piece of history in a sought-after urban setting.
3 bedroom apartment for sale in Renfrew Road, London, SE11 — £675,000 • 3 bed • 3 bath • 996 ft²
2 bedroom flat for sale in Renfrew Road, London, SE11 — £500,000 • 2 bed • 2 bath • 679 ft²
2 bedroom apartment for sale in Steedman Street, London, SE17 — £650,000 • 2 bed • 1 bath • 868 ft²
1 bedroom apartment for sale in Crampton Street, London, SE17 — £450,000 • 1 bed • 1 bath • 500 ft²
2 bedroom flat for sale in Southwark Bridge Road, Elephant & Castle, SE1 — £625,000 • 2 bed • 2 bath • 745 ft²
2 bedroom flat for sale in Walworth Road, Walworth, London, SE17 — £725,000 • 2 bed • 2 bath • 837 ft²










































