Seconds from Kennington Station with a large outdoor space.
Large private roof terrace, rare for central London flats
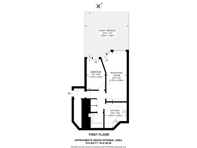
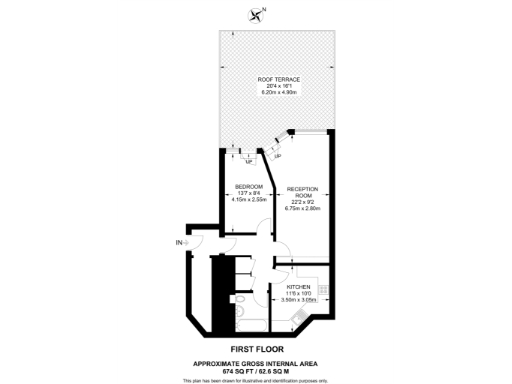
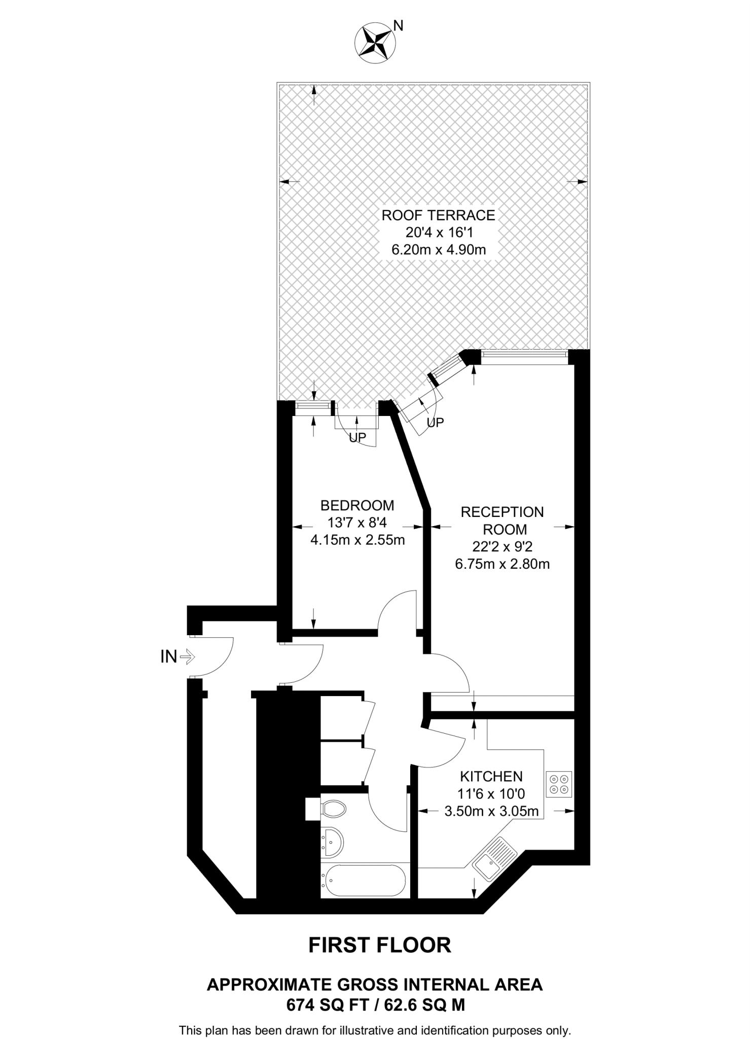
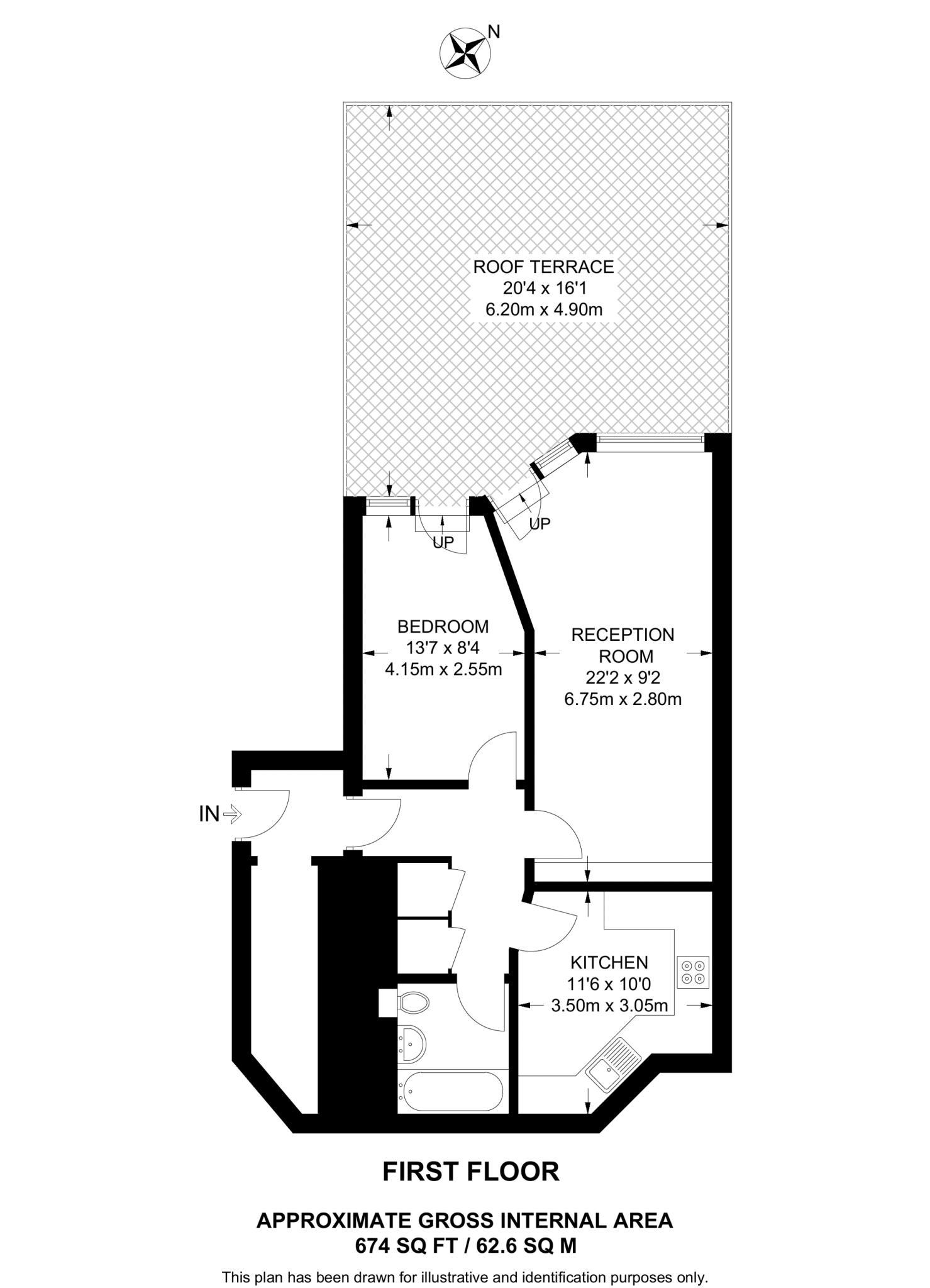
Spacious and well-located, this one-bedroom first-floor flat offers 674 sq ft of traditional layout living with a notable private roof terrace — a rare find for central London flats. The separate reception room and integrated kitchen create a practical, comfortable home for a first-time buyer seeking extra outdoor space and easy commuting.
Set seconds from Kennington Underground Station, the property benefits from excellent transport links, fast broadband and strong mobile signal. The building is secure and served by a lift, and the flat sits within a community heating scheme with mains gas. Local schools include several highly rated primaries and secondaries, and Kennington’s shops, cafes and amenities are all close by.
Practical considerations: the building is leasehold (113 years remaining), with an average service charge of approximately £3,500 per year and a small ground rent. Images indicate some historic water staining in the living room that will need investigation and repair. The block dates from the late 1970s/early 1980s and has double glazing, though install dates are unknown.
This property suits a buyer wanting central convenience, outside space and a generously sized one-bedroom home ready to personalise. Budget for service charges and address the water damage to ensure the flat reaches its full potential.
2 bedroom flat for sale in Kennington Road, Kennington, SE11 — £775,000 • 2 bed • 2 bath • 893 ft²
1 bedroom flat for sale in St. Agnes Place, London, SE11 — £450,000 • 1 bed • 1 bath • 600 ft²
1 bedroom flat for sale in Kennington Road, Kennington, SE11 — £475,000 • 1 bed • 1 bath • 516 ft²
1 bedroom flat for sale in Aragon Court, London, SE11 — £400,000 • 1 bed • 1 bath • 533 ft²
1 bedroom flat for sale in Hotspur Street, London, SE11 — £400,000 • 1 bed • 1 bath • 521 ft²
2 bedroom flat for sale in Hotspur Street, Kennington, SE11 — £895,000 • 2 bed • 2 bath • 903 ft²


























































































































































