Spacious period conversion with balcony, close to Queens Road station.
First-floor Victorian conversion with high ceilings and large sash windows
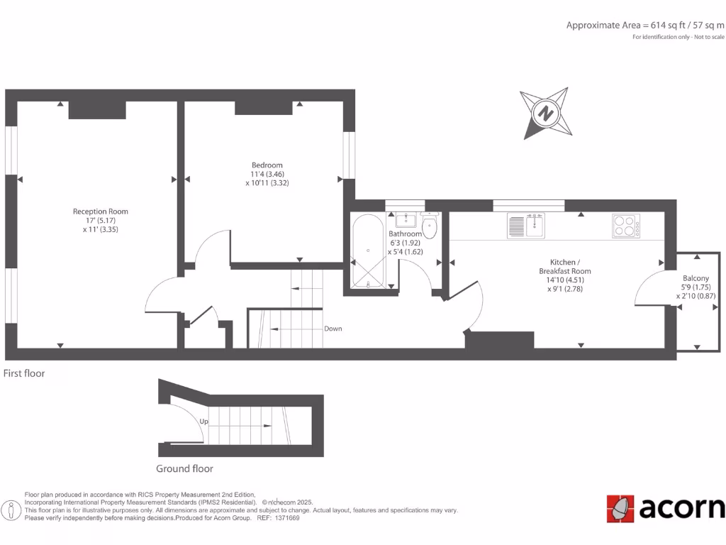
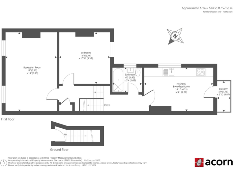
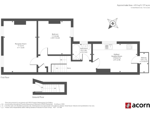
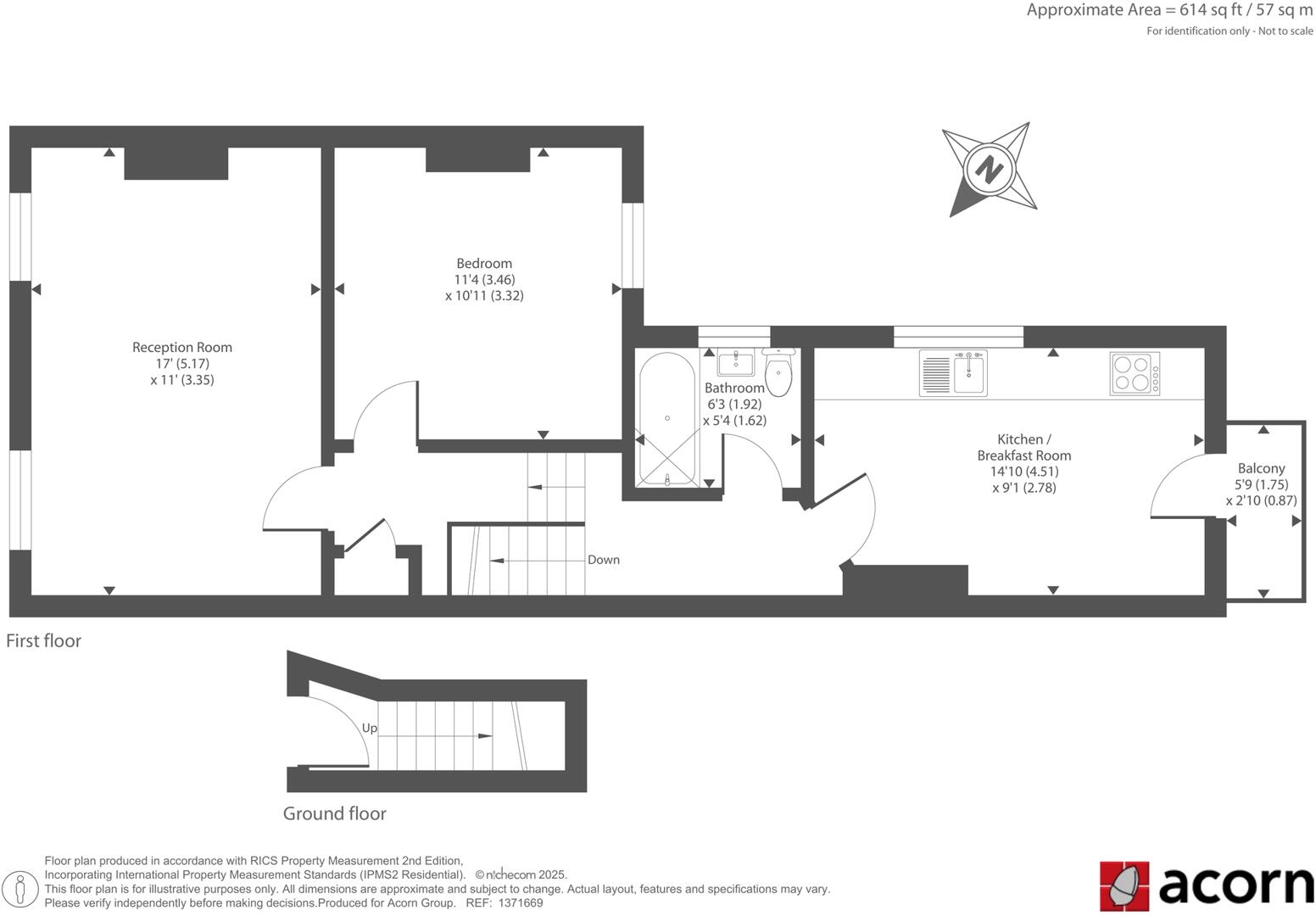
A bright one-bedroom first-floor Victorian conversion offering 614 sqft of well-proportioned living on a quiet, tree-lined street. High ceilings and large sash windows create an airy front reception room, while a modern kitchen leads out to a private rear balcony — useful outdoor space for a central London home.
This flat suits first-time buyers or investors seeking a period property with contemporary updates. It comes with a long lease (approximately 106 years remaining) and an affordable council tax band. Transport links are strong, with Queens Road station within walking distance for direct services to London Bridge and Overground connections.
Notable negatives are straightforward: the property is leasehold (ground rent details TBC), has an Energy Efficiency Rating of D, and the original solid brick walls are assumed to lack insulation — that may mean higher heating costs until improved. The wider local area scores high for amenities and schooling but is classified as very deprived, so buyers should weigh local pricing and long-term plans.
Overall this is a characterful, well-located one-bedroom that balances Victorian features with a modern kitchen and balcony. It will particularly appeal to those buying their first home or investors wanting a lettable asset near good transport and local amenities.
1 bedroom flat for sale in Queens Road, Peckham, London, SE15 — £350,000 • 1 bed • 2 bath • 511 ft²
1 bedroom apartment for sale in St Marys Road, Nunhead, SE15 — £425,000 • 1 bed • 1 bath • 527 ft²
1 bedroom apartment for sale in Evan Cook Close, Peckham, London, SE15 — £350,000 • 1 bed • 1 bath • 490 ft²
1 bedroom apartment for sale in Carlton Grove, London, SE15 — £430,000 • 1 bed • 1 bath • 600 ft²
1 bedroom flat for sale in Hollydale Road, Nunhead, SE15 — £350,000 • 1 bed • 1 bath • 565 ft²
1 bedroom flat for sale in Kings Grove, London, SE15 — £375,000 • 1 bed • 1 bath • 567 ft²






















































