Well-located period flat with ready-to-use layout and good transport links.
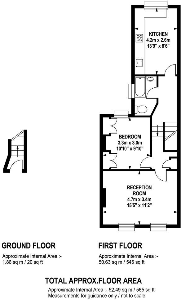
One double bedroom in a period conversion, 565 sq ft
119 years remaining on lease; low ground rent (£10)
Separate living room and kitchen/diner; good natural light
Shared front garden; no substantial private outdoor space
Below-average service charge (£760) and cheap council tax band
Solid brick walls; assumed no cavity insulation (thermal upgrade possible)
Excellent transport — Nunhead ~10 min, Queens Road Peckham ~6 min walk
Area classed as deprived; close to strong local amenities and schools
Set on a handsome Victorian terrace on Hollydale Road, this one-bedroom period conversion offers comfortable urban living in popular Nunhead. The flat occupies the upper floor of a mid-terrace building, with a separate living room, fitted kitchen/diner, and a double bedroom — well suited to a first-time buyer or buy-to-let investor wanting a ready-to-move-in home in a well-connected neighbourhood.
Practical details work in the buyer’s favour: 565 sq ft, 119 years remaining on the lease, low ground rent (£10) and a below-average service charge (£760). Transport is convenient — Nunhead station is about a 10-minute walk and Queens Road Peckham around six minutes — putting central London services within easy reach. Local amenities are excellent with independent shops, cafés, a popular pub and weekly markets close by.
The building retains period character (bay window, high ceilings) and the flat is presented in clean contemporary décor with double glazing and gas central heating. Note areas for consideration: the property sits in an area classed as deprived, the exterior walls are solid brick with assumed lack of insulation, and there’s limited internal space compared with larger flats. The shared front garden provides some outside space but private outdoor area is minimal.
Overall this is a practical, well-located one-bed with clear income or occupation potential. Buyers seeking a larger family home or those requiring significant outdoor space should look elsewhere; investors and first-time purchasers will appreciate the location, transport links and manageable ongoing costs.
1 bedroom apartment for sale in Gibbon Road, London, SE15 — £360,000 • 1 bed • 1 bath • 612 ft²
1 bedroom flat for sale in Gautrey Road, Nunhead, SE15 — £325,000 • 1 bed • 1 bath • 451 ft²
1 bedroom apartment for sale in Gautrey Road, London, SE15 — £335,000 • 1 bed • 1 bath • 677 ft²
1 bedroom apartment for sale in Kimberley Avenue, London, SE15 — £325,000 • 1 bed • 1 bath • 408 ft²
1 bedroom apartment for sale in St Marys Road, Nunhead, SE15 — £425,000 • 1 bed • 1 bath • 527 ft²
2 bedroom flat for sale in York Grove, London, SE15 — £485,000 • 2 bed • 1 bath • 573 ft²














































