High-potential rural development with planning near the Peak District.
Planning in place for 11 saleable dwellings (part of 13-unit scheme); some demolition completed
Site extends to about 1.02 acres with over 1,200 sqm gross internal area
Three-phase electricity available; roof solar panels excluded from sale
Purchaser must install new mains water connection; drains variation pending
Purchaser responsible for construction and ongoing maintenance of primary access
Some buildings are unrenovated — repair, modernisation and conversion costs expected
Two barns (3b and 5) are retained by the seller and not included
Broadband/mobile coverage may be variable; verify speeds and coverage onsite
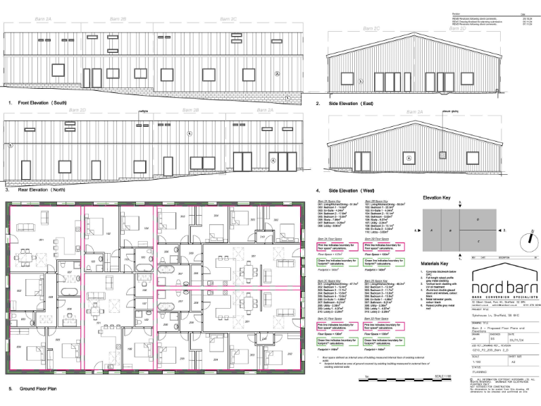
Syke House Farm is a rare country development site with full planning for multiple barn-to-dwelling conversions. Set on about 1.02 acres on the edge of the Peak District, the scheme already benefits from a combination of full consents and Class Q approvals for a total of 11 units being offered in this sale (13 units in the wider scheme; two retained by the seller). The buildings provide more than 1,200 sqm Gross Internal Area, offering scope for high-quality conversions that capitalise on elevated, far-reaching rural views.
Practical advantages include three-phase electricity on site, a roof-mounted solar installation (roof panels excluded from the sale), and mains water to the site (purchaser required to install a new connection). Several planning approvals and partial demolition consents are in place; some demolition has already been completed. The purchaser will need to progress outstanding statutory requirements such as a variation to the drainage and an amended access for Barn 4, and should allow budget and time for these consents to be implemented.
This is a development-led opportunity suited to a professional developer or investor experienced with barn conversions and rural access issues. The purchaser will be responsible for the construction cost of Access 1, contributions to ongoing access maintenance, and fitting-out works across varied stone and metal-framed barns. Broadband and mobile coverage may be variable on site; buyers should verify service availability for specific units. The setting — hamlet/isolated dwelling classification with low crime and affluent surroundings — strengthens long-term saleability or holiday-let potential once conversions are completed.
Material considerations: two units are excluded from the sale, part-demolition consent is already granted, and some buildings and yards are unrenovated and will require repair or modernization. Interested parties should review the detailed planning documents and approved drainage strategy, and allow for costs associated with access construction, services connections, and conversion works.
Plot for sale in Parkhall Lane, Spinkhill, Sheffield, S21 — £895,000 • 1 bed • 1 bath • 13498 ft²
Plot for sale in Plot 3 Mount View Farm, Parkhall Lane, Spinkhill, Sheffield, S21 — £450,000 • 1 bed • 1 bath • 4349 ft²
Plot for sale in Plot 2 Mount View Farm, Parkhall Lane, Spinkhill, Sheffield, S21 — £400,000 • 1 bed • 1 bath • 3100 ft²
Plot for sale in Plot 2 Plumbley Hall Farm, Plumbley Lane, Mosborough, Sheffield, S20 — £275,000 • 1 bed • 1 bath • 1550 ft²
3 bedroom farm house for sale in Within House Farm, Bradwell, S33 — £900,000 • 3 bed • 2 bath • 1282 ft²
4 bedroom detached house for sale in Heather Cottage, Hollow Meadows, Sheffield, S6 — £1,100,000 • 4 bed • 4 bath • 3000 ft²










































































