Vacant property with garage and three-bed conversion potential for investors or renovators.
- Guide price £30,000; sold at public auction
A vacant freehold detached house offered at auction with a very low guide price, presented for buyers prepared to refurbish. The property sits close to the pavement and includes a rear detached garage, small garden and usable loft room. Services include mains gas central heating and double glazing fitted before 2002.
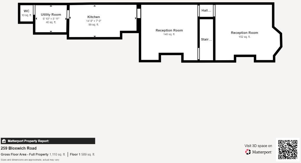
Layout provides two reception rooms, kitchen, utility and ground-floor WC, with two first-floor bedrooms and bathroom. There is clear potential to reconfigure the accommodation — relocating the bathroom to the ground floor could create a three-bedroom layout — making this suitable for investors or buyers wanting to add value.
Significant modernization and repairs are required: external wear, dated finishes, and solid brick walls likely lacking insulation will require investment. Energy Performance is rated E. The property sits in a very deprived area with a high local crime rate; these factors will affect rental demand, resale value and financing options.
The sale is by public auction with vacant possession. Bidders should read the legal pack carefully — additional costs apply including an administration fee payable on completion — and allow for repair, insulation and possible security enhancements when budgeting. Viewings are set on specific dates prior to auction.
3 bedroom terraced house for sale in 57 Holden Crescent, Walsall, WS3 1QQ, WS3 — £110,000 • 3 bed • 1 bath • 804 ft²
5 bedroom semi-detached house for sale in 8 Dawson Street, Walsall, WS3 1LN, WS3 — £85,000 • 5 bed • 1 bath • 1598 ft²
3 bedroom terraced house for sale in 9 Rowland Gardens, Walsall, West Midlands, WS2 8UL, WS2 — £33,000 • 3 bed • 1 bath • 851 ft²
3 bedroom semi-detached house for sale in 1 Blakenall Row, Walsall, WS3 1LW, WS3 — £85,000 • 3 bed • 1 bath • 823 ft²
3 bedroom detached house for sale in 116 Walker Road, Walsall, WS3 1BZ, WS3 — £69,000 • 3 bed • 1 bath • 862 ft²
3 bedroom terraced house for sale in 357 Harden Road, Walsall, West Midlands, WS3 1RR, WS3 — £95,000 • 3 bed • 1 bath • 808 ft²














































































