Freehold mixed-use building with strong immediate yield for active investors.
Produces £101,000 per annum rental income
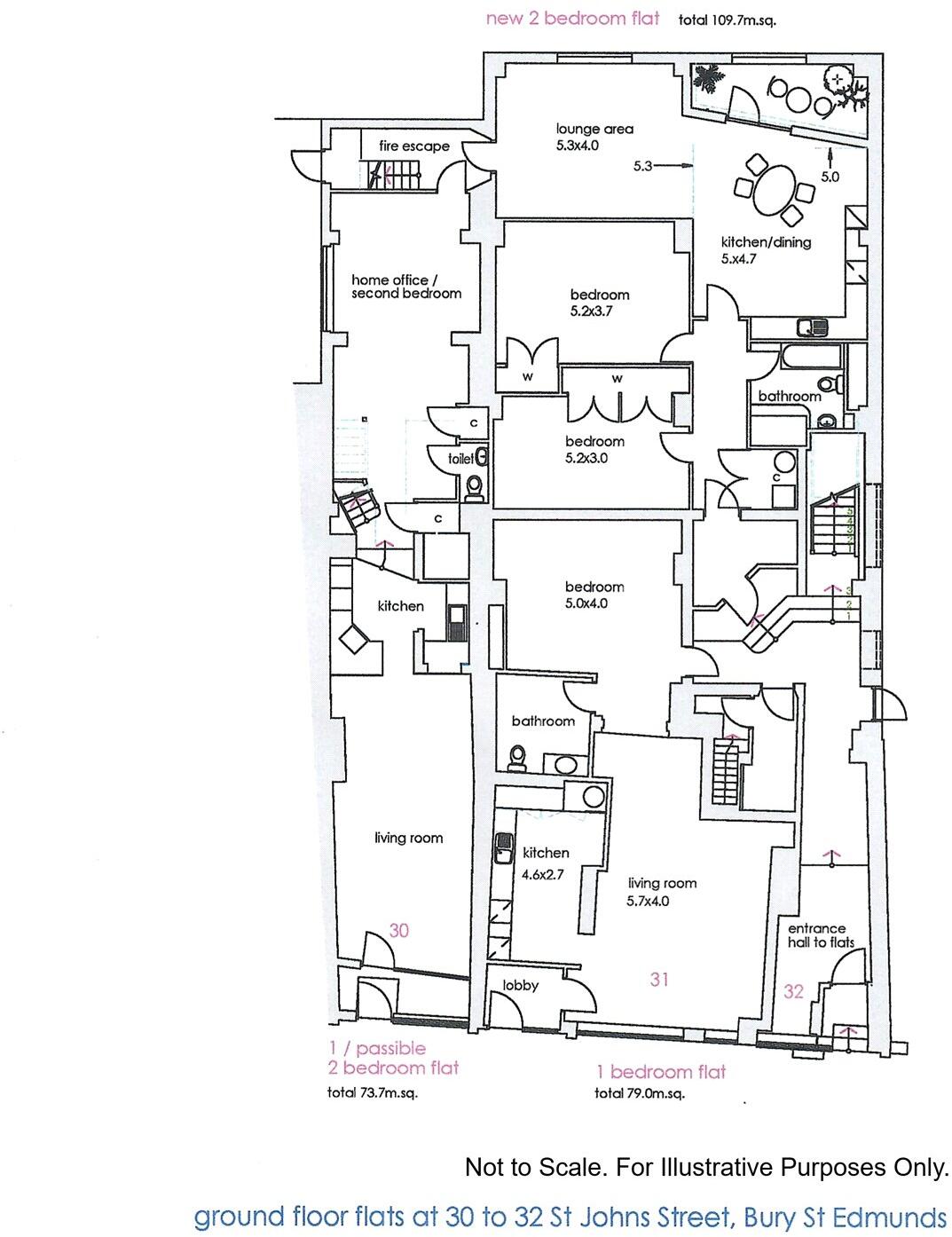
A substantial mixed-use investment on St Johns Street, offered freehold with immediate income. The property produces £101,000 pa, reflecting a gross yield of 8.08% at the guide price, and comprises eight let flats plus a ground/part-first floor commercial unit. This is a hands-on asset for an investor seeking central town income and refurbishment upside.
The building presents genuine value drivers: town-centre location a few minutes' walk from Bury St Edmunds’ main shopping area, good road and rail links, a conservation-area 1920s facade and existing tenancy roll (ASTs) with no voids. The commercial unit is let on an internal repairing and insuring lease from January 2025 at £12,000 pa, outside the Landlord & Tenant Act 1954.
Buyers should note material considerations: parts of the property date from the 1970s and rooftop images show decay suggesting roof and potential structural works. The area records above-average crime and wider indicators of deprivation, which may affect management costs and tenant turnover. Internal viewing of flats is not possible; all flats are occupied and served with Section 21 notices.
Practical matters: gas is only connected to one unit, EPCs and business rates are available or under assessment, and the sale is not subject to VAT. This is suited to an investor or landlord prepared to manage refurbishment, compliance and active lettings to protect and enhance rental value.
Studio apartment for sale in St. Johns Street, Bury St. Edmunds, Suffolk, IP33 — £1,250,000 • 1 bed • 1 bath • 2955 ft²
High street retail property for sale in 103 Risbygate Street, Bury St. Edmunds, IP33 3AA, IP33 — £395,000 • 1 bed • 1 bath • 3396 ft²
Commercial property for sale in 46 Abbeygate Street, Bury St Edmunds, Suffolk, IP33 1LB, IP33 — £425,000 • 1 bed • 1 bath • 1676 ft²
High street retail property for sale in 22-24 Churchgate Street, Bury St. Edmunds, IP33 1RG, IP33 — £425,000 • 1 bed • 1 bath • 1894 ft²
4 bedroom mixed use property for sale in Market Hill, Sudbury, Suffolk, CO10 — £750,000 • 4 bed • 1 bath • 3692 ft²
1 bedroom flat for sale in St. Johns Street, Bury St. Edmunds, IP33 — £140,000 • 1 bed • 1 bath • 313 ft²


















