Period building with strong income and scope for value-adding refurbishment.
Freehold mixed-use building: eight flats plus one commercial unit
Current gross rental income £101,000 per annum (8.08% yield)
Located in town centre conservation area, short walk to shopping and station
Built 1920s with 1970s additions; parts require modernisation and roof repair
All flats let on ASTs; no voids and internal viewings not possible
Commercial unit let on an internal repairing and insuring lease from 2025
Higher area deprivation and above-average local crime — tenancy risk factor
Rear fire exit crosses neighbouring pub car park; practical access note
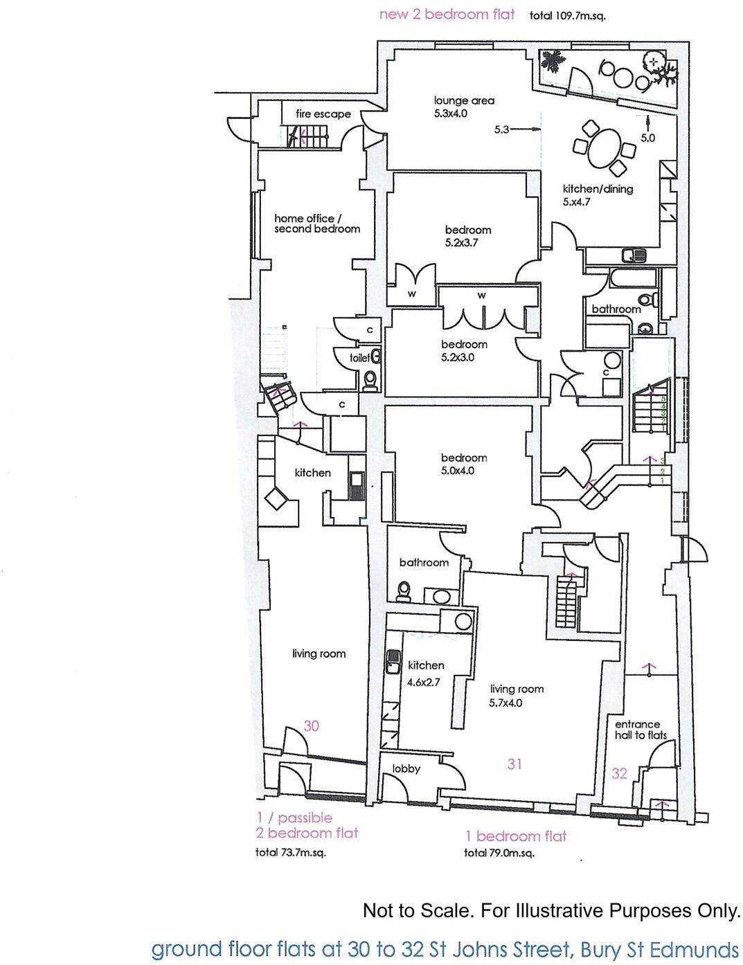
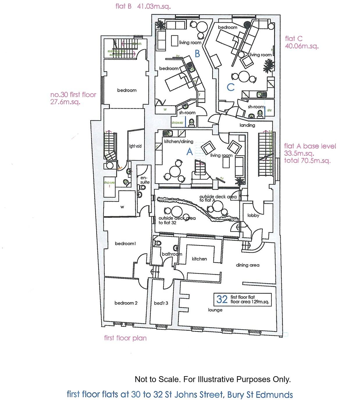
An unusually large, freehold mixed-use building in central Bury St Edmunds, this property comprises eight flats and a ground-floor business unit currently producing £101,000 pa in rent. The headline gross yield of 8.08% reflects strong income for a town-centre asset; the site sits close to the main shopping area and offers straightforward access to the A14 and the local rail link to London.
Built originally in the 1920s with later 1970s additions, the building retains a period frontage within a conservation area while other parts have dated fabric and an older roof. Several flats are tenanted on assured shorthold tenancies (no voids reported) and the commercial unit is let on an internal repairing and insuring lease from January 2025. Internal viewings are not possible as the flats are occupied.
There is clear upside from active asset management: selective refurbishment, repair to ageing fabric, and professionalised estate management could increase rents and capital value. However, the property also needs honest attention — parts require modernisation and roof/repair work, and conservation-fronted elements may restrict permitted alterations.
Investor considerations include a mixed tenant profile (including service personnel), above-average local crime and higher area deprivation which can affect tenant stability and demand. Practical points: the sale is freehold, not VATable, there is a rear fire exit over a neighbouring car park, and EPCs and full tenancy/leasing details are available on request.
Commercial property for sale in 46 Abbeygate Street, Bury St Edmunds, Suffolk, IP33 1LB, IP33 — £425,000 • 1 bed • 1 bath • 1676 ft²
4 bedroom mixed use property for sale in Market Hill, Sudbury, Suffolk, CO10 — £750,000 • 4 bed • 1 bath • 3692 ft²
High street retail property for sale in 22-24 Churchgate Street, Bury St. Edmunds, IP33 1RG, IP33 — £425,000 • 1 bed • 1 bath • 1894 ft²
1 bedroom flat for sale in St. Johns Street, Bury St. Edmunds, IP33 — £140,000 • 1 bed • 1 bath • 313 ft²
High street retail property for sale in 38 Market Hill, Sudbury CO10 2EN, CO10 — £750,000 • 1 bed • 1 bath • 3692 ft²
4 bedroom mixed use property for sale in Norwich Road, Ipswich, IP1 — £220,000 • 4 bed • 2 bath






















