G12 0HA - 2 bedroom flat for sale in Kelvindale Court, Kelvindale, G12

View on Property Piper

2 bedroom flat for sale in Kelvindale Court, Kelvindale, G12

Summary - FLAT 3/2, 4, KELVINDALE COURT G12 0HA

2 bed 2 bath Flat

**Standout Features:**
- Spacious 2-bedroom, 2-bathroom flat in the tranquil Kelvindale Court development
- Modern open-plan living and dining area with dual French balconies
- Secure entry, lift access, and off-street parking
- Beautiful communal gardens and scenic riverside paths nearby
- Convenient access to local amenities, parks, and transport links

Nestled within a peaceful cul-de-sac in the highly desirable Kelvindale area, this spacious two-bedroom flat offers a unique blend of modern comfort and serene living. The expansive open-plan lounge and kitchen, illuminated by natural light from south-facing windows, serves as the heart of the home, making it perfect for both relaxation and entertaining. Step outside onto one of the two charming Paris balconies for a breath of fresh air while enjoying leafy green views. The principal bedroom features fitted wardrobes and a contemporary en-suite, while the second bedroom also provides generous space and storage.

Alongside its stylish interior, this flat presents excellent renovation potential, with a large internal cupboard that could easily be transformed into a home office or study. With gas central heating, double glazing, and a secure entry system, the property is in good condition, though some general maintenance may be considered in the future.

Situated in the vibrant West End of Glasgow, the Kelvindale area boasts a strong sense of community with nearby amenities including grocery shops, a pharmacy, and a post office, all just a short walk away. The closeness to respected schools and lush green spaces like the Botanic Gardens and Kelvin Walkway makes this property ideal for families, professionals, or those looking to downsize. Don't miss out on this opportunity for comfortable urban living in a desirable location; properties like this are in high demand! EER band C.

Property Details

Image Descriptions

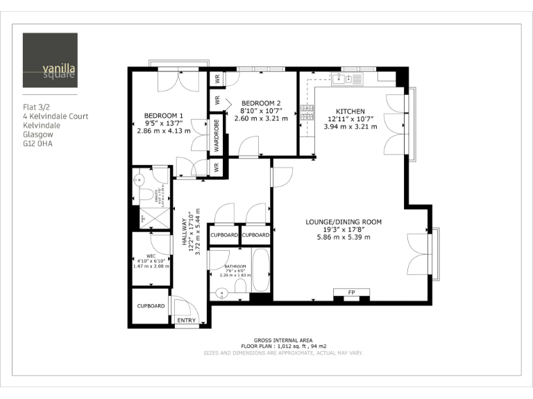
Floorplan Description

Rooms

Textual Property Features

Detected Visual Features

Nearest Bars And Restaurants

,,,,}

Nearest General Shops

,,}

Nearest Grocery shops

,,}

Nearest Supermarkets

,,}

Nearest Religious buildings

,,}

Nearest Medical buildings

,,,}

Nearest Airports

,}

Nearest Leisure Facilities

,,,,}

Nearest Tourist attractions

,,}

Nearest Train stations

,,,,}

Nearest Bus stations and stops

,,,,}

Nearest Hotels

,,}

Tags

Local Market Stats

AirBnB Data

Similar Properties

Meta

High Res Images

Compatible Images

Low res Images

Thumbnails

Raw Images

High Res Floorplan Images

Compatible Floorplan Images

Low res Floorplan Images

FloorplanImages Thumbnail

Raw Floorplan Images