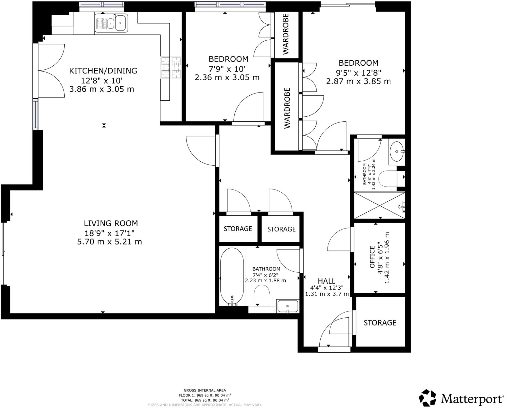
**Standout Features:**
- Spacious 2-bedroom ground floor flat with private garden
- Modern open-plan living/dining/kitchen area with natural light
- Located near essential amenities and vibrant local culture
- Allocated off-street parking and excellent transport links
- Newly renovated bathrooms including an en-suite
**Concise Summary:**
Discover your oasis in this modern, spacious two-bedroom ground floor flat tucked away in a leafy development. Its open-plan living area with French doors allows an abundance of natural light and seamless access to the private garden, perfect for relaxing or entertaining. This property boasts two generous double bedrooms with built-in storage—one featuring a contemporary en-suite with a walk-in shower—and a brand-new main bathroom with luxurious fixtures.
With easy access to essential amenities, trendy cafes, and cultural hotspots in nearby Hyndland and Byres Road, plus excellent transport links via Kelvindale train station and bus routes, this location is ideal for professionals, families, and downsizers. Enjoy the convenience of allocated off-street parking and communal gardens while being surrounded by parks, riverside walks, and esteemed schools. The fast broadband and excellent mobile signal further enhance the appeal for modern living. Don't miss the opportunity to make this vibrant property your own—schedule a viewing today!
2 bedroom flat for sale in Kelvindale Court, Kelvindale, G12 — £205,000 • 2 bed • 2 bath • 1012 ft²
2 bedroom apartment for sale in Innellan Gardens, Kelvindale, Glasgow, G20 — £139,000 • 2 bed • 1 bath • 580 ft²
2 bedroom flat for sale in 0/4 2 Kelvindale Court, Kelvindale, G12 — £180,000 • 2 bed • 2 bath • 878 ft²
2 bedroom flat for sale in 1/2 35 Kelvindale Gardens, Kelvindale, G20 — £130,000 • 2 bed • 1 bath • 708 ft²
2 bedroom flat for sale in 3/1 4 Innellan Place, Glasgow, G20 — £135,000 • 2 bed • 1 bath • 575 ft²
2 bedroom flat for sale in Novar Drive, Glasgow, G12 — £250,000 • 2 bed • 1 bath • 656 ft²






































































































