Freehold West End one-bed with balcony, parking and good transport links..
South-facing lounge with balcony and French doors
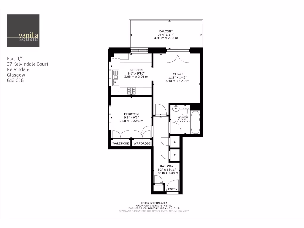
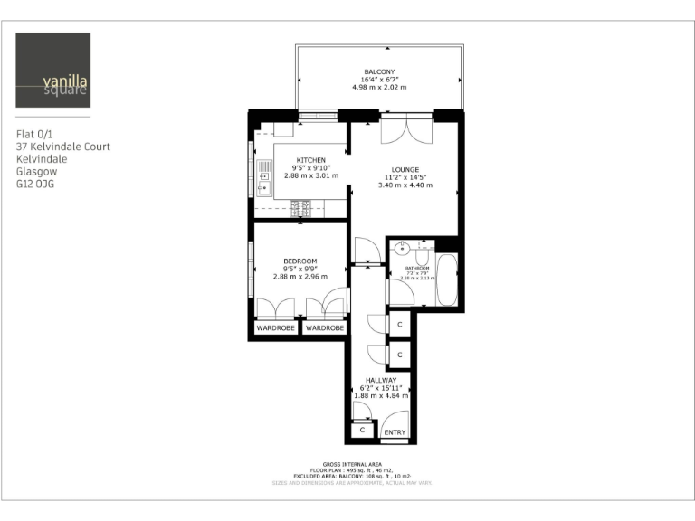
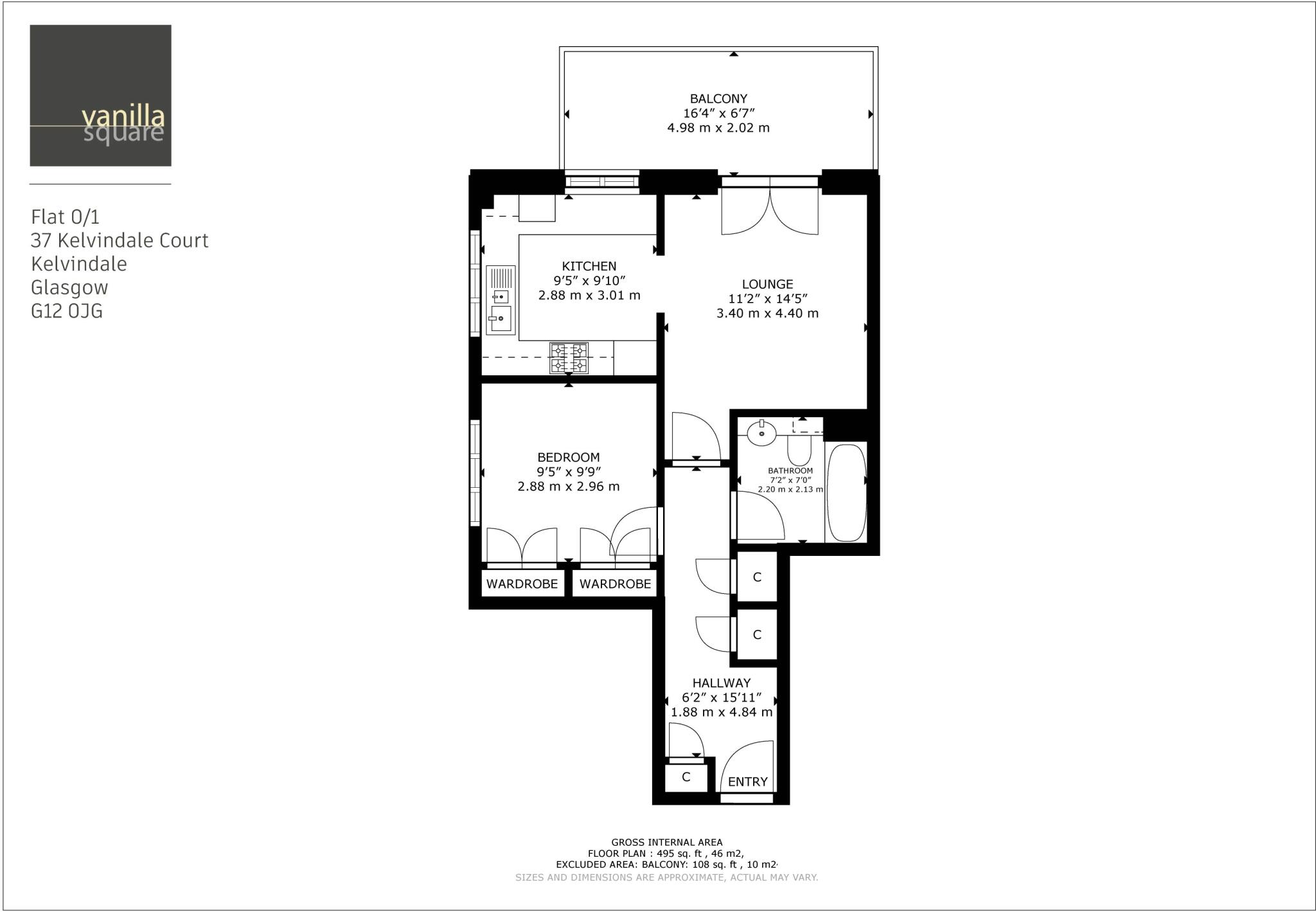
This freehold one-bedroom flat in Kelvindale Court offers compact, low-maintenance living in Glasgow’s West End. The south-facing lounge with French doors opens onto a private balcony, bringing natural light into the living space and extending usable room for relaxed mornings or evening drinks.
The layout is practical: an entrance hall with three storage cupboards, a fitted double bedroom, and a modern kitchen with integrated appliances and breakfast bar. Gas central heating, double glazing and a security-controlled entrance provide everyday comfort and security. The Energy Efficiency Rating is C, and broadband and mobile signals are strong.
Outside, the development provides allocated off-street parking, visitor spaces and maintained communal grounds. The property’s 495 sq ft footprint suits single buyers, couples or downsizers seeking a freehold flat with modest running costs. Note the local area is classified as very deprived, which may affect long-term resale values and local services.
This flat is a straightforward, well-appointed option for someone prioritising light, storage and a West End location over larger living areas. It will suit buyers wanting ready-to-live-in accommodation with modest upkeep rather than major renovation potential.
2 bedroom flat for sale in Kelvindale Gardens, Maryhill, Glasgow, G20 — £140,000 • 2 bed • 1 bath
1 bedroom apartment for sale in Prince Albert Road, Dowanhill, Glasgow, G12 — £155,000 • 1 bed • 1 bath • 474 ft²
2 bedroom flat for sale in Kelvindale Court, Kelvindale, G12 — £205,000 • 2 bed • 2 bath • 1012 ft²
1 bedroom flat for sale in North Woodside Road, Kelvinbridge, G20 — £140,000 • 1 bed • 1 bath • 494 ft²
1 bedroom apartment for sale in Oban Drive, North Kelvinside, Glasgow, G20 — £149,000 • 1 bed • 1 bath • 557 ft²
1 bedroom flat for sale in Harmsworth Street, Whiteinch, G11 — £140,000 • 1 bed • 1 bath • 624 ft²






















































































