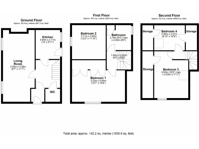
**Key Features:**
- 4 bedrooms, spacious layout
- Charming Grade II listed cottage
- Central village location in Sandford
- Open living space with wood-burning stove
- Newly installed oil-fired central heating (5-year guarantee)
- South-facing courtyard garden
- Close to local amenities, including shops and pubs
- No parking on property, but nearby unrestricted options available
- Potential maintenance access restrictions
Nestled in the picturesque village of Sandford, this delightful Grade II listed cottage offers a perfect blend of character and modern living. With four generously sized bedrooms spread across three floors, the property offers ample space for families or those seeking a peaceful retreat. The open living area is beautifully enhanced by a warming wood-burning stove, ideal for cozy evenings at home. The efficient kitchen, featuring stylish quartz countertops, seamlessly connects to a sunny, south-facing courtyard garden, perfect for enjoying outdoor meals during warmer months.
Lifestyle convenience thrives here, with a community shop, pubs, and recreational facilities just moments away, providing everything you need for village life. Though the property lacks dedicated parking, ample options can be found just around the corner. While the charming aesthetic holds immense appeal, potential buyers should note that the property may have restrictions for renovations or extensions due to its heritage status. With so much to offer in a sought-after location, this home promises a unique opportunity for those looking to embrace rural living with modern comforts. Don’t miss out on experiencing this community-centric lifestyle!
2 bedroom cottage for sale in Sandford, Crediton, EX17 — £240,000 • 2 bed • 1 bath • 1141 ft²
2 bedroom semi-detached house for sale in Sandford, Crediton, EX17 — £375,000 • 2 bed • 1 bath • 1023 ft²
2 bedroom end of terrace house for sale in Oxford Terrace, Sandford, Crediton, Devon, EX17 — £205,000 • 2 bed • 1 bath • 933 ft²
2 bedroom terraced house for sale in Oxford Terrace, Sandford, EX17 — £220,000 • 2 bed • 1 bath • 678 ft²
4 bedroom end of terrace house for sale in The Square, Sandford, EX17 — £499,000 • 4 bed • 2 bath • 1679 ft²
2 bedroom terraced house for sale in Sandford, Crediton, EX17 — £175,000 • 2 bed • 1 bath • 1028 ft²


















































































