**Standout Features:**
- Charming detached cottage in picturesque Sandford
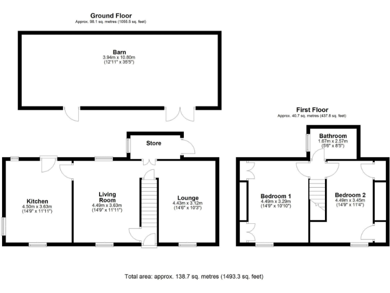
- 2 double bedrooms and 1 bathroom
- Spacious living and dining areas, with a separate kitchen
- Unconverted detached barn offers renovation potential
- Off-road parking for multiple vehicles
- Small gardens for easy maintenance
- No chain for a smooth transaction
**Notable Concerns:**
- Requires modernization throughout
- Kitchen extension is of single skin construction, potentially affecting mortgage options
- Planning permission required for barn conversion
This delightful detached cottage presents an exciting opportunity to create your dream home in the highly sought-after village of Sandford. With a spacious layout including two reception rooms and the potential to customize further, this property is perfect for both families and investors looking to add value. The cottage, built in 1850, retains historical charm, featuring classic slate roofing and a quaint fascia.
The local area is rich in community spirit, with amenities such as pubs, a primary school, and a community shop just a stone's throw away. Perfect for outdoor enthusiasts, scenic walks are at your doorstep, creating an idyllic rural lifestyle. While the cottage and its kitchen are in need of modernization, the additional unconverted barn opens a world of possibilities for expansion or conversion to suit your needs.
Seize this incredible chance to craft a unique home in a tranquil rural setting—properties like this don't last long!
2 bedroom semi-detached house for sale in Sandford, Crediton, EX17 — £375,000 • 2 bed • 1 bath • 1023 ft²
2 bedroom end of terrace house for sale in Oxford Terrace, Sandford, Crediton, Devon, EX17 — £205,000 • 2 bed • 1 bath • 933 ft²
4 bedroom cottage for sale in Sandford, Crediton, EX17 — £365,000 • 4 bed • 1 bath • 1530 ft²
2 bedroom terraced house for sale in Sandford, Crediton, EX17 — £175,000 • 2 bed • 1 bath • 1028 ft²
3 bedroom character property for sale in Hele Cottages, West Sandford, Crediton, EX17 — £475,000 • 3 bed • 2 bath • 980 ft²
3 bedroom cottage for sale in Back Lane, Sandford, EX17 — £260,000 • 3 bed • 1 bath • 978 ft²






























































