Large master bedroom with high ceilings and Georgian fireplace
Versatile ground-floor study that can be used as a third bedroom
Separate kitchen; white goods included
Small courtyard-style front garden, no rear garden
No on-site parking; street parking only
Adjoins village pub — lender checks advised for mortgages
Stone/brick walls likely uninsulated; EPC band E, may need upgrading
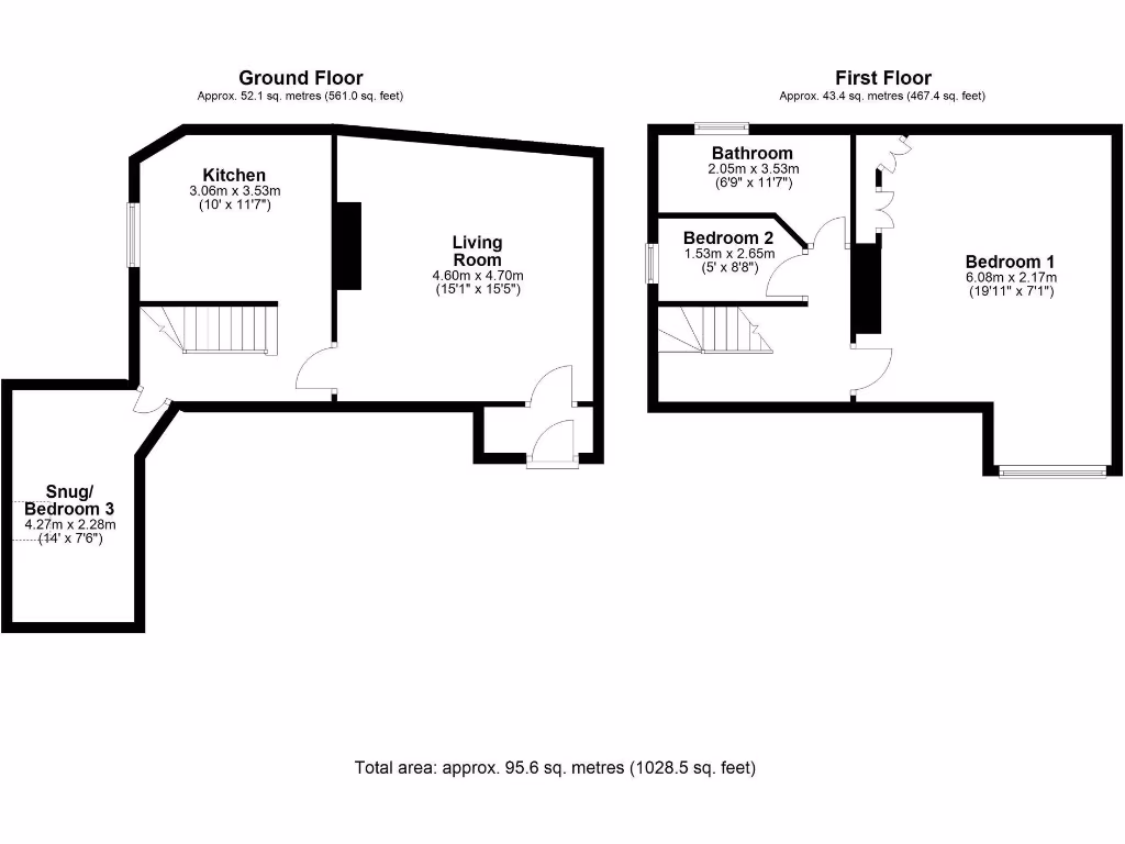
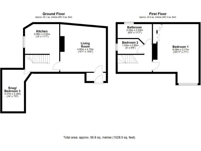
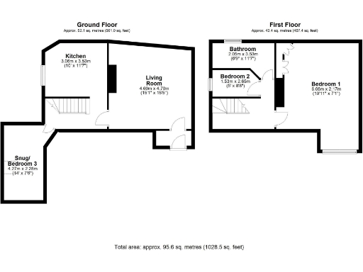
Tucked away in Sandford village, this 1850 terraced cottage combines period character with surprisingly generous room sizes. The large first-floor master bedroom, high ceilings and Georgian-style fireplace give the home an immediate sense of space and charm — ideal for a buyer seeking character in a rural setting.
Downstairs offers a good-sized living room, separate kitchen and a versatile ground-floor study that can serve as a third bedroom. A small, courtyard-style front garden provides a private spot for pots and seating; there is no rear garden. White goods are included, and the property is offered freehold.
Practical notes: heating is modern programmable electric with a woodburner (no gas available locally) and the stone/brick walls are assumed uninsulated. The property adjoins a pub and parking is on-street only; please check mortgage lender requirements if borrowing. The EPC is band E and some updating or insulating could improve running costs and comfort.
This cottage suits first-time buyers or buyers seeking a characterful village home close to local amenities, bus links and the Millennium footpath to Crediton. With fast broadband, low local crime and active community facilities, it’s a comfortable base with clear scope to modernise and add value.



















































































































































