SA62 5QL - 1 bed spacious pasture and woodland in Preseli Pembrokeshir…

View on Property Piper

Land for sale in near Haverfordwest Pembrokeshire, Haverfordwest, SA62

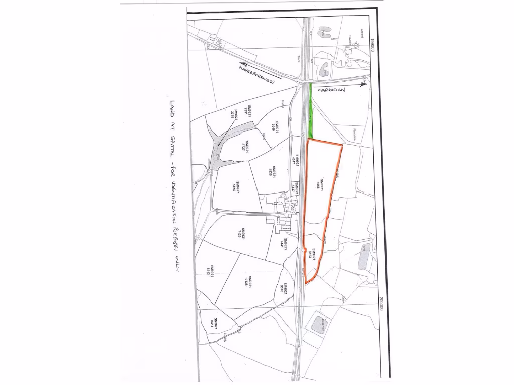
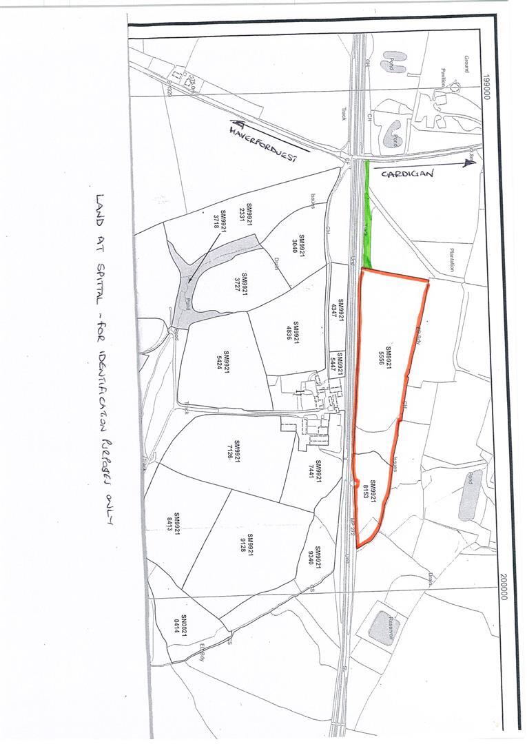
Summary - Land at Spittal SA62 5QL

1 bed 1 bath Land

Level productive fields with sheltered woods near Haverfordwest, ideal for grazing or conservation.
Huge parcel of level pasture and significant native woodland
A substantial block of pasture and woodland on the B4329, roughly 4–5 miles north of Haverfordwest, this parcel offers immediate practical use and long-term potential. The land is predominantly level, well fenced and divided into two fields, with mature hedgerows and a wooded strip that provides shelter, biodiversity value and scope for conservation or amenity planting.

Practical uses include grazing, cropping or equestrian use; the woodland and stream could support conservation, small-scale timber or recreational uses. Access is via a short green lane from the roadside field and the southern boundary runs alongside the railway, giving clear, definable limits to the plot.

There are no services connected to the land and purchasers should plan for off-grid arrangements. Access is subject to an existing right of way favouring the roadside field owner; prospective buyers should check rights and maintenance obligations. Broadband and mobile reception are variable in parts despite advertised ultrafast availability nearby—verify service provision if connectivity is essential.

Overall this is a rare, versatile parcel for someone seeking a large rural holding near Haverfordwest. It will suit buyers wanting productive pasture with woodland amenity, subject to standard checks on access, boundaries and environmental use.

Property Details

Brochure Descriptions

Image Descriptions

Floorplan Description

Textual Property Features

Target Audience

AI Tags

Detected Visual Features

Nearest Bars And Restaurants

,,,,}

Nearest General Shops

,,}

Nearest Grocery shops

,,}

Nearest Supermarkets

,,}

Nearest Religious buildings

,,}

Nearest Medical buildings

,,,}

Nearest Leisure Facilities

,,,,}

Nearest Tourist attractions

,,}

Nearest Train stations

,,,,}

Nearest Bus stations and stops

,,,,}

Nearest Hotels

,,}

Tags

Local Market Stats

AirBnB Data

Similar Properties

Meta

High Res Images

Compatible Images

Low res Images

Thumbnails

Raw Images

High Res Floorplan Images

Compatible Floorplan Images

Low res Floorplan Images

FloorplanImages Thumbnail

Raw Floorplan Images