0.16ha freehold plot with detailed permission for four detached houses, services to gate.
Full detailed planning permission for 4 detached houses (Ref.22/1846/FUL)
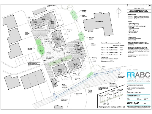
A fully permitted development plot on the edge of Seaton, offered with detailed planning permission for four detached homes (Ref. 22/1846/FUL). Mains water and electricity are brought to the site entrance and adopted surface and foul sewers run along the southern boundary ready for connection, reducing initial infrastructure lead-in. The gently sloping 0.16ha (0.40 acre) site sits at the end of a cul-de-sac with a semi-rural outlook toward Lyme Bay and the surrounding countryside.
The approved scheme comprises two 3-bedroom houses (c.98sqm each), a 4-bedroom (c.118sqm) and a larger 4-bedroom (c.174sqm), all with garages — suitable for family buyers or sales to the local market, including those seeking proximity to Colyton Grammar School. There is no S106 reported, which may streamline delivery, but purchasers must allow for the confirmed CIL liability of £91,319.86 and satisfy any remaining planning conditions or technical approvals.
This plot will appeal to small housebuilders or developer-investors seeking a relatively low-risk suburban/coastal site with immediate planning status and services at the boundary. Material considerations include the CIL cost, the need to confirm remaining statutory consents and connections with service providers, and integration with neighbouring properties at the cul-de-sac end. Buyers should undertake their own due diligence on services, costs and build programmes before committing.
Land for sale in Lympstone , EX8 — £600,000 • 4 bed • 1 bath
Plot for sale in DAWLISH, SECMATON FARM, c.14.2ha / 35.08 acres, SITE FOR 201 DWELLINGS - FOR SALE BY PRIVATE TREATY, EX7 — £11,000,000 • 1 bed • 1 bath
Plot for sale in SINGLE BUILDING PLOT, Sidmouth, Devon, EX10 — £325,000 • 1 bed • 1 bath • 1622 ft²
Land for sale in Treasbeare Lane, Clyst Honiton, Exeter, EX5 — £200,000 • 1 bed • 1 bath • 13068 ft²
Plot for sale in BUILDING PLOT, Marles Close, Awliscombe, EX14 — £175,000 • 1 bed • 1 bath • 1407 ft²
Land for sale in Treasbeare Lane, Clyst Honiton, Exeter, EX5 — £200,000 • 1 bed • 1 bath • 13068 ft²


















































































