**Standout Features:**
- Permission in Principle for two 4-bedroom detached dwellings
- Convenient location in the expanding Cranbrook, East Devon
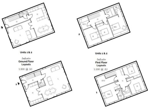
- Each unit offers 140sqm of living space with significant garden areas
- Ample parking with three spaces per dwelling
- No Section 106 or CIL contributions required
- Excellent access to major roads and Exeter International Airport
**Summary:**
Unlock the potential of this expansive development site located on the edge of the sought-after Cranbrook, just 6 miles from Exeter. With Permission in Principle granted for two contemporary detached four-bedroom homes, each boasting generous living spaces of approximately 140 sqm, this plot presents a unique and flexible opportunity for developers or homebuilders. The site includes a large garden for each dwelling, perfect for family gatherings or serene outdoor living, accompanied by three private parking spaces per home.
Nestled in a quiet, rural setting, residents will enjoy excellent local amenities, including schools with strong ratings, sports facilities, and easy access to public transport – making it ideal for families and commuters alike. Despite its peaceful location, you’ll appreciate the quick connectivity to the A30 and the allure of Exeter's vibrant city life. However, note that while the area boasts excellent mobile signal, broadband speeds are currently very slow.
This chain-free property affords you the chance to tap into a thriving community, making it a rare find in today's market. Explore the potential of this prime real estate opportunity and envision creating your dream homes in a growing neighborhood. Act now as opportunities like this are not available for long!
Land for sale in Treasbeare Lane, Clyst Honiton, Exeter, EX5 — £200,000 • 1 bed • 1 bath • 13068 ft²
Plot for sale in Exeter, Devon, EX5 — £850,000 • 1 bed • 1 bath • 2321 ft²
Land for sale in Lower Cheriton Barns, Honiton, EX14 — £535,000 • 1 bed • 1 bath • 2583 ft²
Plot for sale in SUPERB BUILDING PLOT IN c. 2 ACRES, Nr. Cullompton, Devon, EX15 — £550,000 • 1 bed • 1 bath • 3768 ft²
Land for sale in Road From Station Road To Coachfield House, Exeter, EX5 — £750,000 • 1 bed • 1 bath
Plot for sale in BUILDING PLOT, Marles Close, Awliscombe, EX14 — £175,000 • 1 bed • 1 bath • 1407 ft²














































