Two approved four-bedroom homes on a generous third-acre site near major transport links.
Full planning permission for two detached four-bedroom houses (granted 17 Aug 2022)
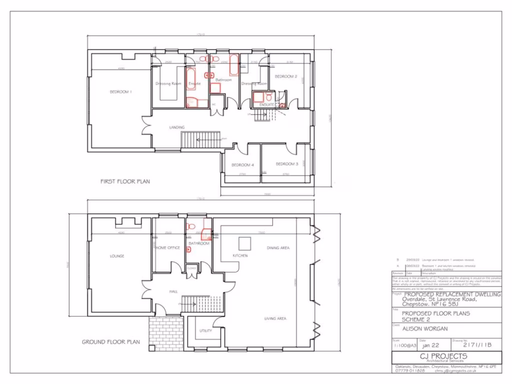
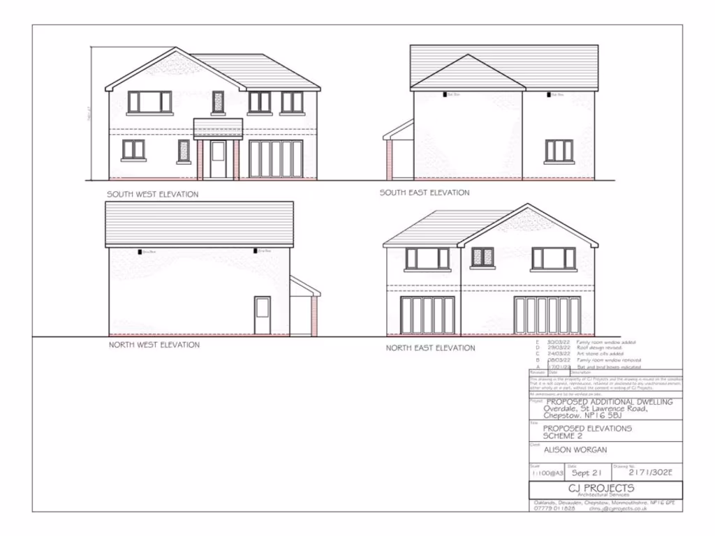
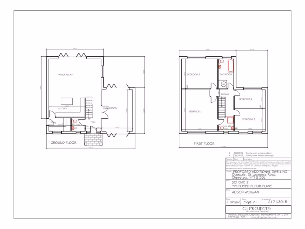
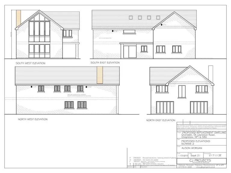
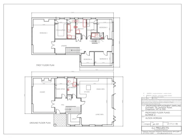
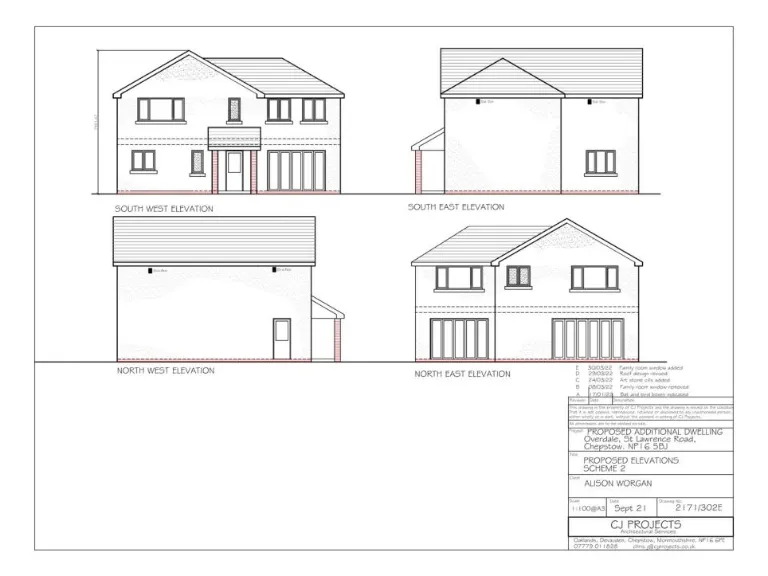
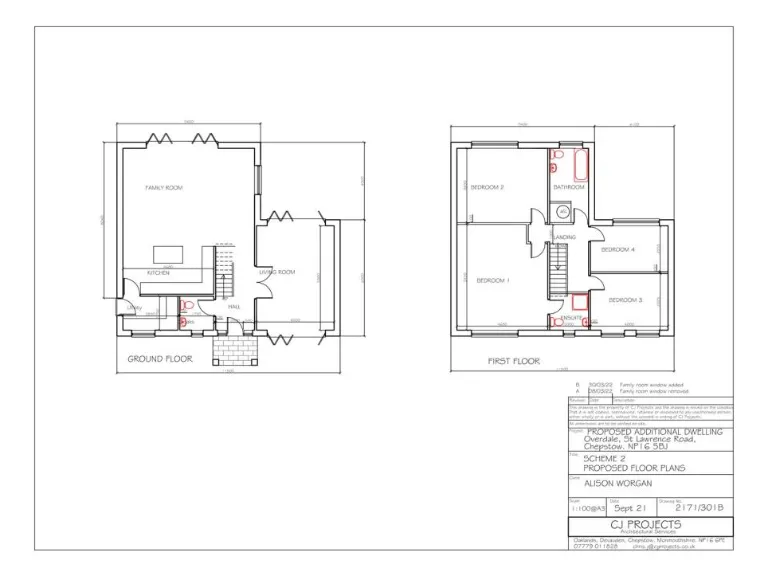
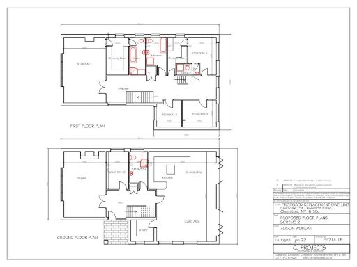
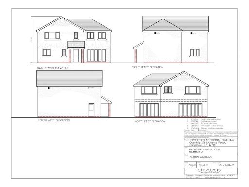
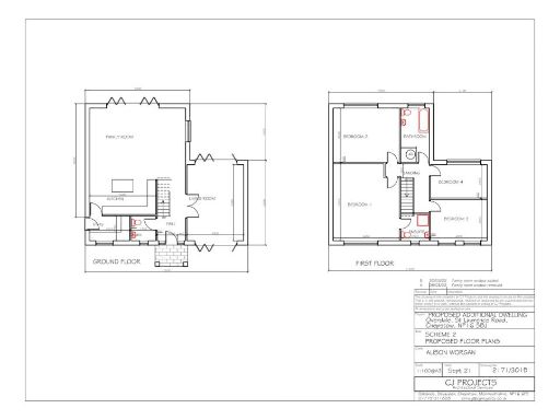
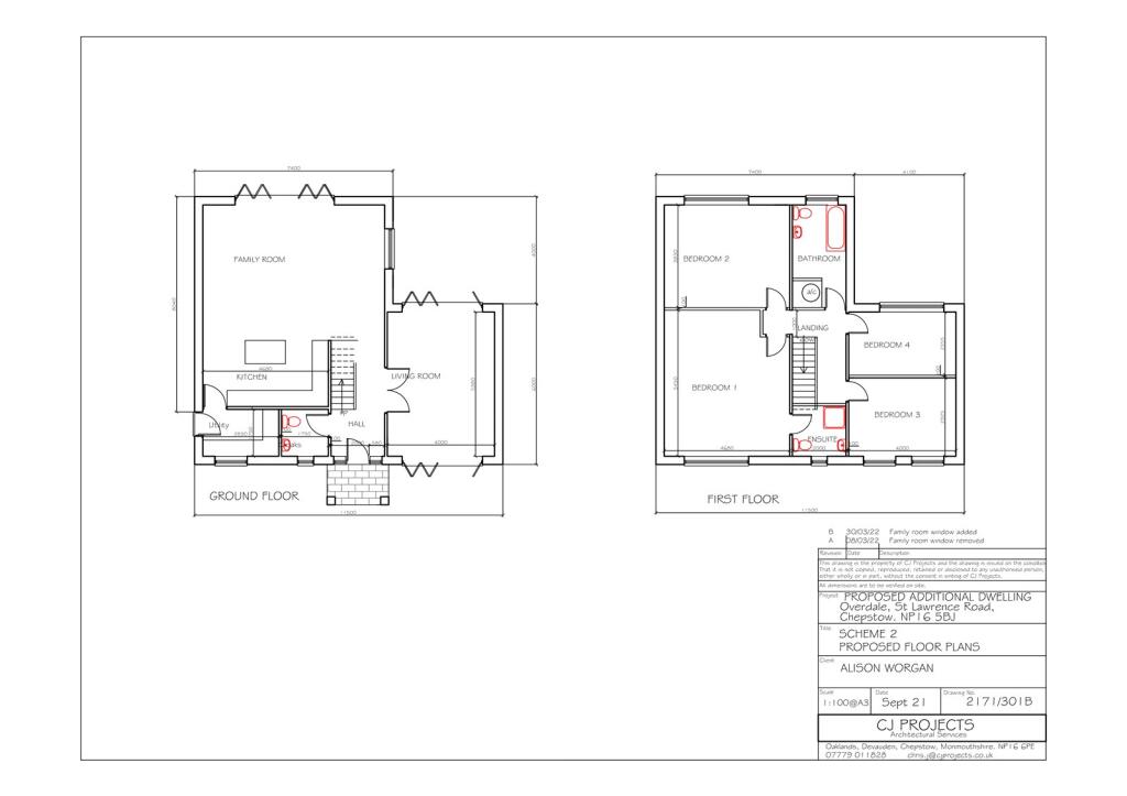
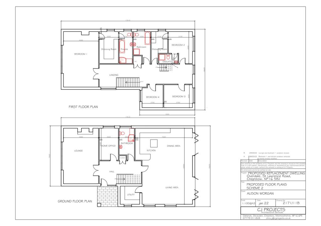
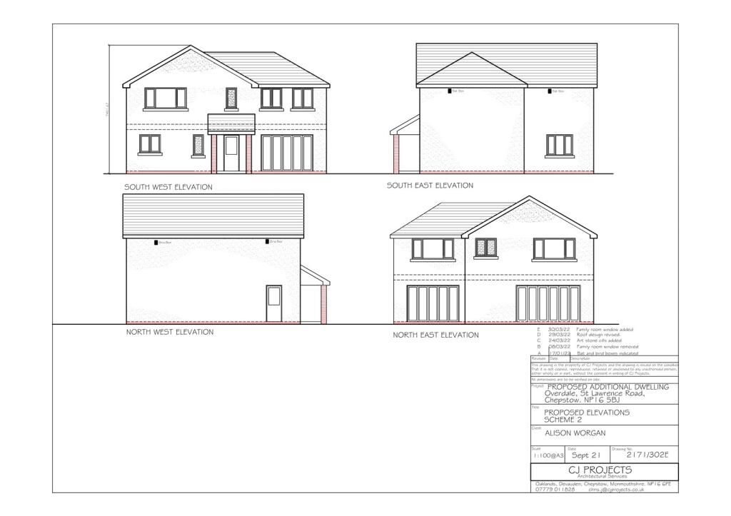
An uncommon town-edge opportunity with full planning consent for two four-bedroom detached houses granted 17 August 2022 (DM/2021/01693). The site extends to roughly one third of an acre, set back from St. Lawrence Road behind mature boundary planting and offering substantial front and rear gardens, private driveway parking and good separation from neighbouring properties.
This opportunity suits developers, self-builders or investors seeking a consented redevelopment with strong commuter links to the M4/M48 and nearby rail services. The consented scheme provides family-friendly accommodation layouts (master en-suite, open-plan kitchen/dining and private gardens) which should appeal to local resale demand in an affluent-edge location.
Buyers should note a few material points: the current sale is for the plot with planning permission rather than completed homes, so construction, party-wall and build-cost risks lie with the purchaser. Tenure details and internal floor areas are not provided. The immediate neighbourhood shows average crime levels and the wider area has indicators of high deprivation, which may affect long-term rental or resale profiles in places.
Overall the site offers a sizeable, well-located development opportunity with consent in place and private mature gardens. It is best suited to a buyer prepared to manage building works, confirm tenure and costs, and capitalise on the strong transport connections and family-orientated layouts.
Plot for sale in Hardwick Hill, Chepstow, NP16 — £250,000 • 5 bed • 3 bath • 2325 ft²
Plot for sale in Rockfield Road, Monmouth, NP25 — £160,000 • 2 bed • 1 bath
Semi-detached house for sale in Rockfield Road, Monmouth, NP25 — £160,000 • 1 bed • 1 bath
Plot for sale in Sedbury Lane, Tutshill, Chepstow, Gloucestershire, NP16 — £400,000 • 1 bed • 1 bath • 2200 ft²
4 bedroom detached house for sale in Bailey Bridge Drive, Chepstow, NP16 — £495,000 • 4 bed • 2 bath • 1356 ft²
4 bedroom detached house for sale in Bloomery Gardens, Chepstow, NP16 — £525,000 • 4 bed • 2 bath • 1466 ft²






























