Rare 1.85-acre elevated plot with planning consent for a bespoke 2,500 sqft Cotswold home.
Planning consent granted for ~2,500 sqft replacement dwelling (Ref: 25/00030/FUL)
Approximately 1.85 acres including private garden and adjoining paddock
Elevated south/west views across rolling Cotswolds, scenic and private
Mains electricity and water on site; buyers should verify services
Detached garage and separate vehicular access; scope for outbuildings
Existing bungalow to be demolished; build costs and project management required
Rural village location — limited local facilities, Bourton-on-the-Water ~3 miles
Council Tax currently band E; replacement dwelling likely higher
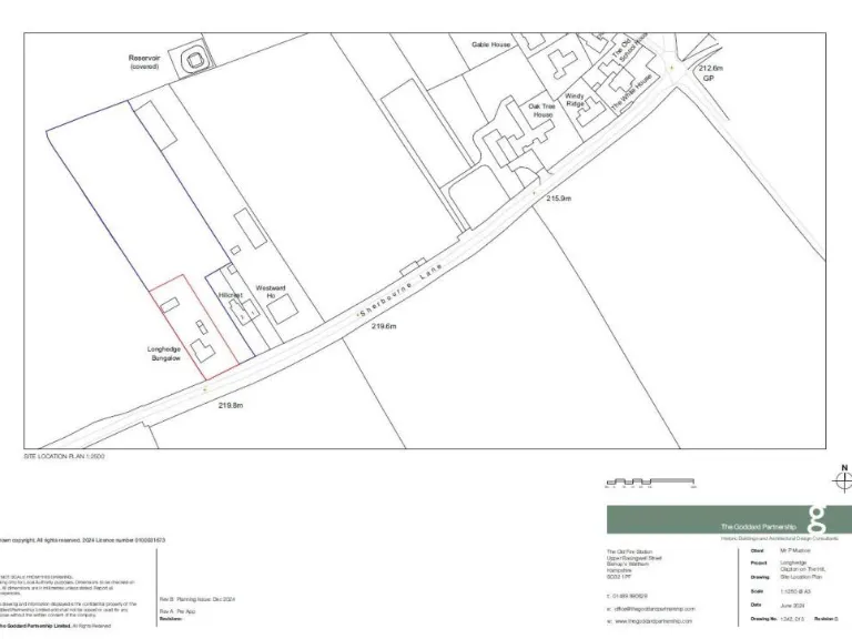
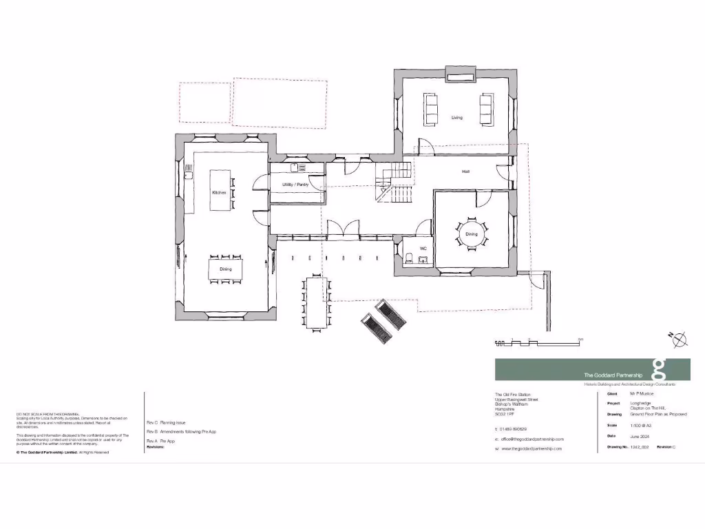
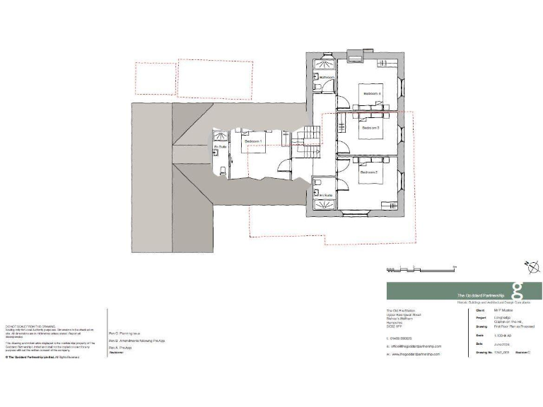
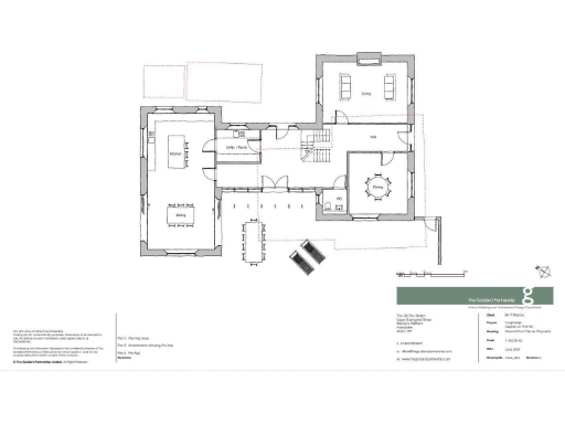
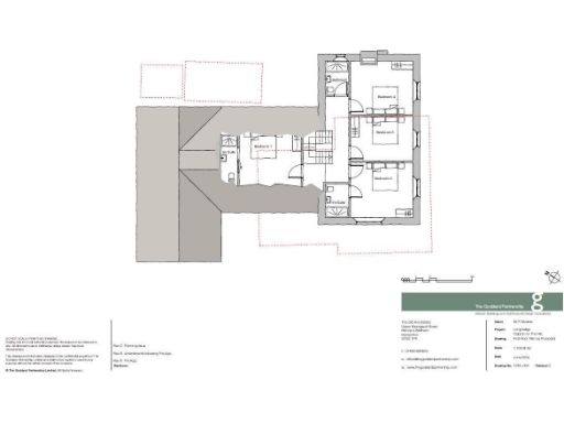
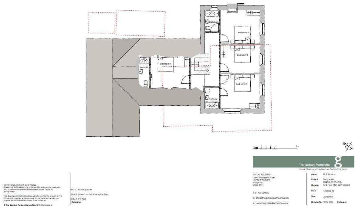
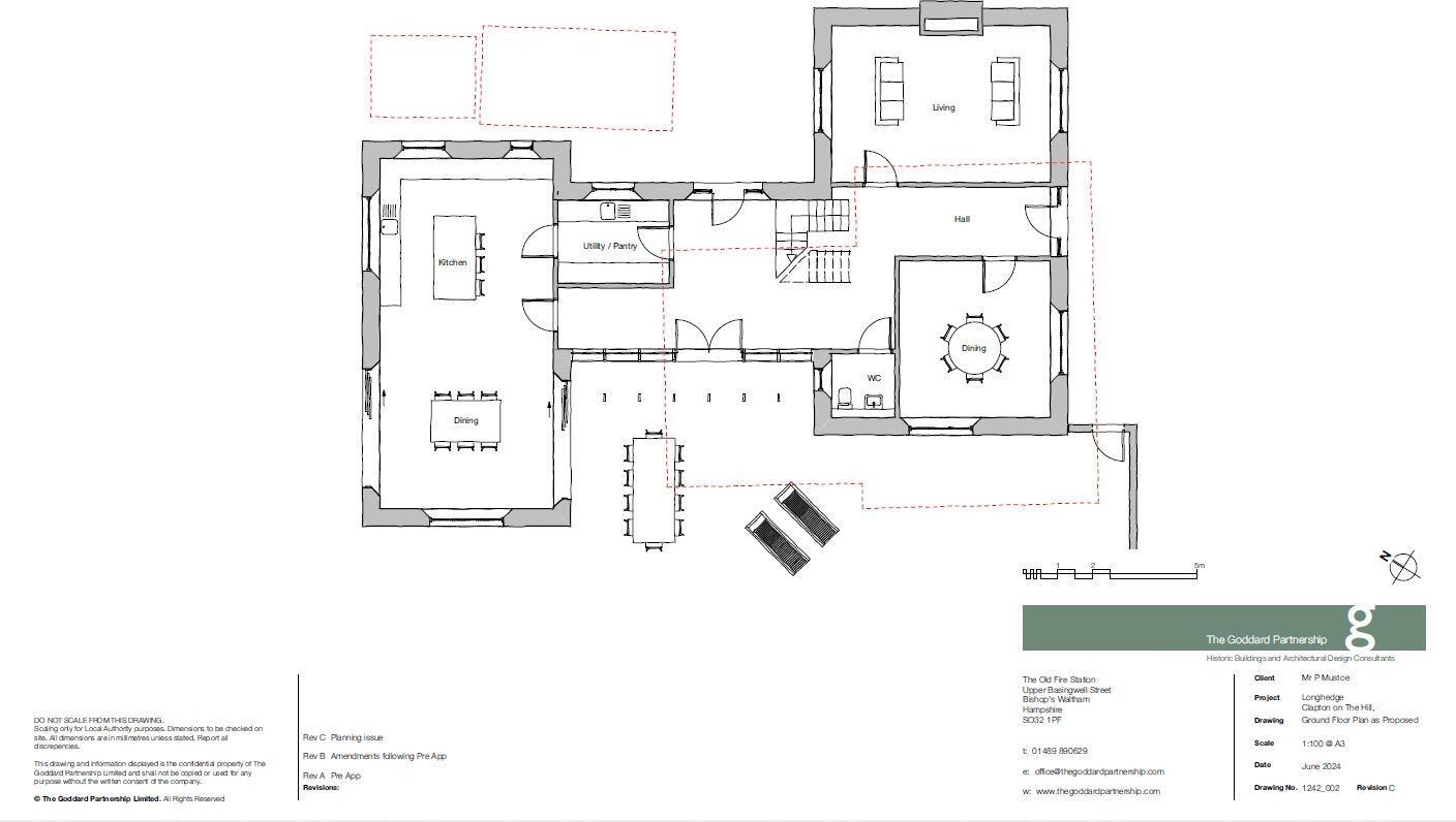
Set on an elevated edge-of-village site with far-reaching south and west views, this substantial plot at Longhedge offers a rare opportunity to create a bespoke Cotswold stone home. Full planning consent (Ref: 25/00030/FUL) was granted 28 March 2025 for demolition of the existing bungalow and erection of a part two-storey, part single-storey detached dwelling of approximately 2,500 sqft. The approved design provides open-plan family living plus principal and guest suites — a strong starting point for a family home or a high-quality replacement build.
The site extends to roughly 1.85 acres, combining private gardens immediately around the house with an adjoining paddock of permanent pasture. There is separate vehicular access, a simple detached garage and scope on-site for ancillary buildings (garaging, car port, stabling or outbuildings) subject to further consents. Mains electricity and water are available; purchasers are advised to commission their own surveys and technical enquiries before contract.
This location suits buyers seeking rural privacy without being wholly remote: Clapton-on-the-Hill is a small Cotswold village with walking and bridleway access and nearby facilities in Bourton-on-the-Water (about 3 miles). Cheltenham is approximately 19 miles away and mainline rail services to London are accessible from Kingham (9.5 miles). There is no identified flood risk and local connectivity is strong, with excellent mobile signal and fast broadband.
Important practical points: the current bungalow will be demolished to implement the permission and substantial build costs should be budgeted. The existing property sits in Council Tax band E; the new dwelling will be reassessed and is likely to attract a higher banding. The site’s rural position means limited immediate village services — ideal for buyers prioritising privacy and landscape rather than convenience.
Overall, Longhedge is a substantial, high-potential plot for a buyer wanting to deliver a high-spec replacement Cotswold house with paddock land, scenic outlooks and room for ancillary development.
4 bedroom detached house for sale in Church Lane, Little Rissington, Bourton On The Water, Cheltenham, Gloucester, GL54 — £995,000 • 4 bed • 4 bath • 3750 ft²
Land for sale in Shipton Oliffe, Cheltenham, GL54 — £650,000 • 5 bed • 5 bath • 2900 ft²
Plot for sale in Park Lane, Sevenhampton, Cheltenham, Cotswold, GL54 — £3,500,000 • 1 bed • 1 bath • 7750 ft²
Plot for sale in Bushcombe Lane, Woodmancote, Cheltenham, GL52 — £600,000 • 4 bed • 1 bath • 3000 ft²
Land for sale in Leckhampton Hill, Cheltenham, GL53 — £775,000 • 1 bed • 1 bath • 2905 ft²
Plot for sale in Westhall Hill, Fulbrook, Burford, OX18 — £1,000,000 • 5 bed • 5 bath • 1300 ft²














































































