**Standout Features:**
- No chain and FREEHOLD
- Partial sea views and short walking distance to the beach
- Spacious 1,050 sq ft layout with a sizeable balcony
- Open living room-diner with an extended office/crafts room
- Large kitchen with breakfast table and pantry
- Single garage included
- Two double bedrooms and a recently renovated bathroom
- Inviting private garden area
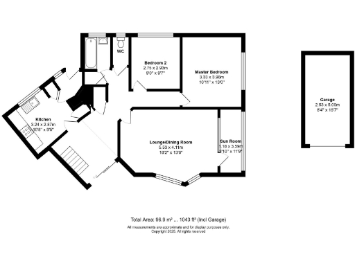
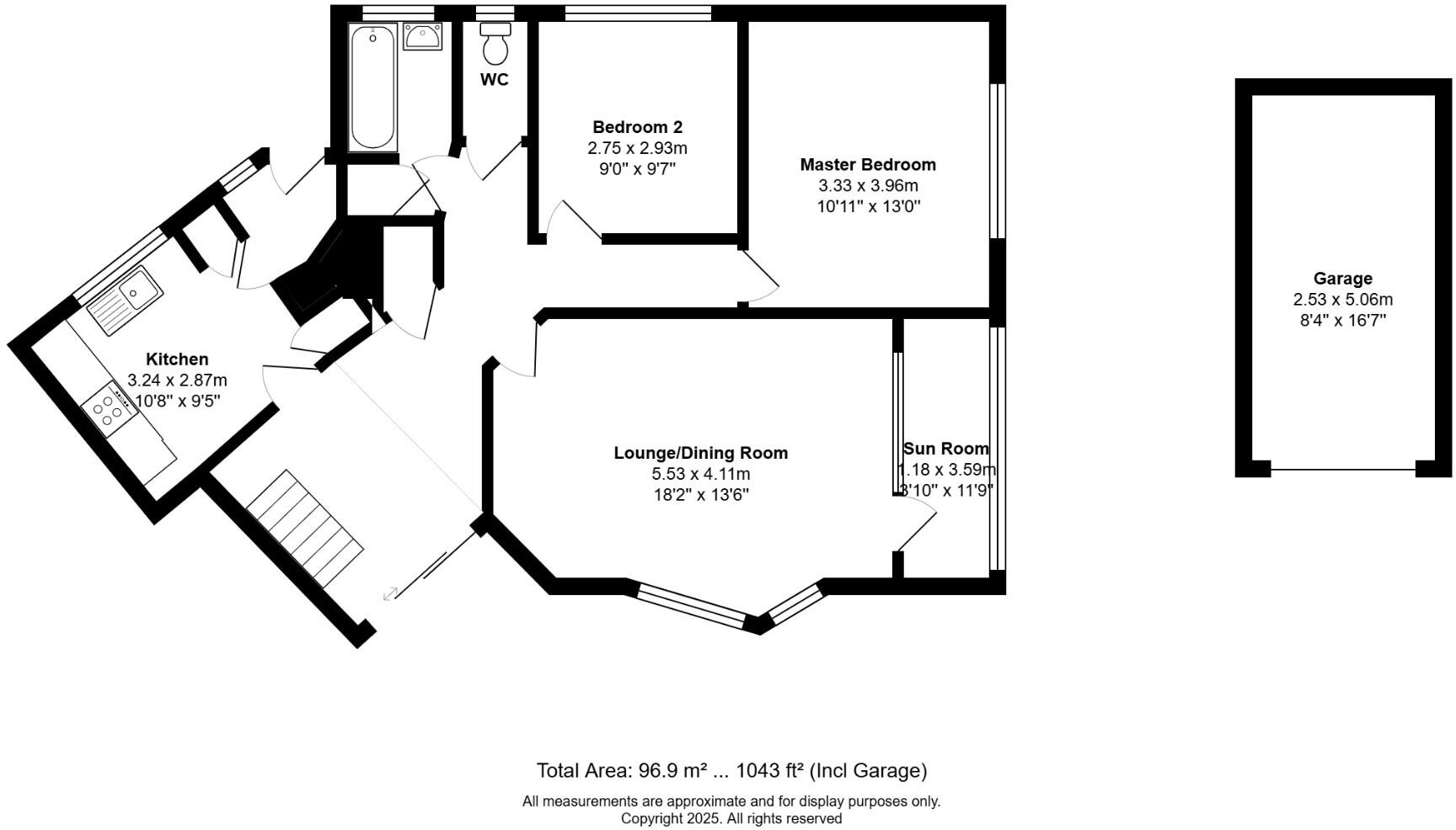
Discover your perfect seaside retreat in this beautifully renovated first-floor apartment, situated in the sought-after Goring area. With 1,050 sq ft of spacious living, you’ll enjoy partial sea views and a sizeable balcony that invites relaxation. The open-plan living room-diner is designed for comfort and versatility, enhanced by an extended office or crafts room, allowing for both productivity and leisure.
The modern kitchen is well-equipped for everyday needs, featuring a breakfast table and a pantry, while the two generous double bedrooms offer a peaceful sanctuary. A newly renovated bathroom and a welcoming entrance hallway elevate the home's appeal further. Outside, a private garden area and a single garage provide excellent additional features, perfect for beachgoers and families alike.
This property is not only a comfortable home but also a canvas ready for further personalization. With no chain and positioned just a short walk from the idyllic Sea Lane Cafe and local shops, it’s a perfect opportunity for first-time buyers, investors, or families looking to settle in an affluent community. Act quickly to experience this exceptional home—book your viewing today!
 2 bedroom flat for sale in Jupps Lane, Goring-by-Sea, Worthing, BN12 — £235,000 • 2 bed • 1 bath • 537 ft²
 2 bedroom flat for sale in Jupps Lane, Goring-by-Sea, Worthing, BN12 — £235,000 • 2 bed • 1 bath • 537 ft² 2 bedroom apartment for sale in Keymer House Nutley Avenue, Goring-by-Sea, Worthing, BN12 — £325,000 • 2 bed • 1 bath • 915 ft²
 2 bedroom apartment for sale in Keymer House Nutley Avenue, Goring-by-Sea, Worthing, BN12 — £325,000 • 2 bed • 1 bath • 915 ft² 2 bedroom apartment for sale in Alinora Crescent, Goring-By-Sea, Worthing, BN12 — £280,000 • 2 bed • 1 bath • 907 ft²
 2 bedroom apartment for sale in Alinora Crescent, Goring-By-Sea, Worthing, BN12 — £280,000 • 2 bed • 1 bath • 907 ft² 2 bedroom flat for sale in Drake House, 21, Eirene Road, Goring-by-Sea, Worthing, BN12 — £280,000 • 2 bed • 2 bath • 689 ft²
 2 bedroom flat for sale in Drake House, 21, Eirene Road, Goring-by-Sea, Worthing, BN12 — £280,000 • 2 bed • 2 bath • 689 ft² 2 bedroom flat for sale in Sea Place, Goring-by-Sea, Worthing, West Sussex, BN12 — £315,000 • 2 bed • 1 bath • 946 ft²
 2 bedroom flat for sale in Sea Place, Goring-by-Sea, Worthing, West Sussex, BN12 — £315,000 • 2 bed • 1 bath • 946 ft² 2 bedroom flat for sale in Alinora Avenue, Goring By Sea, Worthing, West Sussex, BN12 — £300,000 • 2 bed • 1 bath • 620 ft²
 2 bedroom flat for sale in Alinora Avenue, Goring By Sea, Worthing, West Sussex, BN12 — £300,000 • 2 bed • 1 bath • 620 ft²






















































































