**Standout Features:**
- FREEHOLD first-floor apartment
- Recently renovated with modern finishes
- Two spacious bedrooms, including a primary with bay window
- Bright lounge/dining area
- Brand new kitchen and bathroom
- Private entrance and large garden area
- Allocated parking and private garage
- Chain free, ready for swift move-in
- Ideal for first-time buyers or investors
**Property Summary:**
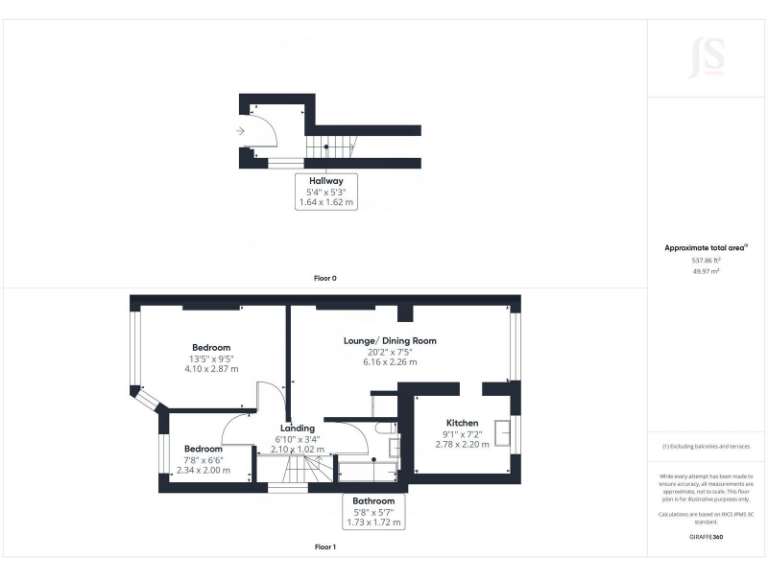
This beautifully renovated FREEHOLD first-floor apartment is now on the market, offering modern living in the sought-after Goring by Sea area. With two generously sized bedrooms and a bright, airy lounge/dining room that opens into a new kitchen, this property is perfect for both families and investors seeking rental potential. Enjoy the convenience of a private entrance, your own garage, and an allocated parking space—all complemented by a spacious garden for outdoor enjoyment.
Although compact at 537 square feet, the layout maximizes space with a practical flow among the interior rooms, and it currently boasts a comfortable modern aesthetic. The recent renovations include new double-glazing and gas-fired heating, ensuring energy efficiency and comfort.
This property is conveniently located just three-quarters of a mile from Goring Seafront and local shopping facilities, with excellent transport links just around the corner. Schools nearby boast good Ofsted ratings, making this an excellent option for families. Priced at £235,000 and with no onward chain, this opportunity will appeal to savvy buyers looking to establish themselves in a desirable neighborhood. Act quickly—you won't want to miss out!
2 bedroom flat for sale in Sea Place, Goring-by-Sea, Worthing, West Sussex, BN12 — £315,000 • 2 bed • 1 bath • 946 ft²
2 bedroom flat for sale in Alinora Avenue, Worthing, West Sussex, BN12 — £300,000 • 2 bed • 1 bath • 1050 ft²
2 bedroom ground floor flat for sale in Alinora Avenue, Goring-by-Sea, Worthing, BN12 — £275,000 • 2 bed • 1 bath • 581 ft²
2 bedroom flat for sale in Goring Road, Goring-By-Sea, Worthing, BN12 — £240,000 • 2 bed • 1 bath • 754 ft²
2 bedroom apartment for sale in Alinora Crescent, Goring-By-Sea, Worthing, BN12 — £280,000 • 2 bed • 1 bath • 907 ft²
2 bedroom flat for sale in Goring Road, Goring-By-Sea, Worthing, BN12 — £300,000 • 2 bed • 1 bath • 833 ft²


































































