**Standout Features:**
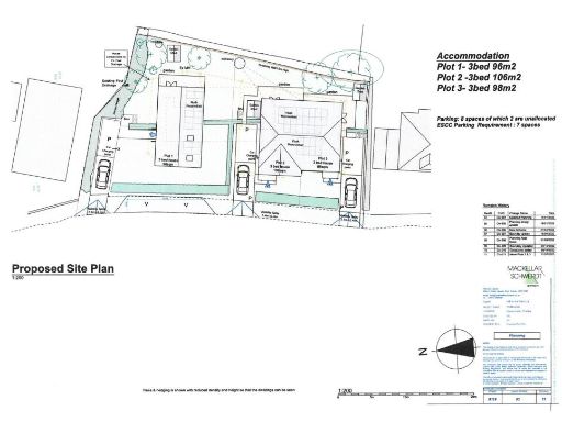
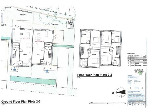
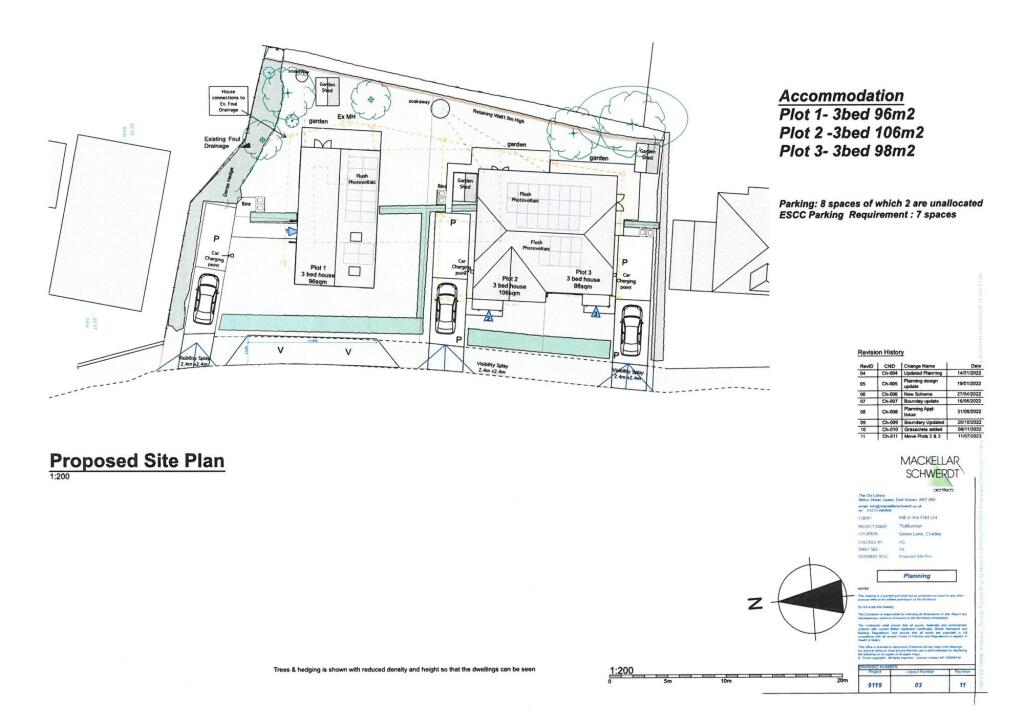
- Planning permission granted for the demolition and construction of three three-bedroom properties (one detached, two semi-detached).
- Spacious fifth of an acre plot, ideal for development.
- Located in the peaceful village of South Chailey with excellent amenities nearby.
- Easy access to transport links and main towns (Lewes, Haywards Heath, Burgess Hill).
- Low crime rate and a comfortable community atmosphere.
**Concerns:**
- Current property requires demolition and may have outdated systems.
- Planning requirements must be adhered to for new builds.
- Broadband speeds are noted as slow, which may affect connectivity.
**Summary Description:**
Discover a prime investment opportunity in South Chailey with a generous fifth of an acre plot that has secured planning permission for the construction of three modern three-bedroom homes—one detached and two semi-detached. This desirable locale combines rural charm with the convenience of nearby amenities, including shops, schools, and transportation links, making it perfect for families or investors looking to capitalize on rental income.
The existing single-story dwelling offers potential for redevelopment or renovation as part of your vision. Enjoy the tranquility of a low-crime area while being within a short distance of vibrant towns such as Lewes, ideal for shopping and commuting. With its spacious outdoor area surrounded by scenic countryside, your future development could provide a comfortable living environment that appeals to prospective buyers looking for modern living in a peaceful setting. Don’t miss out on this unique chance to create a new residential haven in a sought-after village—secure your future today!
Plot for sale in Green Lane, South Chailey, BN8 — £225,000 • 1 bed • 1 bath • 1011 ft²
2 bedroom bungalow for sale in Old Brickworks Lane, South Chailey, Lewes, East Sussex, BN8 — £475,000 • 2 bed • 1 bath • 988 ft²
Land for sale in Lewes Road, Laughton, Lewes, East Sussex, BN8 — £1,300,000 • 1 bed • 1 bath • 16185 ft²
Land for sale in Woodside Terrace Polegate Road, Hailsham, East Sussex, BN27 — £125,000 • 1 bed • 1 bath • 1864 ft²
Plot for sale in Blackstone Lane, Blackstone, BN5 — £450,000 • 1 bed • 1 bath • 1059 ft²
Land for sale in McBeans Nursery Site, Resting Oak Hill, BN8 — £2,250,000 • 1 bed • 1 bath










































