Small freehold infill with detailed consent close to station and town centre.
Full planning consent for two-bedroom detached house (ref 22/01224/FUL).|Guide price £130,000 for freehold 0.04 acre plot.|Site footprint consented for 770 sqft house with two parking spaces.|0.1 mile to Southminster station; rail links to London via Wickford.|Vacant, cleared site — requires full build contract and development costs.|Small infill plot not suitable for larger schemes; single dwelling only.|Adjoins residential terrace and small commercial/industrial units.|Council tax band unknown; boundaries and access to be confirmed.
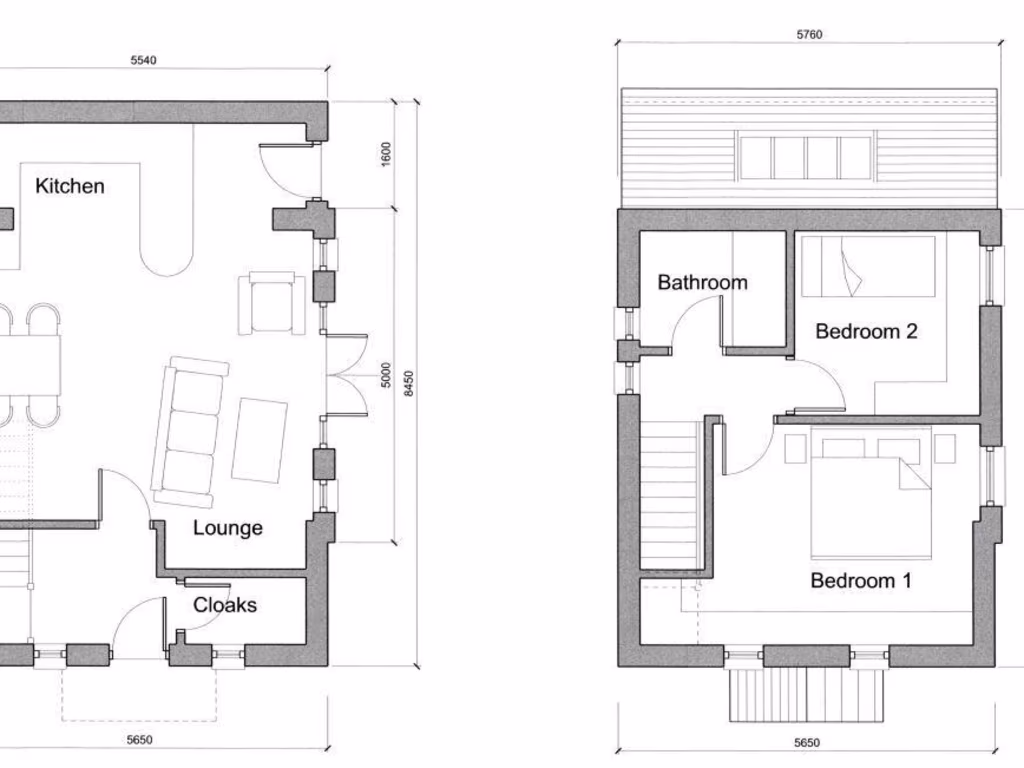
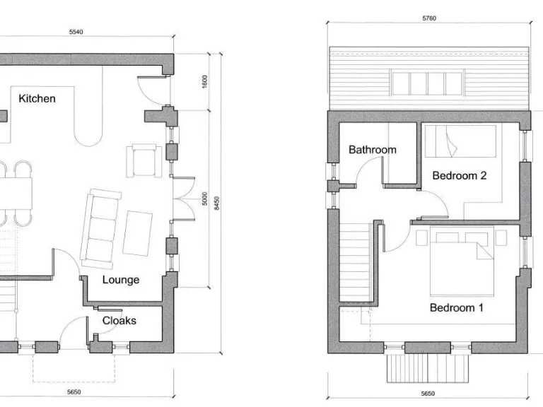
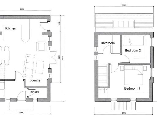
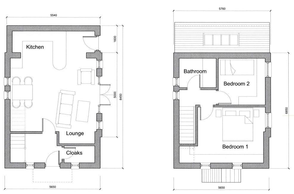
This vacant freehold parcel (0.04 acres STLS) comes with detailed full planning consent for a two-bedroom detached house (770 sqft) granted March 2023 (Maldon District Council ref: 22/01224/FUL). The consent includes two off-street parking spaces and associated amenity space — a ready route to build and either sell or let once constructed. The plot is offered at a guide price of £130,000.
The site sits in a pleasant residential pocket of Southminster, a short 2-minute walk (0.1 mile) from the station with rail services to London via Wickford. The town centre is also close by, with local shops, cafés and community amenities within 0.2 mile. There are good local schools with Ofsted ‘Good’ ratings and fast broadband and excellent mobile signal on site.
Buyers should note the plot is small and intended for a single dwelling; boundaries and access are typical of an infill plot and the site abuts residential terraces and small commercial/industrial units. Existing structures have been demolished, so the site requires a full build contract and associated costs. Council tax banding is not provided. This is best suited to a developer, investor or self-builder who wants a consented, quick-start infill project in a connected Essex town.
Plot for sale in Coombe Road, Southminster, CM0 — £175,000 • 3 bed • 2 bath • 1500 ft²
Plot for sale in Seamer Road, Southminster, CM0 — £375,000 • 4 bed • 3 bath • 2400 ft²
Plot for sale in Kings Road, Southminster, CM0 — £1,375,000 • 1 bed • 1 bath • 872 ft²
Plot for sale in DEVELOPMENT SITE Steeple, Southminster, CM0 — £800,000 • 1 bed • 1 bath • 10225 ft²
Property for sale in Land Rear Of 71-73 Walsingham Road, Southend-on-Sea, Essex, SS2 — £150,000 • 1 bed • 1 bath
3 bedroom semi-detached house for sale in Eastwoodbury Lane, Southend-on-Sea, SS2 — £1,210,000 • 3 bed • 1 bath • 894 ft²






























