**Standout Features:**
- 0.95-acre development site with approved planning for 9 homes (Ref: 23/00338/FUL).
- Prime location in the center of Southminster, close to amenities and the railway station.
- No demolition required; the site is clear and ready for development.
- Anticipated Gross Development Value (GDV) of £4,000,000 STC.
- Potential for additional development on adjacent plot (STP).
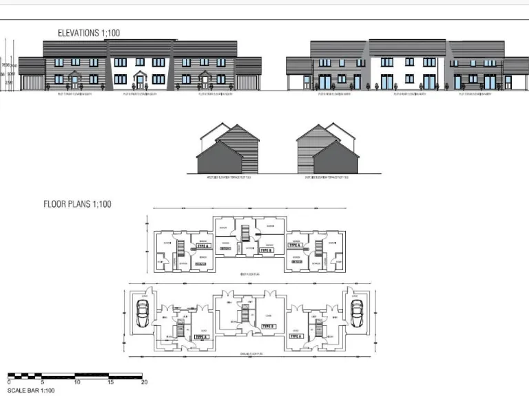
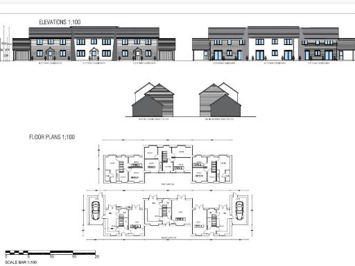
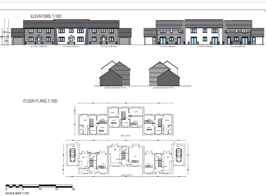
This 0.95-acre development site in the heart of Southminster presents an excellent investment opportunity for developers. With full planning consent for 9 modern residential units totaling 872.4 square meters, this plot is primed for immediate construction—no demolition is needed. The strategic location offers great accessibility to local shops, schools, and public transport, including a railway station providing convenient routes into London.
Currently vacant and cleared, the site allows for flexible design options catering to contemporary family living. With potential expansions to adjacent plots, investors will appreciate the promising future growth in this thriving community. Don’t miss this rare opportunity to capitalize on a well-planned residential project in a desirable area, poised for significant returns.
Plot for sale in DEVELOPMENT SITE Steeple, Southminster, CM0 — £800,000 • 1 bed • 1 bath • 10225 ft²
Land for sale in Southminster, Essex, CM0 — £130,000 • 1 bed • 1 bath • 1742 ft²
Plot for sale in Coombe Road, Southminster, CM0 — £175,000 • 3 bed • 2 bath • 1500 ft²
Property for sale in London Road, Southend-On-Sea, SS1 — £1,050,000 • 1 bed • 1 bath
Land for sale in West Road, Westcliff-on-sea, SS0 — £900,000 • 1 bed • 1 bath • 12500 ft²
Land for sale in Sutton Road, Southend-on-sea, SS2 — £800,000 • 1 bed • 1 bath • 16242 ft²






























