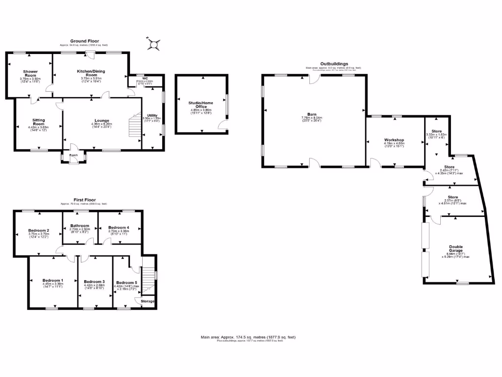
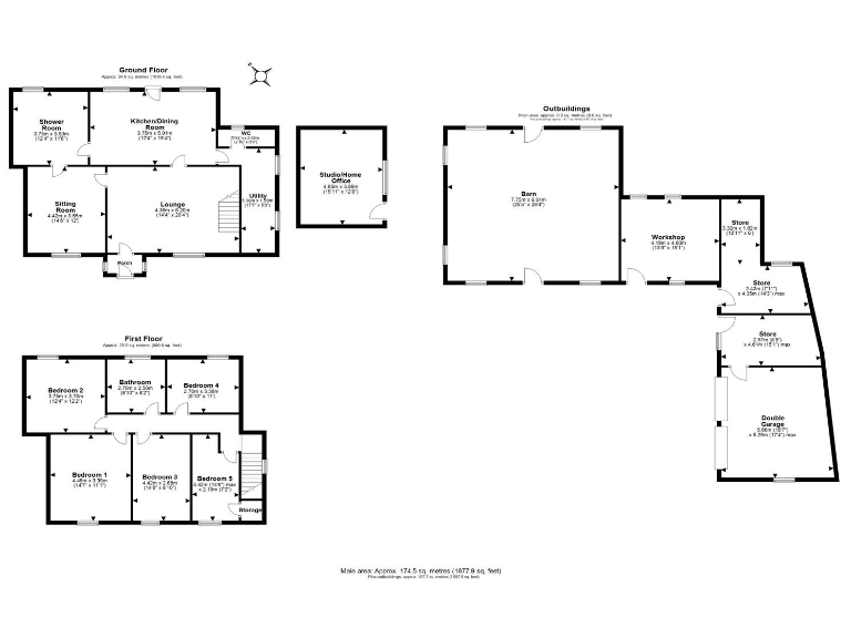
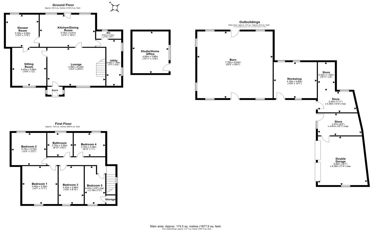
**Standout Features:**
- Character former farmhouse with substantial renovation potential
- 5 spacious bedrooms and 2 bathrooms
- Planning permission for barn conversion (Reference: 22/01634/FUL)
- Expansive grounds of approximately 1 acre with mature gardens
- Range of outbuildings, including a large barn with high vaulted ceilings
- Solar PV panels installed for energy efficiency and income potential
- Off-street parking with gated entrance
This captivating former farmhouse is your gateway to country living, offering both charm and modern comforts. Set on approximately one acre of well-maintained gardens with fruit trees, this property is an ideal family retreat or a promising investment opportunity. The home boasts spacious living areas, including a large lounge, separate sitting room, and an excellent kitchen/breakfast room—perfect for entertaining. The upstairs features five generously sized bedrooms and a stylish family bathroom.
Additionally, the extensive outbuildings, including a substantial barn with high ceilings and ample storage options, present exciting possibilities for conversion, whether for home offices, guest accommodations, or even a separate dwelling with planning permission secured in 2023.
Located in the peaceful village of Elton with access to local amenities, this property encapsulates a unique blend of rural tranquility and modern living. Don’t miss the chance to view this property; it won’t be on the market for long!
3 bedroom semi-detached house for sale in Lodge Lane, Saughall, Chester, Cheshire, CH1 — £300,000 • 3 bed • 1 bath • 1872 ft²
6 bedroom detached house for sale in Stoak, Chester, Cheshire, CH2 — £550,000 • 6 bed • 2 bath • 4460 ft²
7 bedroom detached house for sale in Chester, Cheshire, CH2 — £1,500,000 • 7 bed • 2 bath • 4763 ft²
6 bedroom detached house for sale in Award winning 5,300 square feet family home with equestrian potential, CH3 — £2,000,000 • 6 bed • 5 bath • 5334 ft²
7 bedroom barn conversion for sale in Lower Kinnerton, Chester, Cheshire, CH4 — £1,150,000 • 7 bed • 5 bath • 5350 ft²
4 bedroom detached house for sale in Dobers Lane, Frodsham, WA6 — £1,150,000 • 4 bed • 4 bath • 4246 ft²






























































































































