Chain-free three-bedroom home with garden and garage near Gipsy Hill station.
Three double bedrooms across one upper floor
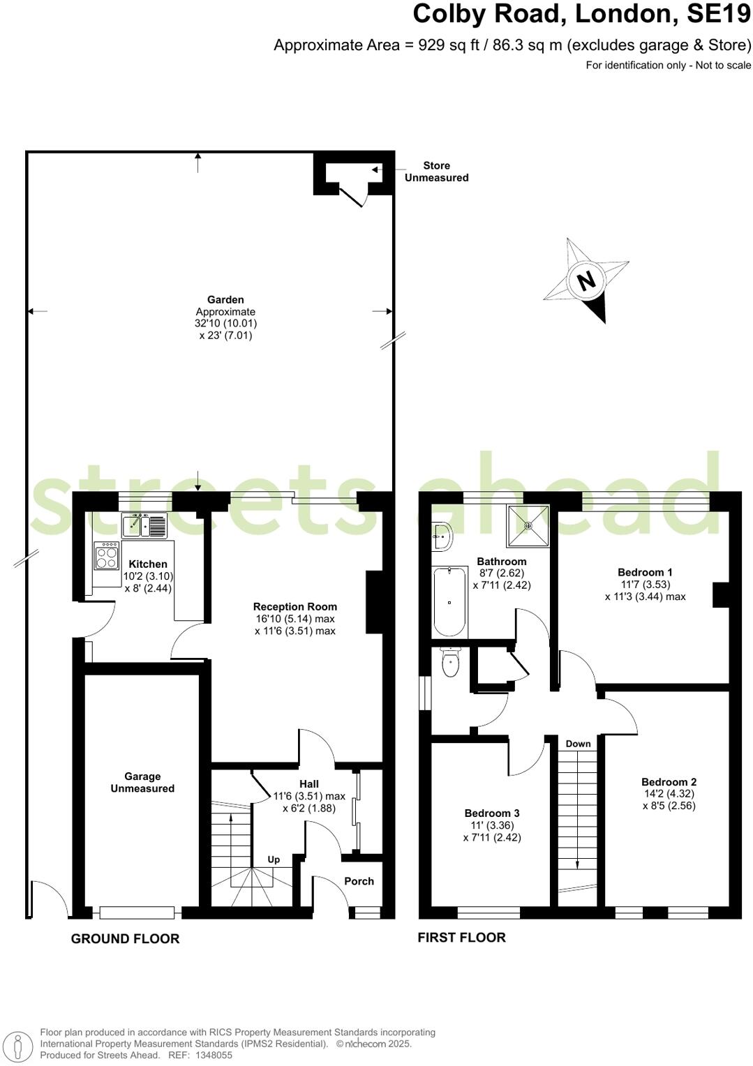
Set on a sought-after, tree-lined street in Gipsy Hill, this mid-century semi offers a clear canvas for a growing family. The house has three double bedrooms across the first floor, a 16ft reception room with garden access, an integral garage and a rear garden — practical features for everyday family living.
The property is being sold chain free and on freehold title, making it straightforward to move ahead. It measures around 929 sq ft and sits within easy walking distance of Gipsy Hill station, with fast links to central London and a range of local amenities and good primary schools close by.
The home requires renovation throughout: cosmetic updating, possible thermal improvements (walls are cavity with assumed no insulation) and modernisation of services should be expected. There is one bathroom plus a separate toilet, and the glazing dates are unknown. These factors make it well suited to buyers looking to personalise a family home or investors seeking a refurbishment project in SE19.
With excellent mobile and fast broadband speeds, a garage and off-street parking, the house combines practical commuter convenience with family-focused space. Buyers should factor renovation cost and timing into budgets, but the location and clear potential reward careful investment.
3 bedroom house for sale in Highfield Hill, Crystal Palace, London, SE19 — £900,000 • 3 bed • 1 bath • 1301 ft²
3 bedroom terraced house for sale in College Green, London, SE19 — £600,000 • 3 bed • 1 bath • 969 ft²
3 bedroom terraced house for sale in Giles Coppice, London, SE19 — £650,000 • 3 bed • 1 bath • 1061 ft²
4 bedroom detached house for sale in Convent Hill, London, SE19 — £935,000 • 4 bed • 3 bath • 1784 ft²
3 bedroom terraced house for sale in College Green, Crystal Palace, London, SE19 — £575,000 • 3 bed • 1 bath • 940 ft²
3 bedroom house for sale in Bloomhall Road, Crystal Palace, London, SE19 — £575,000 • 3 bed • 1 bath • 858 ft²






































































