Large plot and parking ideal for first-time buyers or investors seeking potential.
Chain free two-bedroom semi-detached home
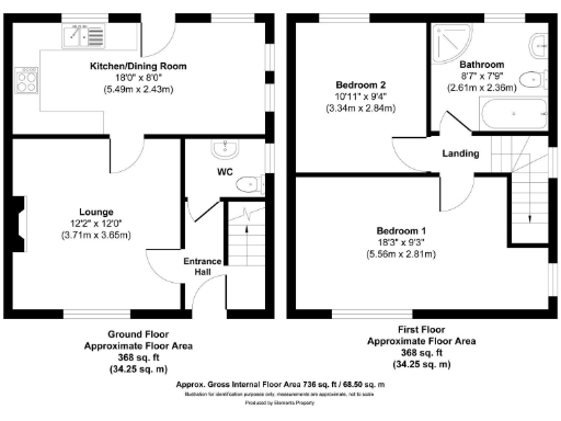
This two-bedroom semi-detached home in Kippax offers a rare combination of a large rear garden and no onward chain, making it an attractive buy for first-time buyers and investors. The property is modest in internal size (approximately 736 sq ft) but arranged practically: a comfortable living room, kitchen and dining area overlooking the garden, and a useful downstairs toilet. Both upstairs bedrooms are well-proportioned and suit double beds or home workspace.
The plot is the standout feature — an enormous rear garden with side access and potential for extension, garden room, or recreational space. Off-street parking to the front adds everyday convenience. Heating is by mains gas boiler and radiators; double glazing is installed but dates from before 2002. Constructed around 1930–1949, the house is solid but may benefit from cosmetic updating in parts depending on buyer taste.
Local amenities are within walking distance, including pubs, bakeries, shops and good-rated schools; Garforth station and main roads are easily reached for wider travel. There is no flooding risk and crime levels are low. Note the tenure is unspecified in the provided information and the wider area is described in local classifications as having a high proportion of rented properties, which may be relevant to investors assessing rental demand or buyers considering long-term neighbourhood change.
2 bedroom semi-detached house for sale in Birch Drive, Kippax Leeds, LS25 — £180,000 • 2 bed • 1 bath • 921 ft²
2 bedroom semi-detached house for sale in South Ridge, Kippax, Leeds, West Yorkshire, LS25 — £170,000 • 2 bed • 1 bath • 720 ft²
2 bedroom terraced house for sale in Butt Hill, Kippax, Leeds, LS25 — £185,000 • 2 bed • 1 bath • 945 ft²
2 bedroom cottage for sale in High Street, Kippax, Leeds, LS25 — £185,000 • 2 bed • 1 bath • 761 ft²
3 bedroom semi-detached house for sale in Birch Grove, Kippax, Leeds, LS25 7DD, LS25 — £250,000 • 3 bed • 1 bath • 968 ft²
3 bedroom semi-detached house for sale in Green Lane, Kippax, Leeds, LS25 — £280,000 • 3 bed • 1 bath • 999 ft²


































































