Flexible rural home with income potential and extensive gardens near Crediton.
- Grade II listed thatched cottage with original bread oven and exposed beams
- Detached one-bedroom barn conversion completed 2022 with full planning
- About 1 acre paddock, vegetable garden, orchard and pretty cottage garden
- Ample off-street parking for approximately six cars
- Heating: electric radiators (2022) and woodburning stoves; no gas
- Shared septic tank; private treatment plant for Little Barn
- Listed status restricts alterations and can increase maintenance costs
- Broadband reported very slow locally despite superfast-enabled postcode
Set on about an acre of paddock, Little Barn and Lower Shoplands combine a Grade II listed thatched cottage with a newly completed one-bedroom barn conversion, offering flexible living in a quiet Mid-Devon hamlet. The cottage keeps strong historic character — huge original fireplace and bread oven, exposed beams and a recently re-ridged thatch — alongside practical outdoor space, a vegetable garden, orchard and parking for six cars. The barn (completed 2022 with full residential planning permission) provides modern, self-contained accommodation ideal for guests, extended family or rental income.
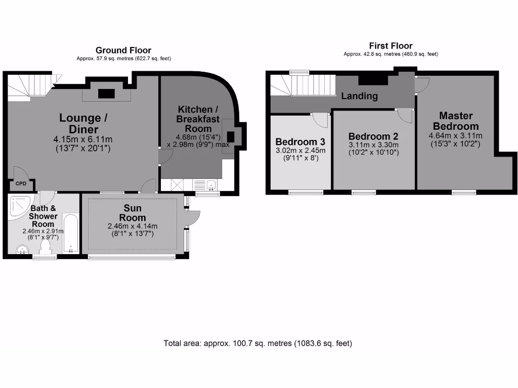
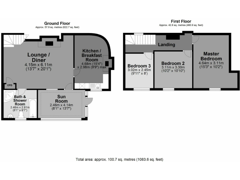
This property suits families wanting separate living space, buyers seeking an income stream, or anyone after a peaceful rural base close to Crediton and good primary and secondary schools. Internally the cottage provides three double bedrooms, a cosy kitchen with woodburner, a lounge/diner and sunroom; the barn adds a one-bedroom open-plan living area. Heating is electric radiators installed in 2022 and woodburning stoves; mains electricity and water are connected.
Buyers must note material considerations: the main house is Grade II listed which will restrict alterations and can complicate maintenance and insurance. Drainage includes a private treatment plant for Little Barn and a septic tank shared with a neighbour. Broadband is reported as very slow locally despite superfast-enabled infrastructure. The overall footprint is compact (approx. 539 sq ft internal total listed) but the extensive outside space and separate barn create significant lifestyle and income potential.
Barn for sale in Hollacombe, Crediton, EX17 — £425,000 • 4 bed • 3 bath • 1001 ft²
5 bedroom detached house for sale in Shobrooke, Crediton, EX17 — £995,000 • 5 bed • 2 bath • 3015 ft²
4 bedroom barn conversion for sale in Coleford, Crediton, EX17 — £560,000 • 4 bed • 2 bath • 2200 ft²
4 bedroom detached house for sale in 3.77 Acres Lapford, Crediton, Devon, EX17 — £950,000 • 4 bed • 3 bath • 2089 ft²
4 bedroom barn conversion for sale in Yeoford, Crediton, EX17 — £925,000 • 4 bed • 4 bath • 2961 ft²
3 bedroom semi-detached house for sale in Barnside, Uton, Crediton, EX17 — £435,000 • 3 bed • 1 bath • 1609 ft²






































































































































































































