Substantial house with paddocks and outbuildings close to Crediton.
Grade II thatched cottage with original cob and stone character
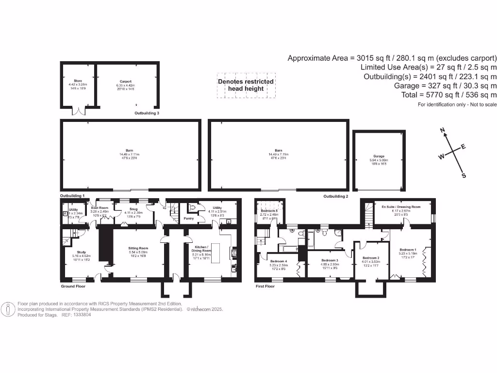
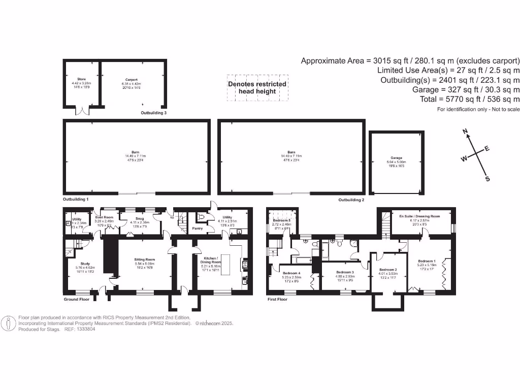
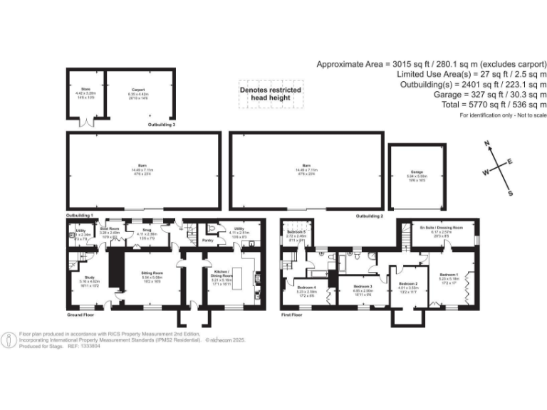
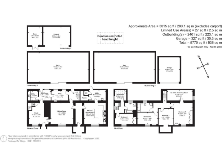
Approximately 4.6 acres: two paddocks, pond, outbuildings and barns
Large renovated kitchen with island and underfloor heating
Separate guest wing: two bedrooms and private bathroom
Double garage with electric doors, carport and multiple parking spaces
Listed status will restrict alterations and can complicate changes
Single glazing in places; oil boiler and radiator heating
Very slow broadband and average mobile signal in this rural setting
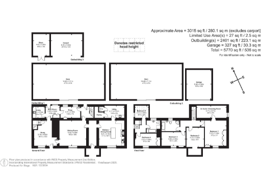
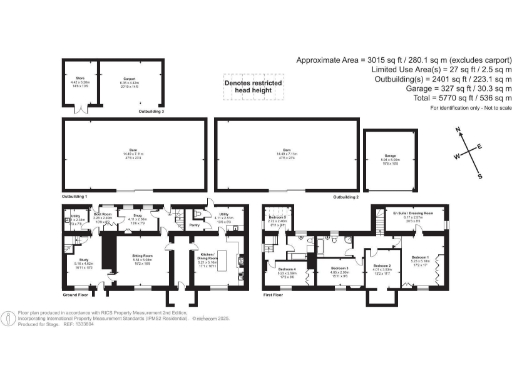
Set within about 4.6 acres of paddocks, mature trees and outbuildings, this Grade II thatched house offers an exceptional rural family home near Crediton. The house combines character cob and stone construction with a significant recent renovation: a large farmhouse kitchen with underfloor heating and a principal bedroom with en suite first fix in place. Generous reception rooms, a separate guest wing and sizable attic/room count provide flexible family living and home-working options.
The grounds include two fenced paddocks, two agricultural barns, a double garage with electric doors, carport and parking for multiple cars—ideal for small-scale equestrian use or hobby farming. Elevated, private and surrounded by open countryside, the plot provides strong outdoor appeal and excellent views, while nearby Crediton and Exeter supply schools, shops and transport links.
Buyers should note this is a Grade II listed property: listed status will limit structural alterations and may complicate future changes. The property retains single glazing in places and an oil-fired boiler with radiators; despite renovation, some period fabric and services will require ongoing conservation and management. Broadband speeds are very slow and mobile signal is only average, reflecting the rural location.
Overall this is a character-rich family home for purchasers seeking a substantial country property with land and outbuildings, who are comfortable with listed-building constraints and rural-service limitations. The house is presented ready to live in, with further opportunity to personalise the en suite and other finishings where first-fix work exists.
Equestrian facility for sale in Uplowman, Tiverton, Devon, EX16 — £595,000 • 3 bed • 2 bath • 1168 ft²
4 bedroom cottage for sale in Lower Shoplands and Barn, Newbuildings, Crediton, EX17 — £500,000 • 4 bed • 2 bath • 1408 ft²
4 bedroom detached house for sale in Bridford, Exeter, Devon, EX6 — £1,350,000 • 4 bed • 2 bath • 1906 ft²
4 bedroom detached house for sale in Crediton, EX17 — £900,000 • 4 bed • 1 bath • 2098 ft²
8 bedroom detached house for sale in Templeton, Tiverton, Devon, EX16 — £1,100,000 • 8 bed • 3 bath • 5242 ft²
3 bedroom country house for sale in Inwardleigh, Okehampton - Devon, EX20 — £845,000 • 3 bed • 2 bath • 1582 ft²










































































































