**Standout Features:**
- Stunning detached barn conversion from 1750, extensively renovated.
- Set on 1.83 acres of beautifully landscaped gardens with a large wildlife pond.
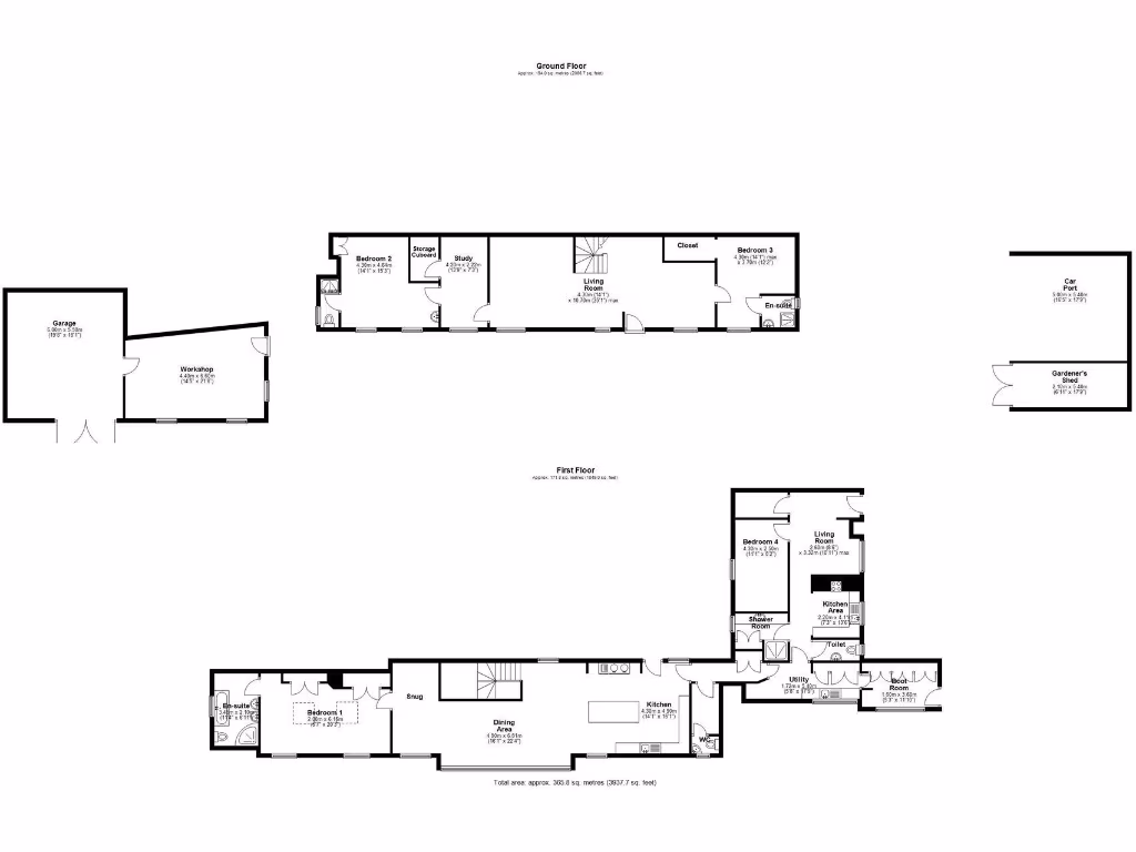
- Main house with 3 bedrooms (all ensuite) and a separate 1-bedroom cottage.
- Open plan kitchen/dining/snug area with bespoke hand-built kitchen.
- Quiet rural location with excellent potential for rentals or Airbnb.
- Oak-framed double carport, workshop, and additional garage.
- Ideal for families or those seeking a tranquil lifestyle.
**Summary:**
Discover the charm of Binneford Farm, a beautifully renovated barn conversion set in a peaceful Mid Devon hamlet. This property offers 2961 sq ft of character-filled living space, featuring three spacious ensuite bedrooms in the main house and an additional one-bedroom cottage perfect for multi-generational living or rental income. The open plan kitchen/dining area is truly the heart of the home, complete with exposed beams, a high ceiling, and a bespoke hand-built kitchen that invites gatherings.
Surrounded by 1.83 acres of landscaped gardens, including a stunning wildlife pond, this quiet retreat provides ample outdoor space for relaxation or entertainment, highlighted by a delightful Mediterranean-style terrace. While the property benefits from modern conveniences, it retains its rustic appeal, making it a unique opportunity for families and those yearning for a serene country escape. Don’t miss out on this exceptional gem—properties like this don’t stay on the market long!
4 bedroom detached house for sale in 3.77 Acres Lapford, Crediton, Devon, EX17 — £950,000 • 4 bed • 3 bath • 2089 ft²
4 bedroom detached house for sale in Bondleigh, North Tawton, EX20 — £625,000 • 4 bed • 3 bath • 2383 ft²
4 bedroom detached house for sale in Cheriton Fitzpaine, Crediton, EX17 — £650,000 • 4 bed • 3 bath • 1985 ft²
3 bedroom detached house for sale in Cadeleigh, Tiverton, Devon, EX16 — £1,100,000 • 3 bed • 2 bath • 3035 ft²
4 bedroom cottage for sale in Lower Shoplands and Barn, Newbuildings, Crediton, EX17 — £500,000 • 4 bed • 2 bath • 1408 ft²
Barn for sale in Hollacombe, Crediton, EX17 — £425,000 • 4 bed • 3 bath • 1001 ft²






































































































































































































































