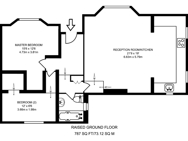
Turnkey period flat with modern finishes near Westfield and transport links.
Recently refurbished to a high standard throughout
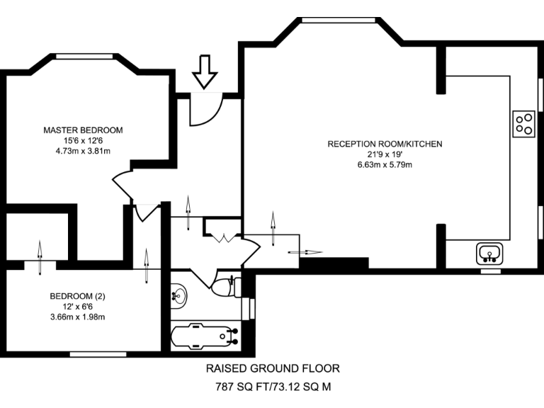
Large bay-fronted reception with abundant natural light
Open-plan contemporary kitchen, stainless steel appliances
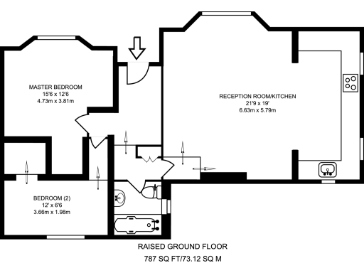
Two generous bedrooms; approximately 787 sq ft overall
Leasehold with 112 years remaining; sold at auction
Service charge ~£600; ground rent £10
Victorian solid-brick building — possible insulation upgrade needed
Local crime above average; area classified as deprived
This recently refurbished two-bedroom flat sits on Cathnor Road in Shepherd’s Bush, combining period character with a sleek contemporary finish. At around 787 sq ft the layout includes a large bay-fronted reception and an open-plan, well-equipped kitchen — ideal for everyday living or entertaining. The property benefits from mains gas central heating, fast broadband and excellent mobile signal.
Practical details matter: the flat is leasehold with 112 years remaining and will be sold at auction. Service charge is approximately £600 and ground rent £10. The building is a circa 1900–1929 Victorian terrace with solid brick walls (no assumed cavity insulation), so buyers should note potential thermal upgrade costs.
Location is a genuine strength — close to Westfield, local shops, cafes and multiple transport links including Goldhawk Road and Shepherd’s Bush Market stations. Nearby schools include several highly rated primaries and a good secondary, making the area appealing for young families or investors targeting rental demand.
Readers should be aware of local context: crime levels are above average and the wider area is classified as deprived, which may influence long‑term outlook and insurance or security considerations. Flooding risk is very low. Overall this is a turnkey flat with strong connectivity and renovation pedigree, suitable for first‑time buyers or investors prepared for a leasehold purchase at auction.
2 bedroom flat for sale in Cathnor Road, London, W12 — £450,000 • 2 bed • 1 bath • 787 ft²
2 bedroom flat for sale in White City Estate, White City, London, W12 — £290,000 • 2 bed • 1 bath • 636 ft²
2 bedroom flat for sale in Cathnor Road, London, W12 — £425,000 • 2 bed • 1 bath • 547 ft²
2 bedroom flat for sale in Uxbridge Road, London, W12 — £525,000 • 2 bed • 2 bath • 919 ft²
2 bedroom flat for sale in Uxbridge Road, Shepherds Bush, W12 — £425,000 • 2 bed • 1 bath • 653 ft²
1 bedroom flat for sale in 3(B) Stanlake Villas, Shepherd's Bush, W12 7EX, W12 — £210,000 • 1 bed • 1 bath • 384 ft²


































































































































































































































