Private south-facing garden and flexible extra room for family life.
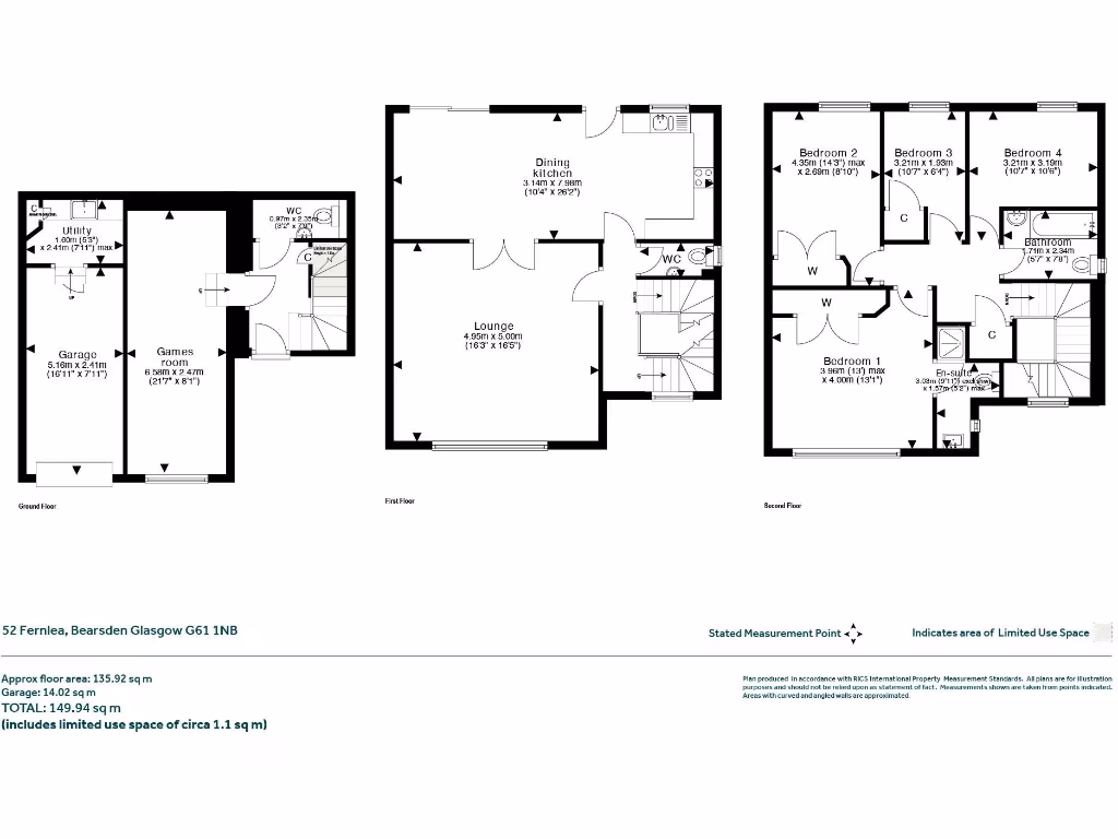
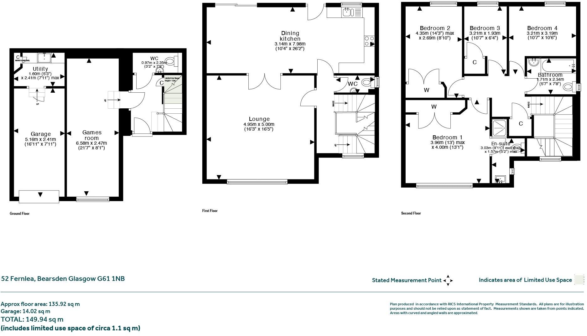
Four bedrooms and three public rooms across three levels
This three-storey detached house offers practical family living across approximately 1,450 sq.ft, arranged as four bedrooms and three public rooms. The ground and first floors include a generous open-plan dining/kitchen and lounge, while a converted half-garage provides a flexible extra room ideal as a gym, playroom or home office. Recent updates include a new ensuite shower room and a replaced gas central heating boiler, helping to reduce short-term maintenance needs.
A particular draw is the private, south-facing rear garden with lawn, stone paviours and decking — uncommon for modern townhouses and excellent for family use or entertaining. Off-street parking and a garage add convenience, and fast broadband with excellent mobile signal supports home working and streaming. The property is freehold and sits in a quiet cul-de-sac with woodland views and easy access to local shops, transport links and well-regarded schools.
Practical considerations: the EPC is Band C and Council Tax is Band G, which indicates above-average running costs. The garage has been partially converted to create additional living space; prospective buyers should review the Home Report and any relevant permissions if permanent structural changes are a concern. Local area data includes a mix of multi-ethnic professionals, but also flags the wider area as very deprived, which may affect long-term area profile and services.
Overall, this well-presented Persimmon-built home suits growing families seeking versatile living space, outdoor privacy and convenient transport links to Glasgow. Viewing is advisable to appreciate room proportions, garden aspect and the adaptable former garage space.
4 bedroom town house for sale in Annan Drive, Bearsden, G61 — £360,000 • 4 bed • 4 bath • 1765 ft²
4 bedroom house for sale in Canniesburn Road, Bearsden, G61 — £399,000 • 4 bed • 2 bath • 1504 ft²
4 bedroom detached house for sale in Lomond Road, Bearsden, G61 — £440,000 • 4 bed • 2 bath • 1932 ft²
4 bedroom detached villa for sale in Cairnhill Road, Bearsden, G61 1AU, G61 — £499,999 • 4 bed • 3 bath • 1763 ft²
3 bedroom semi-detached house for sale in 32 St. Andrews Drive, Bearsden, G61 4NW, G61 — £275,000 • 3 bed • 2 bath • 721 ft²
4 bedroom detached house for sale in Speirs Road, Bearsden, G61 — £339,000 • 4 bed • 2 bath • 1044 ft²


















































































































































