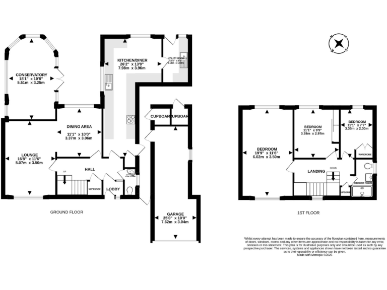
**Standout Features:**
- **Spacious Detached Family Home**: Extended 3-bedroom house set on a generous plot in sought-after Coombe Dingle.
- **Potential for Expansion**: Scope for further extensions, subject to consents.
- **Ample Parking**: Off-street parking along with a large garage and two additional storage sheds.
- **Generous Living Space**: Open reception rooms with access to a sunny conservatory and a large kitchen/diner.
- **Private Garden**: Mature rear garden with fruit trees and hedging for complete privacy.
- **Chain-Free Sale**: Quick and straightforward purchase process.
**Concerns:**
- **Renovation Required**: The property needs updating, offering buyers the chance to personalize it.
- **Above-Average Crime Rate**: Potential residents should be mindful of this factor.
Set in a tranquil yet popular neighborhood, this spacious extended home offers an excellent opportunity for families and investors alike. With 3 sizeable bedrooms and 130 sqm of living space, there’s plenty of room for comfort and growth. Enjoy endless possibilities, from creating a stunning open-concept layout in the reception areas to transforming the large rear garden into your personal oasis. The property benefits from ample off-street parking and a substantial garage perfect for storage or a workshop.
Located just minutes away from the scenic Blaise Castle Estate as well as convenience shops and amenities in Westbury on Trym and Stoke Bishop, this home seamlessly balances peaceful suburban living with accessibility. The property’s chain-free status allows for a swift move-in, while the potential for further extensions makes it appealing for those looking to invest in their future. Priced at £795,000, this is a unique chance to acquire a property brimming with potential in a charming family-friendly area—but act quickly, as homes like this don't last long!
4 bedroom detached house for sale in Long Acres Close, Bristol, BS9 — £725,000 • 4 bed • 2 bath • 1840 ft²
3 bedroom semi-detached house for sale in Arbutus Drive, Bristol, BS9 — £550,000 • 3 bed • 1 bath • 1077 ft²
4 bedroom detached house for sale in Stylish detached home on Grove Road, Coombe Dingle moments from Blaise Estate, BS9 — £875,000 • 4 bed • 2 bath • 1612 ft²
4 bedroom detached house for sale in Long Acres Close, Coombe Dingle, Bristol, BS9 — £725,000 • 4 bed • 2 bath • 1101 ft²
3 bedroom town house for sale in Harford Close | Coombe Dingle, BS9 — £450,000 • 3 bed • 1 bath • 1360 ft²
4 bedroom semi-detached house for sale in Westbury Lane, Bristol, BS9 — £499,950 • 4 bed • 1 bath • 1401 ft²






















































































































