**Standout Features:**
- Full planning permission for executive detached homes
- Scenic views over Norland Hillside
- Excellent access to Trans Pennine Road and rail networks
- Close proximity to well-rated schools
- Located in a desirable residential area
- Chain free and freehold tenure
- Spacious plot size with potential for individual home design
**Summary:**
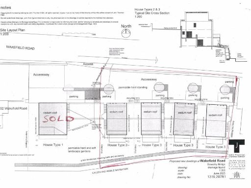
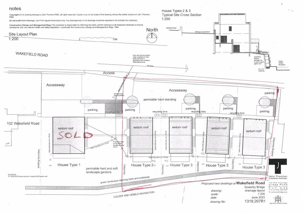
Seize the exceptional opportunity to create your dream home on this generous building plot at Plot 5, Wakefield Road, Copley. With full planning permission in place for five stunning executive detached homes, this site overlooks the picturesque Norland Hillside, providing a tranquil backdrop for family life. Convenience is key, as you'll enjoy seamless access to the Trans Pennine Road and rail networks connecting you to vibrant Manchester and Leeds, as well as excellent local schools, including highly rated options.
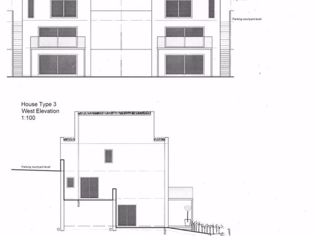
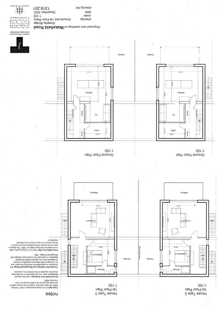
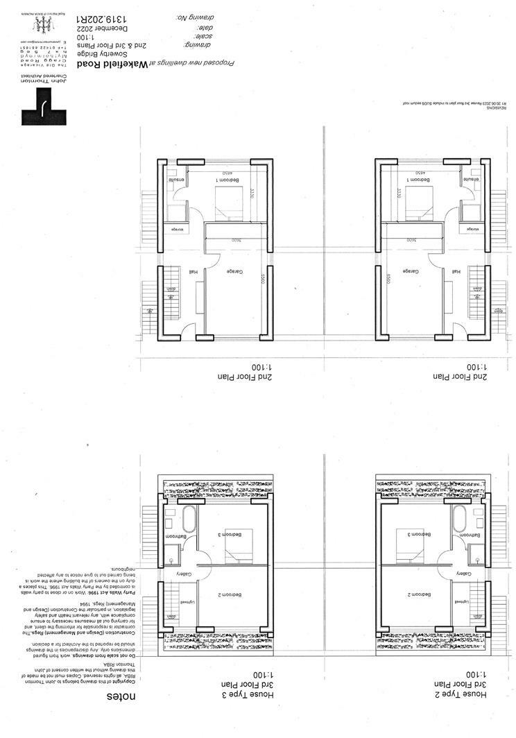
Imagine the potential of crafting a luxurious four-bedroom residence across approximately 2,368 square feet, with modern amenities and private gardens extending down to the serene banks of the River Calder. While the area presents a generally average crime rate and certain socio-economic constraints, the chance to secure a plot in this sought-after location is rare. Whether you're an investor or looking to build a family haven, don't miss out on this unique opportunity to put your mark on a desirable community. Act now; opportunities like this won’t last long!
 Land for sale in Plot 2 Land At Wakefield Road, Copley, HX6 — £150,000 • 1 bed • 1 bath • 2368 ft²
 Land for sale in Plot 2 Land At Wakefield Road, Copley, HX6 — £150,000 • 1 bed • 1 bath • 2368 ft² Land for sale in Plot 3 Land At Wakefield Road, Copley, HX6 — £150,000 • 1 bed • 1 bath • 2368 ft²
 Land for sale in Plot 3 Land At Wakefield Road, Copley, HX6 — £150,000 • 1 bed • 1 bath • 2368 ft² Land for sale in Plot 4 Land At Wakefield Road, Copley, HX6 — £150,000 • 1 bed • 1 bath • 2378 ft²
 Land for sale in Plot 4 Land At Wakefield Road, Copley, HX6 — £150,000 • 1 bed • 1 bath • 2378 ft² Land for sale in Wakefield Road, Copley, HX6 — £600,000 • 1 bed • 1 bath • 2368 ft²
 Land for sale in Wakefield Road, Copley, HX6 — £600,000 • 1 bed • 1 bath • 2368 ft² Land for sale in Laund Road, Huddersfield, HD3 — £175,000 • 1 bed • 1 bath
 Land for sale in Laund Road, Huddersfield, HD3 — £175,000 • 1 bed • 1 bath Plot for sale in Land at Foxglove Road, Almondbury, HD5 — £375,000 • 1 bed • 1 bath • 4000 ft²
 Plot for sale in Land at Foxglove Road, Almondbury, HD5 — £375,000 • 1 bed • 1 bath • 4000 ft²






































