**Standout Features:**
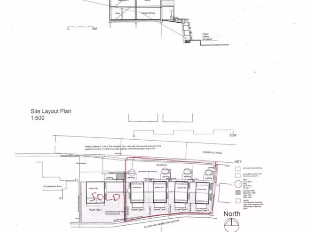
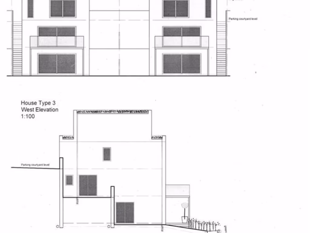
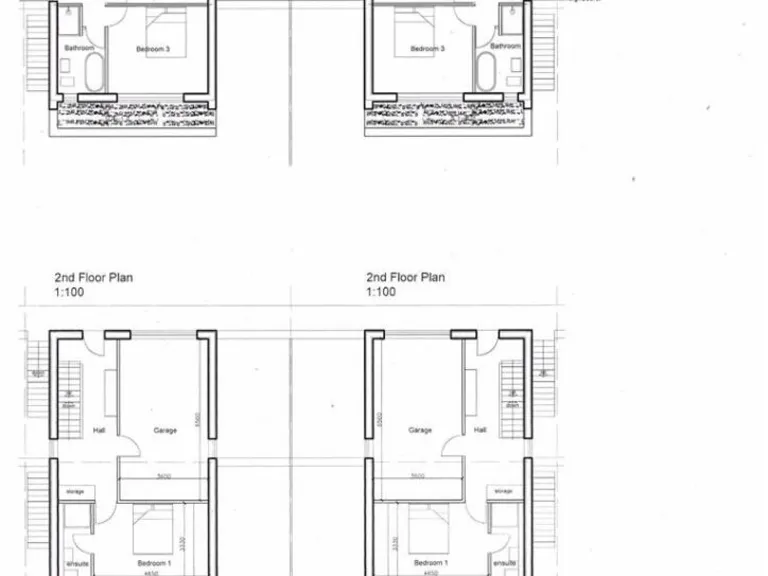
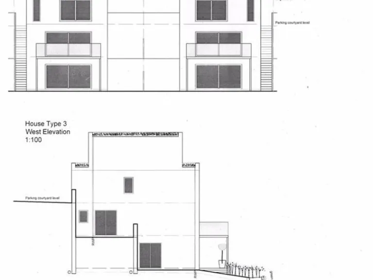
- Full planning permission for five executive detached four-bedroom homes.
- Stunning views over Norland hillside and easy access to the River Calder.
- Prime location with excellent connectivity to the Trans Pennine road and rail networks.
- Diversity of educational institutions nearby rated ‘Good’ by Ofsted.
- 2368 sq ft plot size, with potential for sizable family gardens.
- Freehold tenure and chain-free sale.
**Key Considerations:**
- Local area describes as “hampered aspiration” with average crime rates.
- Future buyers should assess zoning and local development plans.
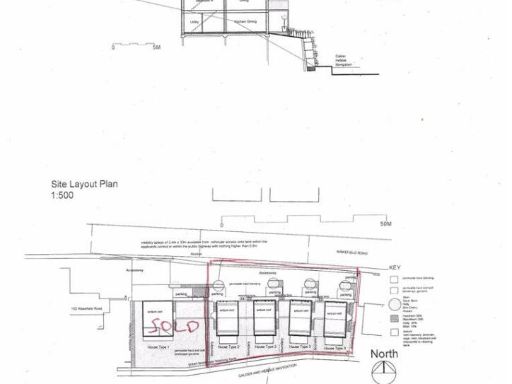
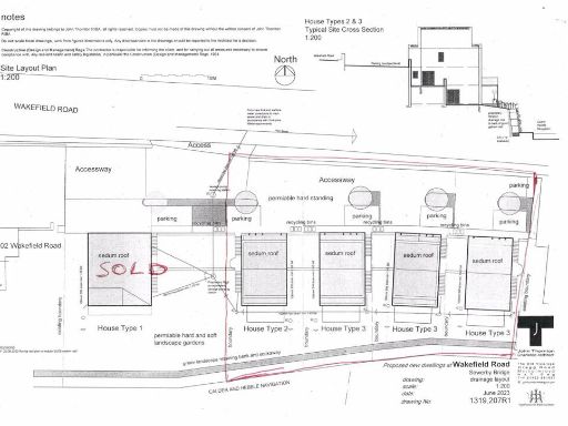
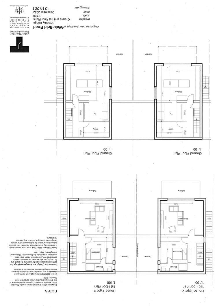
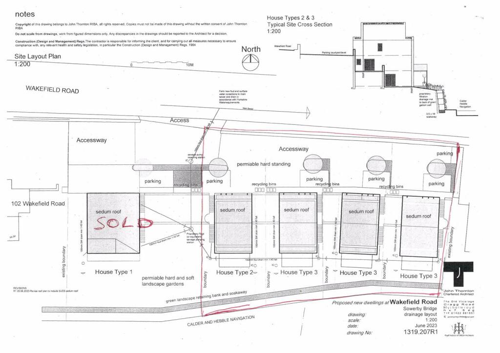
Discover an exceptional opportunity to create your dream home on this expansive plot of land at Wakefield Road in Copley. With full planning permission for four executive detached homes, this is a rare find in a desirable area, offering enchanting views of the Norland hillside. Envision building a spacious residence, complete with a large garden adjoining the tranquil River Calder.
Enjoy the convenience of excellent transport links to Manchester and Leeds, making commuting a breeze. Local amenities and esteemed schools — all rated ‘Good’ — are just a stone's throw away. This unique plot, sensibly priced at £150,000, presents an appealing canvas for future development in a beautifully serene yet connected location. Opportunities like this are scarce; seize the chance to secure your perfect homestead today!
Land for sale in Plot 4 Land At Wakefield Road, Copley, HX6 — £150,000 • 1 bed • 1 bath • 2378 ft²
Land for sale in Plot 5 Land At Wakefield Road, Copley, HX6 — £150,000 • 1 bed • 1 bath • 2368 ft²
Land for sale in Plot 3 Land At Wakefield Road, Copley, HX6 — £150,000 • 1 bed • 1 bath • 2368 ft²
Land for sale in Wakefield Road, Copley, HX6 — £600,000 • 1 bed • 1 bath • 2368 ft²
Land for sale in Laund Road, Huddersfield, HD3 — £175,000 • 1 bed • 1 bath
Land for sale in Land at Jerry Lane, Sowerby Bridge, Halifax, HX6 — £600,000 • 1 bed • 1 bath






































